Četverosobni stan Vodice, Vodice

€ 675.000
4
137 m²
2
Ne

Bilješka

Oglas ažuriran 05. 02. 2026.
Opis

referenca: 884-S1

Kuća s bazenom u novogradnji, Vodice – mirna lokacija blizu mora

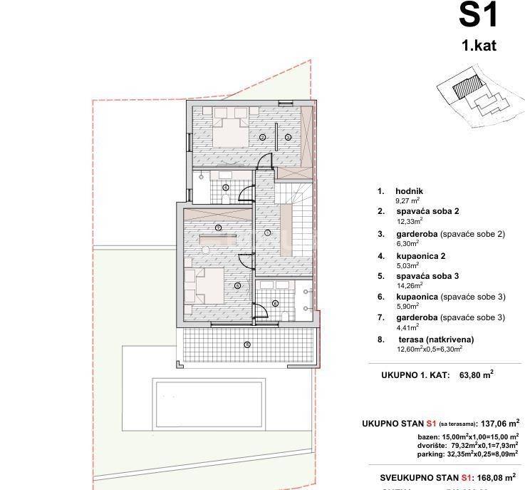
Prodaje se luksuzna moderna kuća S1 u novogradnji u Vodicama, smještena na mirnoj lokaciji s otvorenim i funkcionalnim rasporedom. Kuća se prostire na dvije etaže i nudi ukupno 137,06 m² stambene površine s terasama, uz dodatno privatno dvorište, bazen površine 15 m² i osigurano parkirno mjesto. U prizemlju se nalazi ulazni prostor, kuhinja s blagovaonicom i dnevnim boravkom, spavaća soba, kupaonica, stubište te natkrivena terasa idealna za boravak na otvorenom. Na katu su smještene dvije spavaće sobe, svaka sa svojom kupaonicom i garderobom, hodnik te dodatna natkrivena terasa.

Gradnja je u tijeku, a do 16.06.2026. očekuje se završetak približno 90 % radova, dok je potpuni završetak planiran do 15.10.2026. Nekretnina se nalazi 800 metara zračne linije od mora i uređene plaže te oko 1000 metara od centra Vodica, što je čini izvrsnim izborom za stanovanje ili investiciju u turistički najam.

Vodice su jedno od najpoželjnijih turističkih mjesta na Jadranu, poznate po lijepim plažama, dugim šetnicama uz more, bogatoj gastronomskoj ponudi i živahnom ljetnom ugođaju, a istovremeno nude mir i kvalitetu života tijekom cijele godine.

ID CODE: 884-S1

Bonum nekretnine
Mob: 095 750 5763
Tel: 022 644 555
E-mail: info@bonum.com.hr
www.bonum-nekretnine.com
Značajke
Vrsta
Dupleks
Ugovor
Prodaja
Katovi zgrade
1
Dizalo
Ne
Površina
137 m²
Prostorije
4
Spavaće sobe
3
Kupaonice
2
Balkon
Ne
Terasa
Ne
Garažno mjesto, parkirna mjesta
1 na zajedničkom parkingu
Klimatizacija
Samostalno, hlađenje/grijanje
Informacije o cijeni
Cijena
€ 675.000
Cijena po m²
4.927 €/m²
Energetska učinkovitost
  • Godina izgradnje

    2026
  • Klima uređaj

    Samostalno, hlađenje/grijanje
  • Energetski certifikat

    Neklasificirano
Otkrijte svaki kutak nekretnine
+6
Dodatne mogućnosti

Obratite se oglašivaču

Ili