Obiteljska kuća 298 m², Centar, Crikvenica

€ 989.000
5+
298 m²
2
Da
Balkon
Terasa

Bilješka

Oglas ažuriran 28. 03. 2026.
Opis

referenca: 16853

Crikvenica samostojeća kuća s bazenom i pogledom na more

Samostojeća kuća u roh-bau fazi, smještena na mirnoj poziciji iznad pristupne ceste, s otvorenim pogledom na more i projektiranim vanjskim sadržajima.

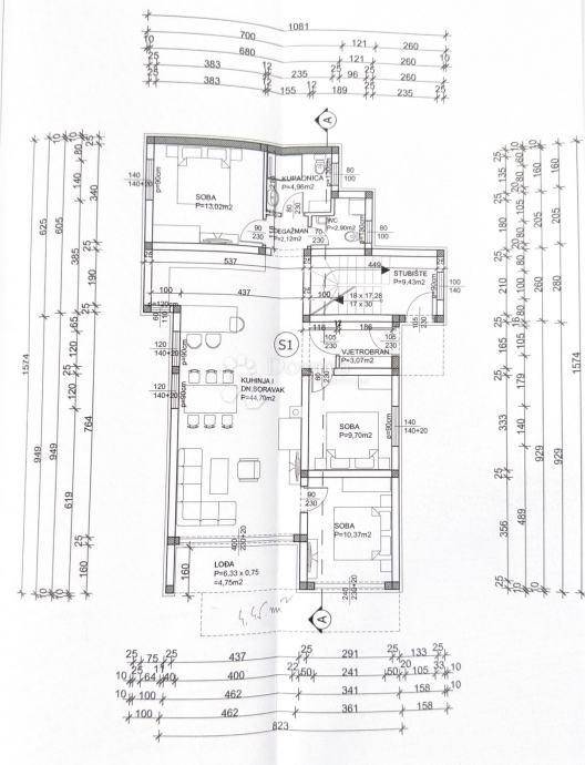
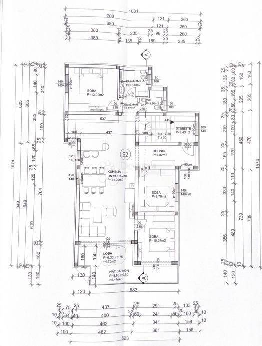
Kuća se proteže kroz tri etaže.
Podrumska etaža projektirana je kao multifunkcionalna zona s tehničkim prostorijama i velikim potencijalom za wellness sadržaje (sauna, spa, fitness).
Prizemlje i kat čine stambeni dio s jasno definiranim rasporedom prostorija, ukupno 4 spavaće sobe, dnevni boravak s kuhinjom i blagovaonicom, kupaonicu s WC-om te dodatni odvojeni WC.

Unutar okućnice planiran je bazen sa sunčalištem, a konfiguracija terena omogućuje privatnost i pogled na more, uključujući pogled iz bazenske zone.

Nekretnina se prodaje u roh-bau stanju, s važećom građevinskom dozvolom i priključcima (voda, struja, kanalizacija).
Osigurana su parkirna mjesta unutar parcele.

Napomena:
Iskazana cijena je bez PDV-a.

ID KOD AGENCIJE: 16853

Lana Blažević
Agent s licencom
Mob: 095/525-7325
Tel: 051 564 890
E-mail: lana.blazevic@dogma-nekretnine.com
www.dogma-nekretnine.com
Ako želite znati više, možete razgovarati s Lana Blažević.
Značajke
Vrsta
Obiteljska kuća
Ugovor
Prodaja
Kat
1
Dizalo
Da
Površina
298 m² | poslovni prostor 780 m²
Prostorije
5+
Spavaće sobe
4
Kupaonice
2
Balkon
Da
Terasa
Da
Ostale karakteristike
  • Bazen
Detalji površine

Stambeni prostor

Kat
1
Površina
298,0 m²
Koeficijent
100%
Vrsta površine
Glavni
Komercijalna površina
298,0 m²

Zemljište

Kat
Prizemlje
Površina
482,0 m²
Koeficijent
100%
Vrsta površine
Dodatno
Komercijalna površina
482,0 m²
Informacije o cijeni
Cijena
€ 989.000
Cijena po m²
1.268 €/m²
Energetska učinkovitost
  • Godina izgradnje

    2026
  • Energetski certifikat

    Oslobođeno
Otkrijte svaki kutak nekretnine
+5
Dodatne mogućnosti

Obratite se oglašivaču

Ili