Četverosobni stan novo, prvi kat, Čakovec

€ 258.570
4
88 m²
2
1
Da

Bilješka

Oglas ažuriran 14. 03. 2026.
Opis

referenca: I32151

PRODAJA, STAN, ČAKOVEC
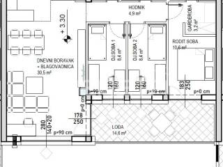
Prodaje se stan površine 88,5 m2 s lođom površine 14,6 m2 na 1. katu niskoenergetske stambeno poslovne zgrade na odličnoj lokaciji. Zgrada se sastoji od podruma, visokog prizemlja, prvog, drugog i trećeg kata te sadrži ukupno 74 stambene jedinice i 7 poslovnih prostora. Završetak gradnje predviđen je krajem 2025./početak 2026. Energetski razred je A+. Moguć je odabir podnih obloga (keramika, parket ili laminat) te odabir unutarnje stolarije. Uz stan moguća je kupovina vanjskog parkirnog mjesta, garažnog mjesta bez spremišta ili garažnog mjesta sa spremištem.
Za dodatne informacije stojimo na raspolaganju, a ovisno o načinu i količini plaćanja moguća je određena korekcija cijene.
Značajke
Vrsta
Stan
Ugovor
Prodaja
Kat
1 kat
Dizalo
Da
Površina
88 m²
Prostorije
4
Spavaće sobe
3
Kupaonice
2
Namješteno
Ne
Grijanje
Centralno, na plinski pogon
Klimatizacija
Hlađenje/grijanje
Informacije o cijeni
Cijena
€ 258.570
Cijena po m²
2.938 €/m²
Energetska učinkovitost

Potrošnja energije

A+

Otkrijte svaki kutak nekretnine
+5
Dodatne mogućnosti

Obratite se oglašivaču

Ili