Trosobni stan novo, drugi kat, Okrug

€ 380.000
3
99 m²
1
2
Da

Bilješka

Oglas ažuriran 16. 04. 2026.
Opis

referenca: I31981

Penthouse - s panoramskim pogledom na more Okrug Gornji/Čiovo

Otok Čiovo već je godinama jedno od najtraženijih mjesta za život i odmor na Jadranu, a Okrug Gornji posebno se ističe kao omiljena destinacija kako među turistima, tako i među obiteljima koje traže mir, sigurnost i prirodu izvan gradskih gužvi.
Na ovoj odličnoj lokaciji, stanovi pružaju sve što vam je potrebno smješteni na povišenom terenu iznad glavne Copacabana plaže, s pogledom na more čak i iz najniže etaže, dok gornje etaže nude spektakularan panoramski ugođaj. Prostrane natkrivene terase savršene su za opuštanje jutarnja kava s pogledom ili čaša vina uz zalazak sunca ovdje postaju svakodnevni ritual.

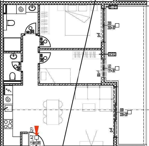
Stan S27 se nalazi na 2. katu i posljednjem katu zgrade s ukupno 28 jedinica, neto stambene površine 74,51m2 (bruto 79,64m2) i ukupne obračunske površine 99,98m2 sa krovnom terasom.
Sastoji se od: hodnika, kuhinje+blagavaonica+dnevni boravak, 2 spavaće sobe, kupaonice, zasebnog toaleta i prostrane lođe od 20,53m2 (koef. 0,75=15,40m2). Dodatno, u cijenu stana uključena je i krovna terasa koja se prostire na 101,87m2 (koef. 0,25=25,47m2).

Cijena vanjskog parkirnog mjesta: 5.000

Useljenje je planirano za svibanj 2026. godine. Mirno okruženje, široka asfaltirana ulica i odlična prometna povezanost čine ovu lokaciju savršenim izborom za obitelj ili turističku investiciju.
Planirana je visokokvalitetna gradnja: odlična izolacija, energetski učinkovita fasada (termo fasada EPS 8 cm), PVC stolarija (šesterokomorna - staklo izo 36 mm + staklo izo 20 mm 3 stakla), aluminijske rolete punjene pur pjenom, kvalitetna podna i zidna keramika, opremljena kupaonica, klima uređaj, podno grijanje u dnevnom prostoru i kupaonici...
Otok Čiovo i Okrug Gornji poznati su po prekrasnim plažama, kristalno čistom moru i brojnim sunčanim danima. Udaljen tek nekoliko minuta vožnje od UNESCO-ovog Trogira i povezan mostom s kopnom, pruža idealan balans između privatnosti, prirode i urbanog sadržaja.
Značajke
Vrsta
Stan
Ugovor
Prodaja
Kat
2 kat
Dizalo
Da
Površina
99 m²
Prostorije
3
Spavaće sobe
2
Kupaonice
1
Namješteno
Ne
Garažno mjesto, parkirna mjesta
1 na zajedničkom parkingu
Grijanje
Samostalno, napajanje električnom energijom
Klimatizacija
Hlađenje/grijanje
Informacije o cijeni
Cijena
€ 380.000
Cijena po m²
3.838 €/m²
Energetska učinkovitost
  • Godina izgradnje

    2025
  • Stanje

    Novo / U izgradnji
  • Grijanje

    Samostalno, napajanje električnom energijom
  • Klima uređaj

    Hlađenje/grijanje
Otkrijte svaki kutak nekretnine
+11
Dodatne mogućnosti

Obratite se oglašivaču

Ili