map icon

Obiteljska kuća 342 m², novo, Donja Dubrava

Donja Dubrava
€ 450.000
5+
342 m²
3
Ne

Bilješka

Oglas ažuriran 02. 05. 2026.
Opis

referenca: I33618

KUĆA, PRODAJA, ZAGREB, ČULINEC, Ulica Davorina Jeića, 340m2 .
Prodaje se odlična samostojeća kuća u mirnoj, slijepoj ulici.
Kuća se sastoji od tri stambene jedinice sa posebnim ulazima, povezane vanjskim stubištem.
Prizemlje ima 120 m2 i koncipirano je kao veliki komforni stan sa dodatnim tehničkim prostorijama.
Na katu su dva stana sa mogućnošću proširenja na pripadajući potkrovni dio i velika terasa od 50m2.
Uz kuću je i garaža od 45m2 i ispred nje prostor za parkiranje više vozila.
Parcela ima 440 m2 i uredno je održavana i ograđena.
Dokumentacija uredna, moguća kupnja kreditom.
Značajke
Vrsta
Obiteljska kuća
Ugovor
Prodaja
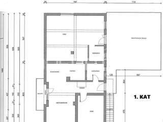
Kat
1
Dizalo
Ne
Površina
342 m² | poslovni prostor 782 m²
Prostorije
5+
Spavaće sobe
5
Kupaonice
3
Namješteno
Ne
Garažno mjesto, parkirna mjesta
1 na zajedničkom parkingu
Grijanje
Centralno, na plinski pogon
Klimatizacija
Hlađenje/grijanje
Detalji površine

Stambeni prostor

Kat
1
Površina
342,0 m²
Koeficijent
100%
Vrsta površine
Glavni
Komercijalna površina
342,0 m²

Zemljište

Kat
Prizemlje
Površina
440,0 m²
Koeficijent
100%
Vrsta površine
Dodatno
Komercijalna površina
440,0 m²
Informacije o cijeni
Cijena
€ 450.000
Cijena po m²
575 €/m²
Energetska učinkovitost
  • Godina izgradnje

    1988
  • Stanje

    Novo / U izgradnji
  • Grijanje

    Centralno, na plinski pogon
  • Klima uređaj

    Hlađenje/grijanje
Otkrijte svaki kutak nekretnine
+23
Dodatne mogućnosti

Obratite se oglašivaču

Ili