Građevinsko zemljište za Prodaja

€ 430.000
1.456 m²

Bilješka

Oglas ažuriran 28. 04. 2026.
Opis

referenca: 7993

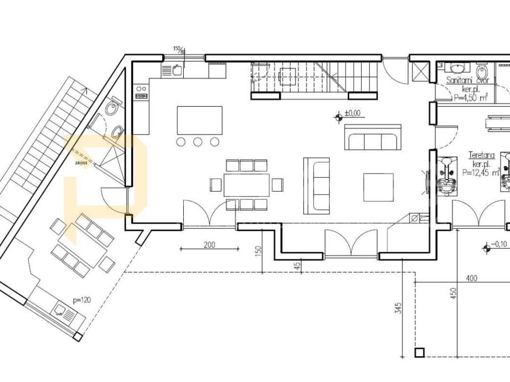
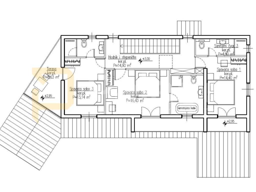
Gradilište za vilu s bazenom i pogledom na more, Sevid 1456 m2

Stavlja se na prodaju građevinsko zemljište s aktivnom građevinskom dozvolom i prijavljenim gradilištem površine 1.456 m2 u mjestu Sevid, općina Marina.

Teren je pravilnog oblika, dimenzije cca 25-35 m x 50 m, smješten uz čak 2 pristupna puta gdje se nalazi i sva infrastruktura. Na terenu je već aktivna građevinska dozvola za lijepu urbanu vilu s bazenom s tradicionalnim elementima tlocrtne površine cca 180 m2, dozvola je aktivirana, plaćeni su doprinosi te se s gradnjom može krenuti. U prilogu su slike projekta s projekcijom objekta i tlocrtima. Jako skladan i prostran objekt sa bazenom i dosta parkirnih mjesta i okućnica. Naravno, projekt je podložan i promjenama u ovoj fazi.

Ova parcela zbog svojeg položaja, oblika i dimenzije otvara mogućnost i cijepanja u više dijelova radi potencijalno bolje iskoristivosti i gradnje dodatnih objekata ili sadržaja. Prekrasan pogled na more i pristupačna uvala na udaljenosti svega 70 m, osigurava Vam Vašu oazu na moru na svega par koraka.

Zemljište je na rubu građevinske zone što znači da neće biti prenapučeno gdje ćete imati svoj mir i privatnost.

Sevid je malo primorsko mjesto u općini Marina kod Trogira. Iako je Sevid malo mjesto, ima sve što Vam je potrebno za odmor restorane, trgovine i izuzetno lijepe plaže i čisto more. Ukoliko se zaželite noćnog provoda posjetite okolne gradove Trogir, Primošten, Rogoznicu, Šibenik ili Split.

Sva dokumentacija je uredna, ova nekretnina čeka upravo na Vas!

Agencijska provizija iznosi 3% + PDV od postignute kupoprodajne cijene.



Za više informacija, kao i za razgled nekretnine, slobodno nas kontaktirajte

Ana Klarić Bubica

E-mail: ana.bk@palace.agency

Kontakt broj: +385 99 811 8080

Šifra nekretnine: 7993
Ako želite znati više, možete razgovarati s Ana Klarić Bubica.
Značajke
Ugovor
Prodaja
Vrsta
Građevinsko zemljište
Površina
1.456 m²
Informacije o cijeni
Cijena
€ 430.000
Cijena po m²
295 €/m²
Otkrijte svaki kutak nekretnine
+20
Dodatne mogućnosti

Obratite se oglašivaču

Ili