Stan 151 m², Varaždin

€ 364.650
151 m²

Bilješka

Oglas ažuriran 28. 04. 2026.
Opis

referenca: 7469

Četverosobni stan u novogradnji, Varaždin, 121,55 m2

Na prodaju je dvoetažni četverosobni stan u novogradnji na iznimno poželjnoj lokaciji, površine 121,55 m2 u Varaždinu, kvart Texas.

Stan je smješten na atraktivnoj i mirnoj lokaciji, u blizini svih važnih sadržaja poput škola, vrtića, trgovina, ljekarne, pošte.

Osnovne značajke nekretnine:

- gradnja po principu "ključ u ruke"

- novogradnja s planiranim završetkom radova do kraja 2026. godine

- energetski razred A+

- grijanje putem električne dizalice topline u svim prostorijama

- hlađenje osigurano klimatizacijskim uređajima

- PVC bijela stolarija s troslojnim IZO staklima i ugrađenim roletama

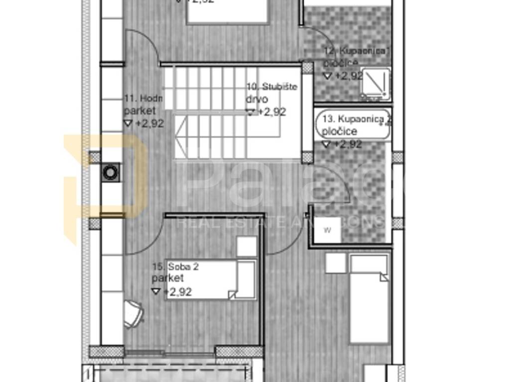
Stan se sastoji od (za detaljnije informacije pogledajte priloženi tlocrt):

PRIZEMLJE: natkriveni ulaz, hodnik, WC, spremište ispod stubišta, dnevni boravak, blagovaonica, kuhinja, natkrivena terasa, vanjsko spremište

KAT: stubište, hodnik, kupaonica 1, kupaonica 2, spavaća soba 1, spavaća soba 2, spavaća soba 3, balkon



U pretprodaji cijena nekretnine iznosi: 3 000,00 EUR/ m2



Za dodatne informacije ili dogovor razgledavanja, s povjerenjem se obratite:

Hrvoje Plukavec

hrvoje@palace.agency

+385 99 160 9297

Ako želite znati više, možete razgovarati s Lucia Nježić.
Značajke
Vrsta
Stan
Ugovor
Prodaja
Površina
151 m²
Informacije o cijeni
Cijena
€ 364.650
Cijena po m²
2.415 €/m²
Otkrijte svaki kutak nekretnine
+2
Dodatne mogućnosti

Obratite se oglašivaču

Ili