Trosobni stan novo, Vodice

€ 450.000
3
168 m²
2
Terasa

Bilješka

Oglas ažuriran 11. 05. 2026.
Opis

referenca: 3990

Penthouse u novogradnji s tri spavaće sobe, Srima, 168 m2

Prostrani penthouse u novogradnji, Srima, 168 m2.



Pozicioniran u manjoj stambenoj zgradi novogradnje na izvrsnoj lokaciji, ovaj moderan trosoban penthouse nudi udobnost, praktičnost i luksuz. Sa samo 200 metara udaljenosti od plaže i centra, ovo je idealno mjesto za uživanje u živopisnom okruženju grada.



O zgradi:

Grijanje: Podno električno grijanje i klima uređaji

Stolarija: PVC stolarija s električnim podizačima roleta

Moderan dizajn s prostranim i svijetlim prostorima

Visokokvalitetni materijali i završna obrada

Trenutno u izgradnji s predviđenim završetkom i useljenjem u ljeto 2025. godine



O stanu:

Lokacija: Drugi kat.

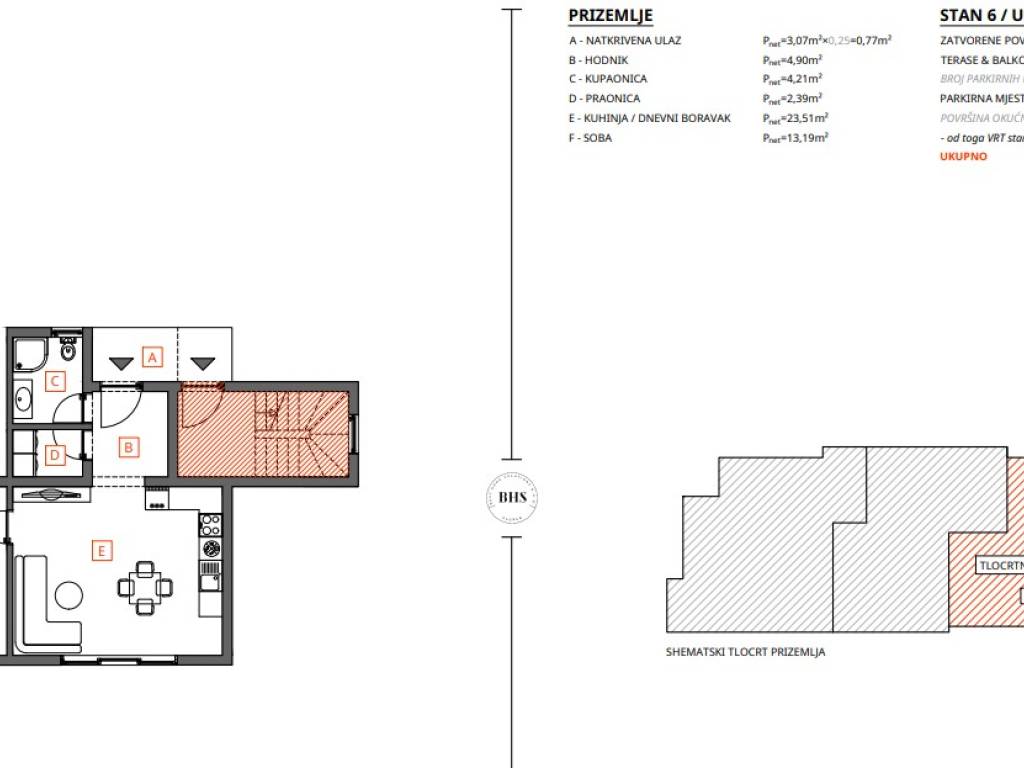
Prostorna raspodjela: ulazni prostor, WC/praonica, 3 spavaće sobe, hodnik, 2 kupaonice, kuhinja s blagovaonicom, dnevni boravak, te prostrana krovna terasa površine 173 m2.

Dodatno:   dva parkirna mjesta.



Okolina:

Stan se nalazi u manjoj stambenoj zgradi sa samo četiri stana, što pruža dodatnu privatnost i ekskluzivnost. Nalazi se na idealnoj lokaciji, samo 200 metara udaljen od prekrasne uređene plaže, dućana, kafića i restorana. Srima nudi bogatstvo sadržaja za sve generacije, uz predivne plaže duž cijele obale.



Ova nekretnina predstavlja izuzetnu priliku za one koji traže luksuzan i udoban životni prostor na jednoj od najtraženijih lokacija u Srimi.



Agencijska provizija iznosi 3%+PDV od postignute kupoprodajne cijene. 



Za više informacija vezano za ovu nekretninu kontaktirajte nas na broj telefona: +385911118585 ili e-mail: iva@palace.agency.


Ako želite znati više, možete razgovarati s Iva Gracin.
Značajke
Vrsta
Stan
Ugovor
Prodaja
Površina
168 m²
Prostorije
3
Spavaće sobe
3
Kupaonice
2
Terasa
Da
Garažno mjesto, parkirna mjesta
1 na zajedničkom parkingu
Klimatizacija
Samostalno, hlađenje/grijanje
Informacije o cijeni
Cijena
€ 450.000
Cijena po m²
2.679 €/m²
Energetska učinkovitost
  • Stanje

    Novo / U izgradnji
  • Klima uređaj

    Samostalno, hlađenje/grijanje
  • Energetski certifikat

    Neklasificirano
Otkrijte svaki kutak nekretnine
+3
Dodatne mogućnosti

Obratite se oglašivaču

Ili