Stan 86 m², Primošten

€ 294.984
86 m²

Bilješka

Oglas ažuriran 28. 04. 2026.
Opis

referenca: 2959

Dvosobni stan na prvom katu, novogradnja, Primošten, 87 m2

Zgrada se nalazi na oko 200 metara od mora, što omogućava lijep pogled na more. Budući stanari će moći uživati u mirnoj i blago povišenoj lokaciji.



Blizina restorana i uređene plaže je još jedna prednost. Udaljenost do prvih restorana i plaže je samo nekoliko minuta pješačkog hoda, što čini ovo mjesto prikladnim za opuštanje i uživanje u lokalnim sadržajima.



Svaki stan uključuje jedno vanjsko parkirno mjesto.



Stanovi će biti u potpunosti završeni i klimatizirani. Kupaonice će također biti potpuno opremljene, pružajući udobnost i praktičnost budućim stanarima.



Budući kupci će imati priliku uređivati interijer stanova prema svojim željama i potrebama.



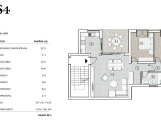
Ukupna stambena površina stana S4 na prvom katu iznosi 86,76 m2.



Stan S4:



blagovaonica i dnevni boravak - 27,78 m2



kuhinja - 7,13 m2



spavaća soba - 11,82 m2



spavaća soba - 11,80 m2



kupaonica - 4,49 m2



kupaonica - 4,66 m2



predprostor - 5,40 m2



predprostor - 2,19 m2



loggia - 10,74 m2



parking mjesto - 13,25 m2



 



Agencijska provizija iznosi 3%+PDV od postignute kupoporodajne cijene.



Stojimo na raspolaganju za više informacija.



Iva Gracin +385911118585


Ako želite znati više, možete razgovarati s Iva Gracin.
Značajke
Vrsta
Stan
Ugovor
Prodaja
Površina
86 m²
Informacije o cijeni
Cijena
€ 294.984
Cijena po m²
3.430 €/m²
Otkrijte svaki kutak nekretnine
+3
Dodatne mogućnosti

Obratite se oglašivaču

Ili