Trosobni stan 187 m², Centar, Opatija

€ 598.000
3
187 m²
1
Ne

Bilješka

Oglas ažuriran 01. 05. 2026.
Opis

referenca: I32386

Prodaje se prostrani stan smješten u visokom prizemlju i suterenu manje vile na padini u Opatiji, s predivnim panoramskim pogledom na more i Kvarnerski zaljev.

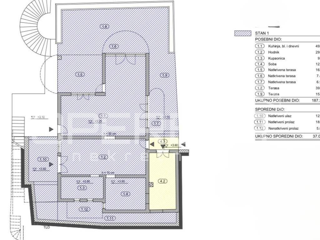
Stan se nalazi u suterenu i prizemlju, koji se sastoji od kuhinje s blagovaonicom i dnevnim boravkom, hodnika, kupaonice, sobe, tri natkrivene terase i dvije nenatkrivene terase u prizemlju, ukupne površine 187,30 m2, kojem pripada kao sporedni dio natkriveni ulaz površine 12,73 m2 u prizemlju, natkriveni prolaz površine 18,72 m2 u prizemlju i nenatkriveni prolaz površine 5,60 m2, u prizemlju,
te pripadci loggia površine 39,33 m2, u suterenu. Površine 276,18 m2
Stan ima vlastito parkirno mjesto od 12,50 m. Sve instalacije su izvedene, a budući vlasnici će trebati zamijeniti prozore i vrata prema svom ukusu.

Lokacija je mirna i okružena zelenilom, a zahvaljujući velikim staklenim površinama i idealnoj orijentaciji, stan je ispunjen prirodnim svjetlom tijekom cijelog dana. Pogled s terasa obuhvaća čitav Kvarnerski zaljev, dio opatijske obale i grad Rijeku.

Ova nekretnina je savršen izbor za luksuzan obiteljski život ili kao investicija u elitni turizam. U ponudi su i ostali stanovi u vili, a moguć je i kupnja cijele vile.

Udaljenosti:
More i plaža: 650 m (9 min pješice)
Restoran: 900 m (13 min pješice)
Centar Opatije: 1,2 km (15 min pješice)
Centar Rijeke: 12 km (20 min vožnje)
Zračna luka Rijeka: 35 km (30 min vožnje)
Zračna luka Pula: 95 km (60 min vožnje)
Zagreb, Ljubljana: 120 km
Budimpešta, Beč, München: 500 km

Za dodatne informacije, fotografije, tlocrt i dogovor oko razgledavanja, slobodno nas kontaktirajte!
Značajke
Vrsta
Stan
Ugovor
Prodaja
Dizalo
Ne
Površina
187 m²
Prostorije
3
Spavaće sobe
2
Kupaonice
1
Namješteno
Ne
Garažno mjesto, parkirna mjesta
1 na zajedničkom parkingu
Klimatizacija
Hlađenje/grijanje
Informacije o cijeni
Cijena
€ 598.000
Cijena po m²
3.198 €/m²
Energetska učinkovitost
  • Godina izgradnje

    1985
  • Klima uređaj

    Hlađenje/grijanje
  • Energetski certifikat

    Oslobođeno
Otkrijte svaki kutak nekretnine
+6
Dodatne mogućnosti

Obratite se oglašivaču

Ili