Obiteljska kuća 561 m², novo, Centar, Opatija

€ 1.600.000
5+
561 m²
3+
Ne

Bilješka

Oglas ažuriran 25. 04. 2026.
Opis

referenca: I32387

Na mirnoj i zelenilom okruženoj lokaciji, svega 650 m od plaže, prodaje se prostrana vila na šest etaža s jedinstvenim panoramskim pogledom na more, Opatiju, Rijeku i Kvarnerski zaljev.

Vila nudi tri stambene jedinice, brojne terase i balkone, garažu, više parkirnih mjesta te potencijal za bazen. Zahvaljujući velikim staklenim površinama i južnoj orijentaciji, prostorije su pune prirodnog svjetla tijekom cijelog dana.

Idealna za veće obitelji, luksuzne apartmane ili boutique hotel. Rijetka prilika na tržištu s velikim investicijskim potencijalom!

Udaljenosti:
More i plaža 9 min hoda
Centar Opatije 1,2 km
Rijeka 12 km
Zračna luka Rijeka 35 km

Za više informacija i vizualizaciju potencijalnog uređenja kontaktirajte nas!
Značajke
Vrsta
Obiteljska kuća
Ugovor
Prodaja
Kat
1
Dizalo
Ne
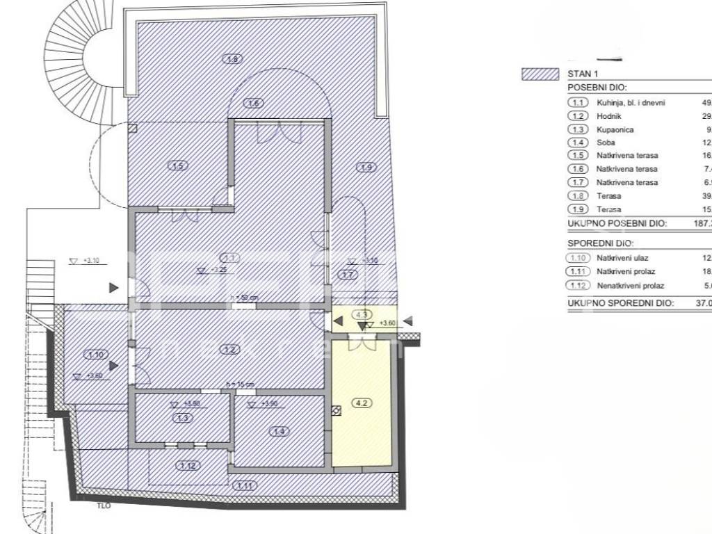
Površina
561 m² | poslovni prostor 1.212 m²
Prostorije
5+
Spavaće sobe
7
Kupaonice
3+
Namješteno
Ne
Garažno mjesto, parkirna mjesta
1 na zajedničkom parkingu
Grijanje
Centralno
Klimatizacija
Hlađenje/grijanje
Detalji površine

Stambeni prostor

Kat
1
Površina
561,0 m²
Koeficijent
100%
Vrsta površine
Glavni
Komercijalna površina
561,0 m²

Zemljište

Kat
Prizemlje
Površina
651,0 m²
Koeficijent
100%
Vrsta površine
Dodatno
Komercijalna površina
651,0 m²
Informacije o cijeni
Cijena
€ 1.600.000
Cijena po m²
1.320 €/m²
Energetska učinkovitost
  • Godina izgradnje

    1985
  • Stanje

    Novo / U izgradnji
  • Grijanje

    Centralno
  • Klima uređaj

    Hlađenje/grijanje
Otkrijte svaki kutak nekretnine
+12
Dodatne mogućnosti

Obratite se oglašivaču

Ili