Građevinsko zemljište za Prodaja

€ 160.000
630 m²

Bilješka

Oglas ažuriran 11. 02. 2026.
Opis

referenca: 4465

Građevinsko zemljište s građevinskom dozvolom u Ližnjanu

Građevinsko zemljište s građevinskom dozvolom u Ližnjanu

Na prodaju nudimo atraktivno građevinsko zemljište površine 630 m² smješteno u mirnom dijelu Ližnjana, idealnom za gradnju obiteljske kuće ili kuće za odmor. Sve potrebne dozvole za gradnju su izdane, što znači da se s gradnjom može započeti odmah.

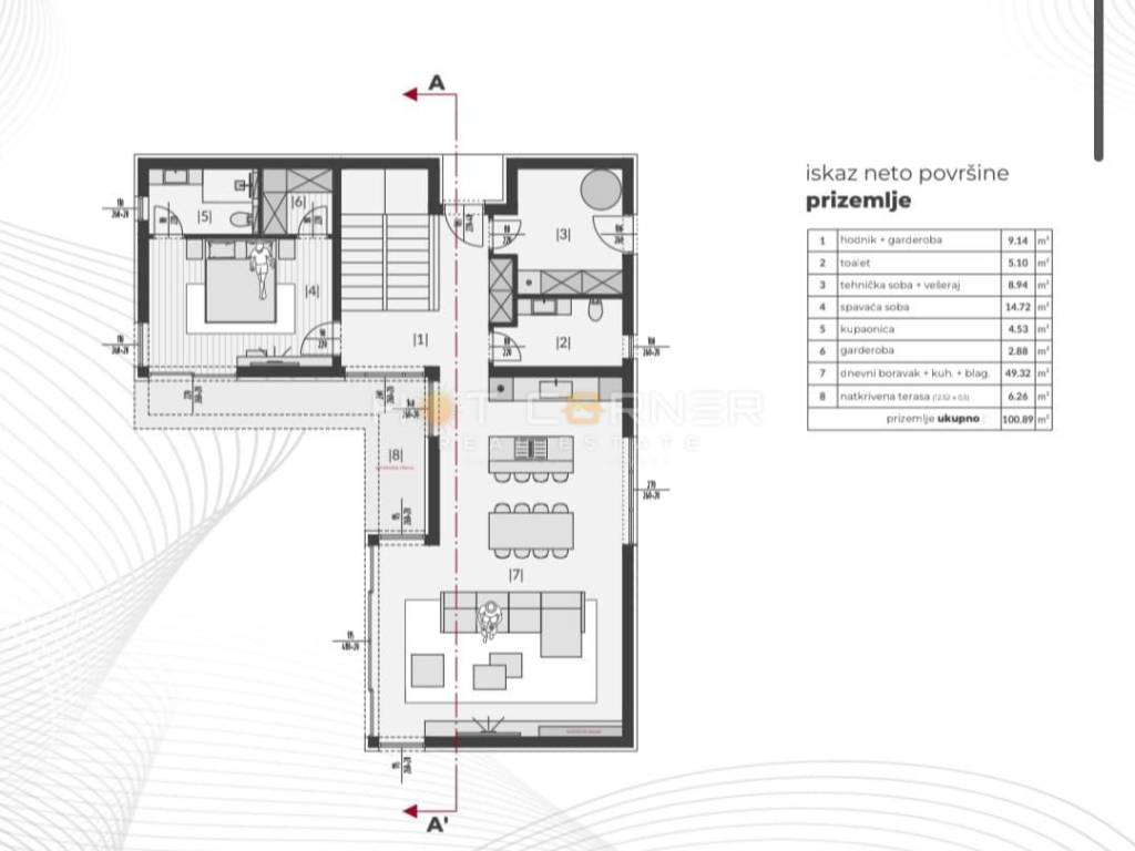
Projektom je predviđena moderna kuća pažljivo osmišljena kako bi pružila maksimalnu udobnost i funkcionalnost. Sastoji se od tri prostrane spavaće sobe, svaka s vlastitom kupaonicom i garderobom, velikog otvorenog prostora koji povezuje dnevni boravak, kuhinju i blagovaonicu, te dodatnog toaleta za goste. U prizemlju se nalazi natkrivena terasa koja vodi prema velikom bazenu i ugodnoj lounge zoni uz bazen – savršenom mjestu za opuštanje i druženje. Na katu su smještene spavaće sobe s izlazom na natkriveni i nenatkriveni dio prostrane terase s prekrasnim pogledom. Kuća također raspolaže s dva natkrivena privatna parkirna mjesta.

Cijena iznosi 160.000 eura, a uključuje zemljište, kompletnu projektnu dokumentaciju i sve izdane građevinske dozvole.

Za sve dodatne informacije ili razgled zemljišta, obratite se:
Marijan Blažičević
???? GSM: +385 99 205 5764
???? WhatsApp: +356 9974 4447
✉️ E-pošta: marijan@hotcorner.hr

ID CODE: 4465

Hot corner nekretnine
Mob: 0992055764
Tel: +385 52 212 841
Fax: +385 52 212 841
E-mail: info@hotcorner.hr
www.hotcorner.hr
Značajke
Ugovor
Prodaja
Vrsta
Građevinsko zemljište
Površina
630 m²
Informacije o cijeni
Cijena
€ 160.000
Cijena po m²
254 €/m²
Otkrijte svaki kutak nekretnine
+5
Dodatne mogućnosti

Obratite se oglašivaču

Ili