Trosobni stan Bregana, Samobor - Okolica, Samobor

€ 315.511
3
95 m²
1
3
Da
Terasa

Bilješka

Oglas ažuriran 17. 02. 2026.
Opis

referenca: 498

Prodaja stana u novogradnji na Bregani

GS nekretnine iz ponude izdvajaju za vas odličnu novogradnju!

Projekt Bregana 2 – prodaja stana S26 u novogradnji

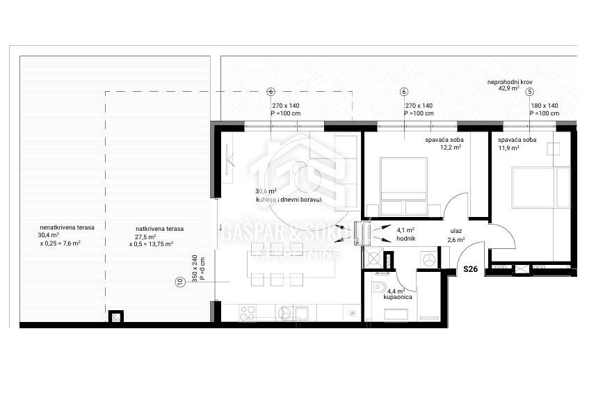
U sklopu projekta Bregana 2 prodaje se stan S26 u kvalitetnoj novogradnji na atraktivnoj lokaciji u Bregani. Stan se nalazi na trećem katu stambene zgrade s liftom te ima neto površinu 65,8 m², dok ukupna obračunska površina iznosi 95,9 m².

Stan se sastoji od ulaznog prostora, kuhinje s dnevnim boravkom, hodnika, kupaonice i dvije spavaće sobe. Dodatnu vrijednost daje natkrivena terasa površine 27,5 m² (obračunski 13,75 m²), i nenatkrivena terasa 30,4 m² (obračunski 7,6 m²) idealno za boravak na otvorenom.

Stanu pripada vanjsko parkirno mjesto kao i garažno parkirno mjesto. Zgrada je opremljena liftom, a grijanje i hlađenje osigurani su putem dizalice topline i klima uređaja, što jamči visoku energetsku učinkovitost i niske režijske troškove. U opremi stana predviđeni su keramički podovi i parket.

Predviđeni završetak gradnje je za godinu dana.

Nekretnina se nalazi na izvrsnoj lokaciji, u neposrednoj blizini svih bitnih sadržaja za svakodnevni život, što ovaj stan čini idealnim izborom za stanovanje ili investiciju.

Za više informacija i dogovora oko razgleda, obratite se s povjerenjem - GS nekretnine!

ID CODE: 498

Hrvoje Sokolić
Agent s licencom
Mob: 095 310 4969
E-mail: hrvoje@gsnekretnine.hr
www.gsnekretnine.hr
Značajke
Vrsta
Stan
Ugovor
Prodaja
Kat
3 kat
Katovi zgrade
3
Dizalo
Da
Površina
95 m²
Prostorije
3
Spavaće sobe
2
Kupaonice
1
Balkon
Ne
Terasa
Da
Garažno mjesto, parkirna mjesta
1 u garaži, 2 na zajedničkom parkingu
Klimatizacija
Samostalno, hlađenje/grijanje
Ostale karakteristike
  • Protuprovalna vrata
Informacije o cijeni
Cijena
€ 315.511
Cijena po m²
3.321 €/m²
Energetska učinkovitost
  • Klima uređaj

    Samostalno, hlađenje/grijanje
  • Energetski certifikat

    Neklasificirano
Tlocrt
Otkrijte svaki kutak nekretnine
+3
Dodatne mogućnosti

Obratite se oglašivaču

Ili