Dvosobni stan prvi kat, Vis

€ 245.203
2
57 m²
1
1
Ne

Bilješka

Oglas ažuriran 04. 04. 2026.
Opis

referenca: I34739

PRODAJA, Vis centar, novouređen 1BDR s natkrivenim balkonom, prilika

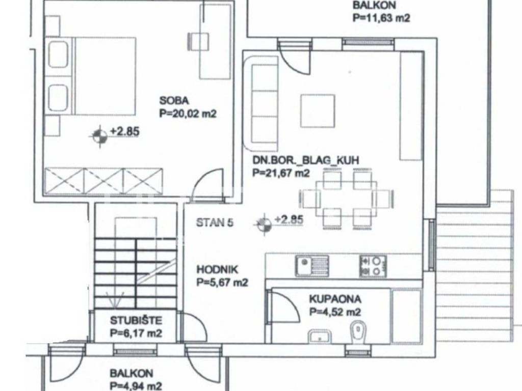
Na atraktivnoj lokaciji u gradu Visu, predio Luka, u neposrednoj blizini mora i svih važnih sadržaja, smješten je ovaj namješten i potpuno opremljen, lijepo organiziran stan koji pruža ugodan boravak u samom srcu otoka. Plaže, riva, restorani, trgovine i trajektna luka dostupni su u kratkoj šetnji, što ovu nekretninu čini izuzetno praktičnom kako za svakodnevni život, tako i za odmor. Stan br 5 ima ukupnu korisnu površinu od 63,50 m2 i odlikuje se funkcionalnim rasporedom prostora. Sastoji se od ulaznog hodnika, prozračnog dnevnog boravka povezanog s blagovaonicom i kuhinjom, spavaće sobe te kupaonice. Dodatnu vrijednost pruža natkriveni balkon, idealan za opuštanje na otvorenom i uživanje u ugodnoj otočkoj klimi tijekom cijele godine. Mogućnost parkinga u bilizi objekta. Useljenje 1.12.2026.

Zbog svoje odlične pozicije i praktičnog rasporeda, stan predstavlja vrlo dobar izbor za osobno korištenje, ali i kao investicija za turistički najam na jednoj od najtraženijih lokacija na otoku Visu.

Značajke
Vrsta
Stan
Ugovor
Prodaja
Kat
1 kat
Dizalo
Ne
Površina
57 m²
Prostorije
2
Spavaće sobe
1
Kupaonice
1
Namješteno
Ne
Grijanje
Samostalno, napajanje električnom energijom
Klimatizacija
Hlađenje/grijanje
Informacije o cijeni
Cijena
€ 245.203
Cijena po m²
4.302 €/m²
Energetska učinkovitost
  • Godina izgradnje

    2001
  • Grijanje

    Samostalno, napajanje električnom energijom
  • Klima uređaj

    Hlađenje/grijanje
  • Energetski certifikat

    Oslobođeno
Otkrijte svaki kutak nekretnine
+16
Dodatne mogućnosti

Obratite se oglašivaču

Ili