Dvosobni stan Ladrovići, Poreč, Žbandaj, Poreč

€ 210.000
2
57 m²
1
PR
Ne

Bilješka

Oglas ažuriran 08. 04. 2026.
Opis

referenca: 6004

ISTRA, POREČ novogradnja 1s+db s okućnicom

Stan u prizemlju s velikom okućnicom – novogradnja 8 km od Poreča

Samo 8 km od Poreča, u mirnom i ugodnom okruženju, nudimo stan u prizemlju moderne novogradnje koja se nalazi u završnoj fazi izgradnje. Posebna prednost ove nekretnine je velika privatna okućnica, idealna za uživanje na otvorenom, obiteljski život ili odmor.

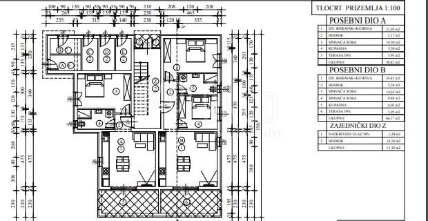
Stan je funkcionalnog rasporeda te se sastoji od:

spavaće sobe
dnevnog boravka s kuhinjom i blagovaonicom
hodnika
kupaonice
terase
ostave

Oprema i kvaliteta gradnje
Podovi obloženi keramičkim pločicama nabavne cijene do 25 €/m², dok je u sobama predviđen laminat iste vrijednosne klase
Zidovi kupaonice i kuhinje obloženi keramičkim pločicama do 25 €/m²
Protuprovalna i protupožarna ulazna vrata, kvalitetna furnirana sobna vrata
Sanitarna oprema, tuš s kanalicom ili kabinom prema izboru kupca
Instalacije za telefon, zemaljsku i satelitsku antenu u dnevnom boravku i sobama
Grijanje i hlađenje putem klima uređaja (dnevni boravak i sobe)
Podno grijanje u kupaonici s termostatom

Nekretnina je pogodna kako za stalni boravak, tako i za odmor ili turističko iznajmljivanje.

Moguća kupnja putem kredita banke.

???? Za više informacija i razgledavanje, kontaktirajte agenta.

ID CODE: 6004

Zoran Stupar
Agent s licencom
Mob: +385 99 5705 551
Tel: +385 52 774 199
E-mail: zoran.stupar@mololongorealestate.com
www.mololongorealestate.com

Mirjana Vlahović
Agent s licencom
Mob: +385 95 5161 641
Tel: +385 52 774 199
E-mail: mirjana.vlahovic@mololongorealestate.com
www.mololongorealestate.com
Značajke
Vrsta
Stan
Ugovor
Prodaja
Kat
Prizemlje
Katovi zgrade
2
Dizalo
Ne
Površina
57 m²
Prostorije
2
Spavaće sobe
1
Kupaonice
1
Balkon
Ne
Terasa
Ne
Garažno mjesto, parkirna mjesta
1 na zajedničkom parkingu
Grijanje
Samostalno, zrak
Klimatizacija
Samostalno, hlađenje/grijanje
Informacije o cijeni
Cijena
€ 210.000
Cijena po m²
3.684 €/m²
Energetska učinkovitost
  • Godina izgradnje

    2024
  • Grijanje

    Samostalno, zrak
  • Klima uređaj

    Samostalno, hlađenje/grijanje
  • Energetski certifikat

    Neklasificirano
Otkrijte svaki kutak nekretnine
+9
Dodatne mogućnosti

Obratite se oglašivaču

Ili