Dvosobni stan novo, prvi kat, Vodice

€ 229.000
2
74 m²
1
1
Ne
Terasa

Bilješka

Oglas ažuriran 05. 03. 2026.
Opis

referenca: S2328

Vodice - Dvosoban Stan S3 na prvom katu, 900m od plaže

VODICE - NOVOGRADNJA - STAN S3, 1.KAT

U mirnoj i atraktivnoj zoni grada započela je gradnja moderne stambene zgrade s ukupno 6 stambenih jedinica i poslovnim prostorom.

Poslovni prostor je prodan.
Na prodaju je svih 6 stanova.

Planirani završetak radova: 1. srpnja 2027. godine

LOKACIJA

- 900 m od plaže Vrulje


- 1.100 m od centra grada


- Mirna i poželjna gradska zona



Idealno za cjelogodišnje stanovanje ili kao investicija za najam.

Stan S3 – nalazi se na prvom katu, ima 74,41m2 neto korisne površine, te se sastoji od: kuhinja, blagovaonica i dnevni boravak, hodnik, vešeraj, 2 spavaće sobe, kupaonica, natkrivena terasa. 1 parkirno mjesto. Cijena: 229.000 €

OPREMA I KARAKTERISTIKE:

• Svakom stanu pripada popločano parkirno mjesto
• Mogućnost kupnje dodatnog parkirnog mjesta
• Termo fasada za visoku energetsku učinkovitost
• Staklene balkonske ograde modernog izgleda
• ALU balkonska klizna vrata
• Izolacijski sustavi Sika i Mapei
• Protuprovalna i protupožarna ulazna vrata
• Keramika velikog formata
• Vlastita brojila za struju i vodu
• Video portafon
• TV priključci u svakoj sobi i dnevnom boravku
• Priprema za peć na kruta goriva
• WiFi inverter klima uređaji – GREE ili Midea
• Klima uređaji u svim spavaćim sobama i dnevnom boravku
• Podno grijanje u kupaonicama
• Električni bojler
• Sanitarije vrhunske kvalitete: Grohe / Hansgrohe / Voxort
• Električne rolete
• Komarnici na prozorima

OSTALO RASPOLOŽIVO U ZGRADI:

PRIZEMLJE:

POSLOVNI PROSTOR - PRODANO

PRVI KAT:

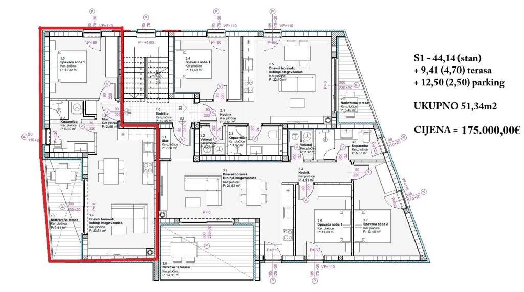
Stan S1 – nalazi se na prvom katu, ima 51,34m2 neto korisne površine, te se sastoji od: ulaz, spavaća soba, kupaonica, kuhinja, blagovaonica i dnevni boravak, natkrivena terasa. 1 parkirno mjesto ispred zgrade. Cijena: 175.000 €

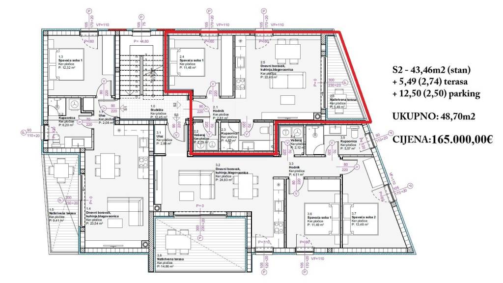
Stan S2 – nalazi se na prvom katu, ima 48,70m2 neto korisne površine, te se sastoji od: hodnik, vešeraj, spavaća soba, kupaonica, kuhinja, blagovaonica i dnevni boravak, natkrivena terasa. 1 parkirno mjesto.Cijena: 165.000 €

DRUGI KAT:

Stan S4 – nalazi se na drugom katu, ima 50,42m2 neto korisne površine, te se sastoji od: ulaz, spavaća soba, kupaonica, kuhinja, blagovaonica i dnevni boravak, natkrivena terasa i nenatkrivena terasa. 1 parkirno mjesto ispred zgrade. Cijena: 169.000 €

Stan S5 – nalazi se na drugom katu, ima 48,67m2 neto korisne površine, te se sastoji od: hodnik, vešeraj, spavaća soba, kupaonica, kuhinja, blagovaonica i dnevni boravak, natkrivena terasa. 1 parkirno mjesto. Cijena: 165.000 €

Stan S6 – nalazi se na drugom katu, ima 73,36m2 neto korisne površine, te se sastoji od: ulaz, kuhinja, blagovaonica i dnevni boravak, hodnik, vešeraj, 2 spavaće sobe, kupaonica, natkrivena terasa i nenatkrivena terasa. 1 parkirno mjesto. Cijena: 219.000 €
Značajke
Vrsta
Stan | Prosječna klasa nekretnine
Ugovor
Prodaja
Kat
1 kat
Katovi zgrade
2
Dizalo
Ne
Površina
74 m²
Prostorije
2
Spavaće sobe
2
Kupaonice
1
Balkon
Ne
Terasa
Da
Grijanje
Samostalno, podno grijanje
Klimatizacija
Samostalno
Ostale karakteristike
  • Protuprovalna vrata
Informacije o cijeni
Cijena
€ 229.000
Cijena po m²
3.095 €/m²
Energetska učinkovitost
  • Godina izgradnje

    2026
  • Stanje

    Novo / U izgradnji
  • Grijanje

    Samostalno, podno grijanje
  • Klima uređaj

    Samostalno
Tlocrt
Otkrijte svaki kutak nekretnine
+3
Dodatne mogućnosti

Obratite se oglašivaču

Ili