Dvosobni stan Visoka, Kman - Visoka - Sućidar, Split

€ 284.000
2
48 m²
1

Bilješka

Oglas ažuriran 03. 03. 2026.
Opis

referenca: EUROVILLA-127709

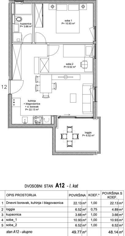
Split, Visoka, dvosoban stan novogradnja na prvom katu

Ovaj prekrasan dvosoban stan u novogradnji, smješten na prvom katu moderne zgrade na Visokoj u Splitu, predstavlja idealnu priliku za ugodan i kvalitetan život. Stan se prostire na 48.14 m2 i nudi savršeno osmišljen tlocrt koji uključuje prostrani dnevni boravak, modernu kuhinju, udobnu spavaću sobu i elegantnu kupaonicu. Loggia pruža dodatni prostor za opuštanje i uživanje u svježem zraku.Mogućnost kupnje garažnog mjesta po cijeni počevši od 35.000 eur, ovisno o samoj kvadraturi.Izgradnja je planirana za 2025. godinu, što vam omogućuje da budete među prvim stanarima i uživate u svim prednostima nove zgrade. Energetska učinkovitost osigurava niske režijske troškove i ugodnu klimu tijekom cijele godine. Lift u zgradi olakšava pristup stanu, čineći ga idealnim za sve dobne skupine.Lokacija na Visokoj je izuzetna - mirna, ali istovremeno dobro povezana sa svim važnim sadržajima u Splitu. U blizini se nalaze trgovine, škole, vrtići, parkovi i javni prijevoz, što čini svakodnevni život izuzetno praktičnim. Ne propustite priliku postati vlasnikom ovog modernog stana u jednom od najtraženijih splitskih naselja.Sve ostale informacije na upit.... Više na eurovilla.hr, ID: 127709
Ako želite znati više, možete razgovarati s Duško Mišković.
Značajke
Vrsta
Stan
Ugovor
Prodaja
Kat
1
Površina
48 m²
Prostorije
2
Spavaće sobe
2
Detalji površine

Stambeni prostor

Kat
1
Površina
48,1 m²
Koeficijent
100%
Vrsta površine
Glavni
Komercijalna površina
48,1 m²
Informacije o cijeni
Cijena
€ 284.000
Cijena po m²
5.917 €/m²
Energetska učinkovitost
  • Stanje

    Novo / U izgradnji
  • Energetski certifikat

    Oslobođeno
Tlocrt
Otkrijte svaki kutak nekretnine
+12
Dodatne mogućnosti

Obratite se oglašivaču

Ili