Dvosobni stan Visoka, Kman - Visoka - Sućidar, Split

€ 301.000
2
52 m²
PR

Bilješka

Oglas ažuriran 03. 03. 2026.
Opis

referenca: EUROVILLA-132249

Split, Visoka, dvosoban stan u novogradnji

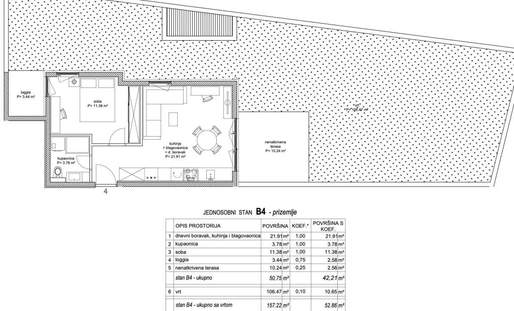
Ovaj izvanredan dvosobni stan smješten u prizemlju moderne novogradnje na Visokoj u Splitu, predstavlja savršenu kombinaciju udobnosti i stila. Stan se prostire na 52.86 m2 i nudi idealan prostor za obiteljski život ili kao investiciju.Sastoji se od dvije sobe i jedne kupaonice. Izgrađen 2025. godine, stan se može pohvaliti energetskom učinkovitošću, lođom i vrtom.Lift u zgradi olakšava pristup stanu. Lokacija stana je izuzetna, s blizinom svih važnih sadržaja - trgovina, škola, vrtića i javnog prijevoza. Visoka je mirno i ugodno naselje, idealno za one koji traže kvalitetan život u gradu.Ne propustite priliku postati vlasnikom ovog prekrasnog stana u jednoj od najpoželjnijih splitskih četvrti. Moderan dizajn, vrhunska kvaliteta gradnje i izvrsna lokacija čine ovaj stan iznimnom prilikom. Iskoristite priliku za život u luksuznom i funkcionalnom prostoru koji je pažljivo osmišljen kako bi zadovoljio sve vaše potrebe. Ovaj stan predstavlja savršen spoj elegancije i praktičnosti, idealan za moderan život u srcu Splita.Sve ostale informacije na upit.... Više na eurovilla.hr, ID: 132249
Ako želite znati više, možete razgovarati s Duško Mišković.
Značajke
Vrsta
Stan
Ugovor
Prodaja
Kat
Prizemlje
Površina
52 m²
Prostorije
2
Spavaće sobe
2
Detalji površine

Stambeni prostor

Kat
Prizemlje
Površina
52,9 m²
Koeficijent
100%
Vrsta površine
Glavni
Komercijalna površina
52,9 m²
Informacije o cijeni
Cijena
€ 301.000
Cijena po m²
5.788 €/m²
Energetska učinkovitost
  • Stanje

    Novo / U izgradnji
  • Energetski certifikat

    Oslobođeno
Tlocrt
Otkrijte svaki kutak nekretnine
+18
Dodatne mogućnosti

Obratite se oglašivaču

Ili