Dvosobni stan Visoka, Kman - Visoka - Sućidar, Split

€ 290.000
2
46 m²
2

Bilješka

Oglas ažuriran 03. 03. 2026.
Opis

referenca: EUROVILLA-137921

Split, Visoka, dvosoban stan na drugom katu

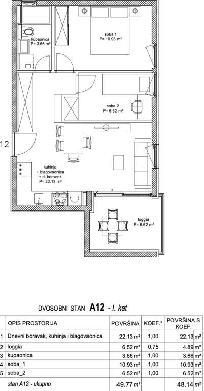
Ovaj izvanredan dvosoban stan, smješten u srcu Visoke u Splitu, predstavlja savršen spoj modernog dizajna i praktičnosti. Smješten na drugom katu novoizgrađene zgrade s liftom, ovaj stan nudi 46.26 m2 čiste udobnosti i stila. Dovršetak se očekuje 2025. godine, što vam daje priliku da osigurate svoj savršeni dom u jednom od najtraženijih splitskih naselja.Mogućnost kupnje garažnog mjesta po cijeni počevši od 35.000 eur, ovisno o samoj kvadraturi.Stan se sastoji od dvije prostrane sobe, idealne za opuštanje i zabavu, te jedne elegantno uređene kupaonice. Loggia pruža dodatni prostor za uživanje u svježem zraku i prekrasnom pogledu na okolicu. Stan je građen prema najvišim standardima energetske učinkovitosti, osiguravajući niske režijske troškove i ugodan boravak tijekom cijele godine.Lokacija je izuzetna - Visoka je poznata po svojoj mirnoj atmosferi, blizini svih važnih sadržaja i izvrsnoj povezanosti s ostatkom grada. U blizini se nalaze trgovine, restorani, škole, vrtići i javni prijevoz, što čini ovaj stan idealnim izborom za obitelji, mlade parove i sve one koji traže kvalitetan život u Splitu. Ne propustite priliku postati vlasnikom ovog prekrasnog stana u novogradnji.Sve ostale informacije na upit.... Više na eurovilla.hr, ID: 137921
Ako želite znati više, možete razgovarati s Duško Mišković.
Značajke
Vrsta
Stan
Ugovor
Prodaja
Kat
2
Površina
46 m²
Prostorije
2
Spavaće sobe
2
Detalji površine

Stambeni prostor

Kat
2
Površina
46,3 m²
Koeficijent
100%
Vrsta površine
Glavni
Komercijalna površina
46,3 m²
Informacije o cijeni
Cijena
€ 290.000
Cijena po m²
6.304 €/m²
Energetska učinkovitost
  • Stanje

    Novo / U izgradnji
  • Energetski certifikat

    Oslobođeno
Tlocrt
Otkrijte svaki kutak nekretnine
+9
Dodatne mogućnosti

Obratite se oglašivaču

Ili