Jednosobni stan Visoka, Kman - Visoka - Sućidar, Split

€ 292.000
1
45 m²
3

Bilješka

Oglas ažuriran 03. 03. 2026.
Opis

referenca: EUROVILLA-312418

Split, Visoka, jednosoban stan u novogradnji

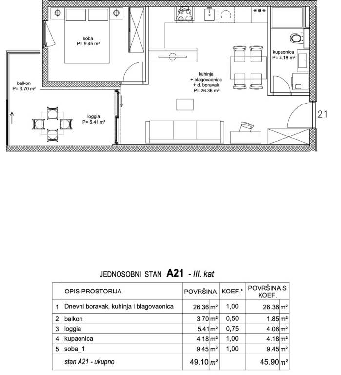
Ovaj prekrasan, jednosoban stan u novogradnji na Visokoj u Splitu predstavlja savršenu priliku za moderan i udoban život. Smješten na trećem katu zgrade s liftom, ovaj stan površine 45.90 m2 nudi idealan spoj funkcionalnosti i stila.Stan se sastoji od prostranog dnevnog boravka, moderno opremljene kuhinje, jedne kupaonice i loggie koja pruža predivan pogled. Novogradnja jamči visoku kvalitetu materijala i izrade, kao i energetsku učinkovitost, što znači niže režijske troškove i ugodniji boravak tijekom cijele godine.Lokacija na Visokoj je izuzetna - u blizini su svi potrebni sadržaji poput trgovina, restorana, škola i javnog prijevoza, što olakšava svakodnevni život. Stan je idealan za pojedince, mlade parove ili kao investicija za iznajmljivanje.Ne propustite priliku postati vlasnikom ovog prekrasnog stana u jednoj od najtraženijih četvrti Splita. Useljenje je predviđeno za 2025. godinu.Sve ostale informacije na upit.... Više na eurovilla.hr, ID: 312418
Ako želite znati više, možete razgovarati s Duško Mišković.
Značajke
Vrsta
Stan
Ugovor
Prodaja
Kat
3
Površina
45 m²
Prostorije
1
Spavaće sobe
1
Detalji površine

Stambeni prostor

Kat
3
Površina
45,9 m²
Koeficijent
100%
Vrsta površine
Glavni
Komercijalna površina
45,9 m²
Informacije o cijeni
Cijena
€ 292.000
Cijena po m²
6.489 €/m²
Energetska učinkovitost
  • Stanje

    Novo / U izgradnji
  • Energetski certifikat

    Oslobođeno
Tlocrt
Otkrijte svaki kutak nekretnine
+20
Dodatne mogućnosti

Obratite se oglašivaču

Ili