Dvosobni stan Visoka, Kman - Visoka - Sućidar, Split

€ 299.000
2
50 m²
PR

Bilješka

Oglas ažuriran 03. 03. 2026.
Opis

referenca: EUROVILLA-389560

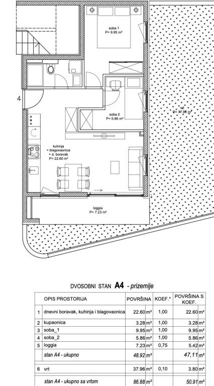
Split, Visoka, dvosoban stan s vrtom u novogradnji

Ovaj izvanredan dvosoban stan, smješten u srcu splitske Visoke, predstavlja savršen spoj luksuza i udobnosti. Smješten u prizemlju moderne novogradnje, dovršene 2025. godine, ovaj stan nudi 50.91 m2 pažljivo dizajniranog prostora.Uživajte u prostranom dnevnom boravku, idealnom za opuštanje i druženje, te potpuno opremljenoj kuhinji koja će zadovoljiti i najzahtjevnije gurmane. Stan se sastoji od dvije elegantno uređene sobe i jedne moderne kupaonice, pružajući dovoljno prostora za udoban život.Posebna pogodnost ovog stana je prekrasna loggia i privatni vrt, savršeni za uživanje u svježem zraku i opuštanje na otvorenom. Stan je energetski učinkovit, što osigurava niske režijske troškove i ugodnu klimu tijekom cijele godine. Zgrada je opremljena liftom, što olakšava pristup svim etažama.Lokacija je izuzetna - Visoka je mirno naselje s izvrsnom prometnom povezanošću i blizinom svih važnih sadržaja. U neposrednoj blizini nalaze se trgovine, restorani, škole i vrtići, što ovaj stan čini idealnim izborom za obitelji, mlade parove i sve one koji traže kvalitetan život u Splitu.Ne propustite priliku postati vlasnikom ovog predivnog stana u jednoj od najpoželjnijih splitskih četvrti. Investirajte u svoju budućnost i osigurajte si dom iz snova na Visokoj.Sve ostale informacije na upit.... Više na eurovilla.hr, ID: 389560
Ako želite znati više, možete razgovarati s Duško Mišković.
Značajke
Vrsta
Stan
Ugovor
Prodaja
Kat
Prizemlje
Površina
50 m²
Prostorije
2
Spavaće sobe
2
Detalji površine

Stambeni prostor

Kat
Prizemlje
Površina
50,9 m²
Koeficijent
100%
Vrsta površine
Glavni
Komercijalna površina
50,9 m²
Informacije o cijeni
Cijena
€ 299.000
Cijena po m²
5.980 €/m²
Energetska učinkovitost
  • Stanje

    Novo / U izgradnji
  • Energetski certifikat

    Oslobođeno
Tlocrt
Otkrijte svaki kutak nekretnine
+20
Dodatne mogućnosti

Obratite se oglašivaču

Ili