Trosobni stan Kaštel Sućurac, Kaštela

€ 460.000
3
120 m²
1
Balkon
Terasa

Bilješka

Oglas ažuriran 03. 03. 2026.
Opis

referenca: EUROVILLA-491000

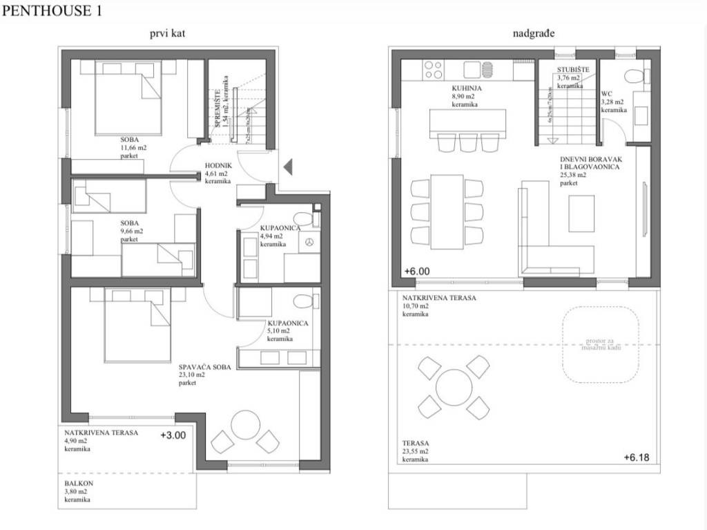
Kaštel Sućurac, luksuzan trosoban penthouse u novogradnji, 120.72 m²

Kaštel Sućurac, luksuzni penthouse s tri spavaće sobe u novogradnji smješten na prvom katu modernog stambenog objekta.Nekretnina se nalazi na parceli od 639 m2, u novoizgrađenom privatnom naselju luksuznih vila, na cesti od Splita do zračne luke.Stan se prostire na dvije etaže i ima stambenu površinu od 101,81 m2.Na prvom katu nalaze se tri spavaće sobe, hodnik, spremište, dvije kupaonice i balkon od 8,73 m2.Na drugom katu nalazi se dnevni boravak i blagovaonica, wc, kuhinja i terasa od 34,20 m2 s prekrasnim pogledom na more i grad Split.Stanu pripadaju dva vanjska nenatkrivena parkirna mjesta.Planirani završetak je treći kvartal 2026. godine.Za dodatne informacije, stojim vam na raspolaganju.... Više na eurovilla.hr, ID: 491000
Ako želite znati više, možete razgovarati s Ivan Didović.
Značajke
Vrsta
Penthouse
Ugovor
Prodaja
Kat
1
Površina
120 m²
Prostorije
3
Spavaće sobe
3
Balkon
Da
Terasa
Da
Detalji površine

Stambeni prostor

Kat
1
Površina
120,7 m²
Koeficijent
100%
Vrsta površine
Glavni
Komercijalna površina
120,7 m²
Informacije o cijeni
Cijena
€ 460.000
Cijena po m²
3.833 €/m²
Energetska učinkovitost
  • Stanje

    Novo / U izgradnji
  • Energetski certifikat

    Oslobođeno
Tlocrt
Otkrijte svaki kutak nekretnine
+20
Dodatne mogućnosti

Obratite se oglašivaču

Ili