Jednosobni stan Visoka, Kman - Visoka - Sućidar, Split

€ 286.000
1
46 m²
2
Balkon

Bilješka

Oglas ažuriran 03. 03. 2026.
Opis

referenca: EUROVILLA-608110

Split, Visoka, novogradnja s balkonom i loggiom

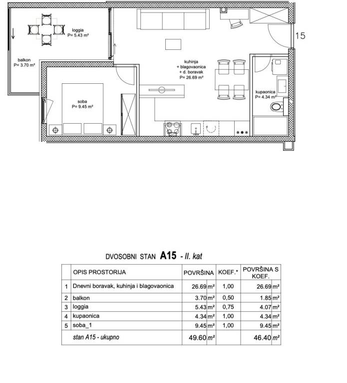
Ovaj izvanredan jednosobni stan, smješten u srcu Visoke u Splitu, predstavlja savršenu priliku za moderan i udoban život. Smješten na drugom katu novogradnje iz 2025. godine, ovaj stan od 46.40 m2 nudi idealan spoj stila, funkcionalnosti i prvoklasne lokacije.Stan se sastoji od prostranog dnevnog boravka, moderne kupaonice i balkona te loggie koji pružaju predivan pogled i obilje prirodnog svjetla. Visoka kvaliteta gradnje i pažljivo odabrani materijali osiguravaju energetsku učinkovitost i dugovječnost. Uživajte u prednostima života u novogradnji koja je opremljena najnovijim tehnologijama i dizajnerskim rješenjima.Lokacija je izuzetna - Visoka je mirno naselje s izvrsnom povezanošću s ostalim dijelovima Splita. U neposrednoj blizini nalaze se trgovine, restorani, škole i javni prijevoz, što čini ovaj stan idealnim izborom za mlade profesionalce, parove ili investitore. Ne propustite priliku postati vlasnikom ovog prekrasnog stana koji nudi sve što vam je potrebno za ugodan i kvalitetan život u Splitu.Sve ostale informacije na upit.... Više na eurovilla.hr, ID: 608110
Ako želite znati više, možete razgovarati s Duško Mišković.
Značajke
Vrsta
Stan
Ugovor
Prodaja
Kat
2
Površina
46 m²
Prostorije
1
Spavaće sobe
1
Balkon
Da
Detalji površine

Stambeni prostor

Kat
2
Površina
46,4 m²
Koeficijent
100%
Vrsta površine
Glavni
Komercijalna površina
46,4 m²
Informacije o cijeni
Cijena
€ 286.000
Cijena po m²
6.217 €/m²
Energetska učinkovitost
  • Stanje

    Novo / U izgradnji
  • Energetski certifikat

    Oslobođeno
Tlocrt
Otkrijte svaki kutak nekretnine
+20
Dodatne mogućnosti

Obratite se oglašivaču

Ili