Dvosobni stan Okrug Gornji, Okrug

€ 420.000
2
86 m²
3
Balkon
Terasa

Bilješka

Oglas ažuriran 03. 03. 2026.
Opis

referenca: EUROVILLA-641617

Čiovo, Okrug Gornji, dvosoban penthouse s krovnom terasom i dva parkirna mjesta

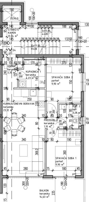
Čiovo, Okrug Gornji, dvosoban penthouse položen na trećoj etaži modernog objekta s bazenom i liftom, u izgradnji.Stan S8 se sastoji od ulaznog hodnika, dvije spavaće sobe, dvije kupaonice, kuhinje s blagovaonicom i dnevnog boravka s izlazom na natkriveni balkon površine 14, 63 m2. Pripada mu krovna terasa površine 70, 4 m2 s predivnim pogledom na more. Površina zatvorenog stambenog dijela iznosi 55 m2, a ukupna 86 m2.U cijenu su uračunata dva vanjska nenatkrivena parkirna mjesta.Objekt je smještan na južnoj strani Čiova, na odličnoj lokaciji, jako blizu uređenih plaža, restorana, trgovina,….Za sva ostala pitanja, stojim na raspolaganju.... Više na eurovilla.hr, ID: 641617
Ako želite znati više, možete razgovarati s Josipa Serdarušić.
Značajke
Vrsta
Stan
Ugovor
Prodaja
Kat
3
Površina
86 m²
Prostorije
2
Spavaće sobe
2
Balkon
Da
Terasa
Da
Detalji površine

Stambeni prostor

Kat
3
Površina
86,0 m²
Koeficijent
100%
Vrsta površine
Glavni
Komercijalna površina
86,0 m²
Informacije o cijeni
Cijena
€ 420.000
Cijena po m²
4.884 €/m²
Energetska učinkovitost
  • Stanje

    Novo / U izgradnji
  • Energetski certifikat

    Oslobođeno
Tlocrt
Otkrijte svaki kutak nekretnine
+21
Dodatne mogućnosti

Obratite se oglašivaču

Ili