Dvosobni stan Visoka, Kman - Visoka - Sućidar, Split

€ 347.000
2
58 m²
PR

Bilješka

Oglas ažuriran 03. 03. 2026.
Opis

referenca: EUROVILLA-944865

Split, Visoka, moderan stan s vrtom

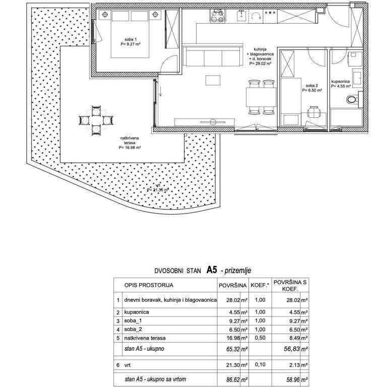
Ovaj izniman dvosobni stan, smješten u srcu Visoke u Splitu, predstavlja savršenu kombinaciju modernog dizajna i vrhunske lokacije. Smješten u prizemlju novoizgrađene zgrade iz 2025. godine, ovaj stan nudi 58.96 m2 pažljivo osmišljenog prostora.Uživajte u prostranom dnevnom boravku, idealnom za opuštanje i druženje, te modernoj kuhinji opremljenoj najkvalitetnijim aparatima. Stan se sastoji od dvije udobne spavaće sobe i jedne elegantne kupaonice, dizajnirane s naglaskom na udobnost i funkcionalnost. Loggia pruža dodatni prostor za uživanje na svježem zraku, dok privatni vrt nudi oazu mira i opuštanja.Zgrada je energetski učinkovita i opremljena liftom, što osigurava visoku kvalitetu života. Lokacija je izuzetna, s blizinom svih važnih sadržaja - trgovina, škola, vrtića i javnog prijevoza. Ovo je idealna prilika za one koji traže moderan dom u mirnom, ali urbanom okruženju. Ne propustite priliku postati vlasnikom ovog prekrasnog stana.Sve ostale informacije na upit.... Više na eurovilla.hr, ID: 944865
Ako želite znati više, možete razgovarati s Duško Mišković.
Značajke
Vrsta
Stan
Ugovor
Prodaja
Kat
Prizemlje
Površina
58 m²
Prostorije
2
Spavaće sobe
2
Detalji površine

Stambeni prostor

Kat
Prizemlje
Površina
59,0 m²
Koeficijent
100%
Vrsta površine
Glavni
Komercijalna površina
59,0 m²
Informacije o cijeni
Cijena
€ 347.000
Cijena po m²
5.983 €/m²
Energetska učinkovitost
  • Stanje

    Novo / U izgradnji
  • Energetski certifikat

    Oslobođeno
Tlocrt
Otkrijte svaki kutak nekretnine
+20
Dodatne mogućnosti

Obratite se oglašivaču

Ili