Trosobni stan Škrapavac, Privlaka, Privlaka

€ 471.000
3
128 m²
2
1
Ne
Terasa

Bilješka

Oglas ažuriran 29. 04. 2026.
Opis

referenca: 378

ZADAR, PRIVLAKA - Penthouse u izgradnji 100 m od mora S8

ZADAR, PRIVLAKA - Penthouse u izgradnji 100 m od mora S8

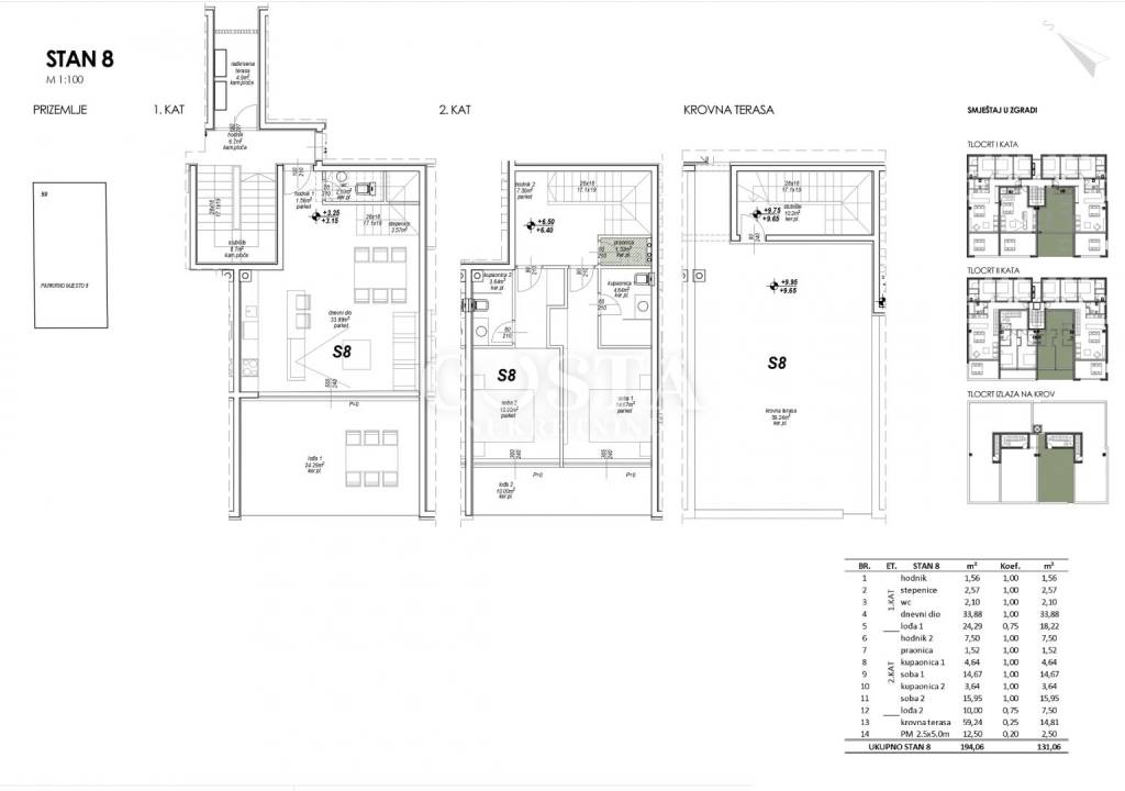
Prodaje se stan u izgradnji u mjestu Privlaka u blizini Zadra. Stan površine 88,03 m2 nalazi se na prvom i drugom katu stambene zgrade s 10 jedinica. Sastoji se od dnevnog boravka, kuhinje i blagovaone, dodatnog wc, hodnika i lođe od dodatnih 24,29 m2 na prvom katu, te stubišta, dvije spavaće sobe, dvije kupaonice, vešeraja, hodnika i lođe od dodatnih 10 m2. Stanu pripada i dio krovne terase od 59,24 m2, privatno parkirno mjesto u dvorištu zgrade. Sveukupna korisna površina stana zajedno s pripacima iznosi 194,06 m2 (K.V. 131,06 m2).

U izgradnji su korišteni kvalitetni materijali poput PVC stolarije s komarnicima i elektroroletnama, na fasadi je termoizolacija 10 cm stiropor, a za podne obloge korišteni su parketi i keramičke pločice. Stan je kompletno klimatiziran, a provedeno je i podno grijanje.

Planirani rok završetka gradnje je polovicom 2026. godine.

Objekt se nalazi na izvrsnoj lokaciji u Privlaci a udaljen je od mora i plaže Mletak tek 100 m. U blizini se nalazi beach bar i trgovina udaljena 400 m, a centar mjesta udaljen je 3 km. U blizini se nalazi i kraljevski gradić Nin, a urbani centar grad Zadar udaljen je 17 km. Najbliža zračna luka Zemunik udaljena je 30 km.

Poštovani klijenti, posrednička naknada naplaćuje se u skladu s Općim uvjetima poslovanja:
https://costa-nekretnine.hr/o-nama/opci-uvjeti-poslovanja

ID CODE: 378

Sara Večeralo
Agent s licencom
Mob: +385 99 284 0404
Tel: +385 99 864 9125
E-mail: sara@costa-nekretnine.hr
www.costa-nekretnine.hr
Značajke
Vrsta
Stan
Ugovor
Prodaja
Kat
1 kat
Katovi zgrade
2
Dizalo
Ne
Površina
128 m²
Prostorije
3
Spavaće sobe
2
Kupaonice
2
Balkon
Ne
Terasa
Da
Garažno mjesto, parkirna mjesta
1 na zajedničkom parkingu
Klimatizacija
Samostalno, hlađenje/grijanje
Informacije o cijeni
Cijena
€ 471.000
Cijena po m²
3.680 €/m²
Energetska učinkovitost
  • Godina izgradnje

    2026
  • Klima uređaj

    Samostalno, hlađenje/grijanje
  • Energetski certifikat

    Neklasificirano
Tlocrt
Otkrijte svaki kutak nekretnine
+11
Dodatne mogućnosti

Obratite se oglašivaču

Ili