Građevinsko zemljište za Prodaja

€ 98.000
484 m²

Bilješka

Oglas ažuriran 07. 03. 2026.
Opis

referenca: z-61

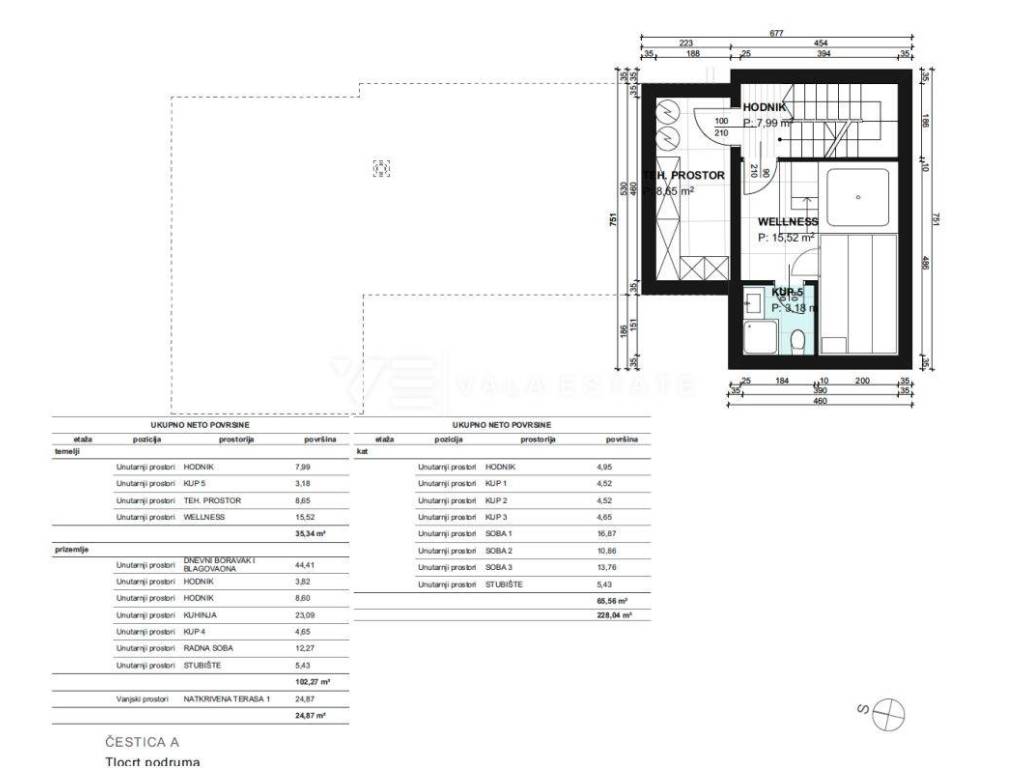
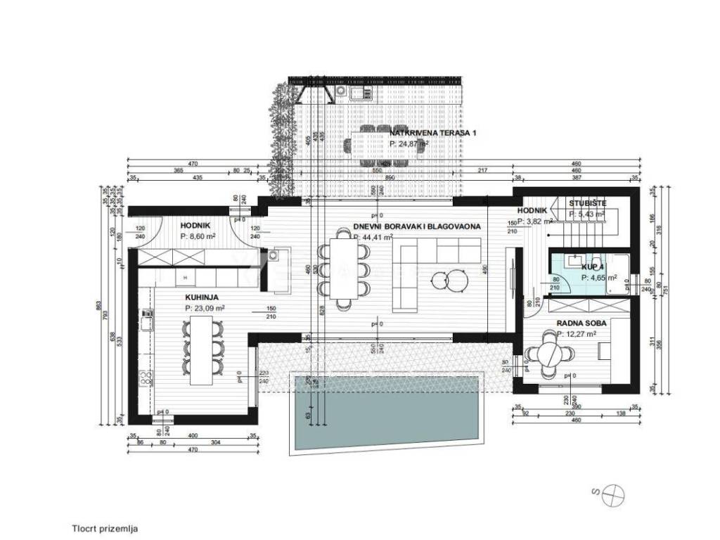
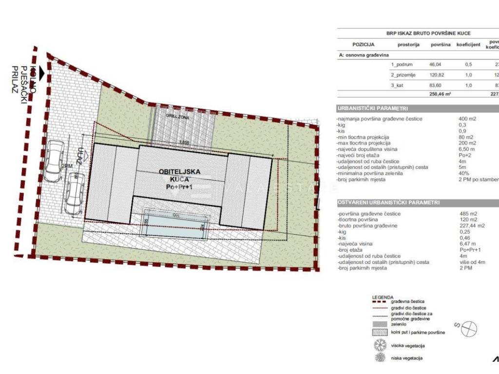
GRAĐEVINSKO ZEMLJIŠTE SA PROJEKTNOM DOKUMENTACIJOM NA MIRNOJ RURALNOJ LOKACIJI

Nekretnine otok Krk, Vrbnik šire područje - na prodaju je građevinsko zemljište veličine 484 m2 sa projektnom dokumentacijom za izgradnju moderne mediteranske vile za odmor ili vlastito korištenje od 227,44 m2 sa wellnesom, bazenom i oplemenjenom okućnicom. Zemljište se nalazi na mirnoj lokaciji udaljenoj 5000 m od mora, omeđeno zelenom zonom i obiteljskim vilama.
Agencija Vala Estate Malinska će Vam omogućiti siguran i transparentan prijenos vlasništva i sve potrebne dokumentacije.

ID KOD AGENCIJE: z-61

VALA ESTATE d.o.o.
Mob: +385 99 444 0550
Tel: +385 51 568 917
E-mail: info@vala-estate.com
www.vala-estate.com
Značajke
Ugovor
Prodaja
Vrsta
Građevinsko zemljište
Površina
484 m²
Informacije o cijeni
Cijena
€ 98.000
Cijena po m²
202 €/m²
Otkrijte svaki kutak nekretnine
+12
Dodatne mogućnosti

Obratite se oglašivaču

Ili