Trosobni stan Krk, Centar, Krk

€ 780.000
3
167 m²
2
1
Ne
Balkon
Terasa

Bilješka

Oglas ažuriran 25. 03. 2026.
Opis

referenca: 323

Stan u novogradnji, otok Krk, 167 m2

Prodaje se novogradnja na otoku Krku. Stan ima ukupno 167 m2. Zatvoreni dio iznosi oko 123 m2+terasa i 2 parkirna mjesta. Stan se sastoji od: 3 sobe, hodnika, 2 kupaonice i 1 wc-a, dnevnog boravka sa kuhinjom i velikom terasom. Stan je dvoetažni i ima izlaz na gornji kat, odnosno na krov sa bazenom. Zgrada je gotova i ima dva kata.
Lokacija je u Malom Kartecu na otoku Krku. Plaža Plav je udaljena 400 m, a grad Krk 1km.

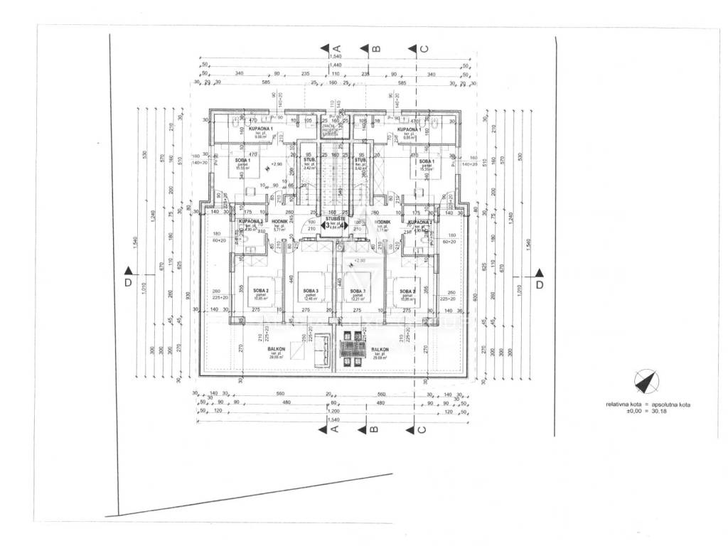
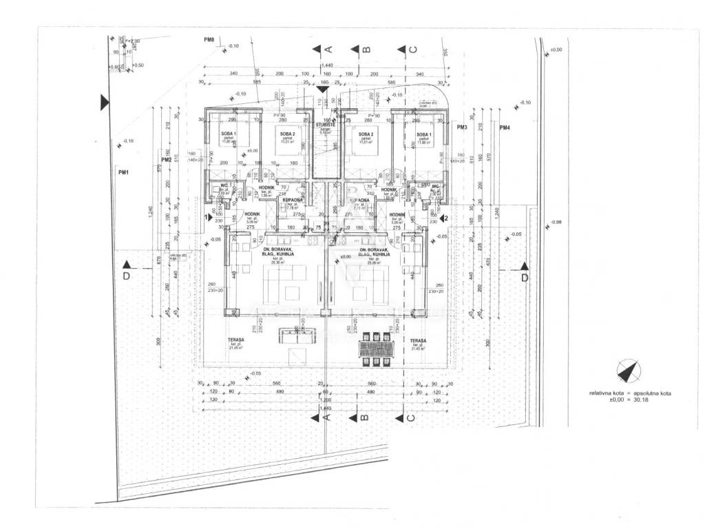
Tlocrt stana:
Soba 1 – 15,55 m2
Soba 2 – 10,85 m2
Soba 3 – 12,21 m2
Hodnik 1 – 5,71 m2
Stubište – 3,42 - 3,42 - 3,94 m2
Kupaonica 1 – 9,06 m2
Kupaonica 2 – 4,90
WC – 2,66 m2
Balkon – 29,09 m2
Dnevni boravak, kuhinja i blagovaonica – 48,04 m2
Terasa – 12,96 m2
Balkon – 28,96 m2
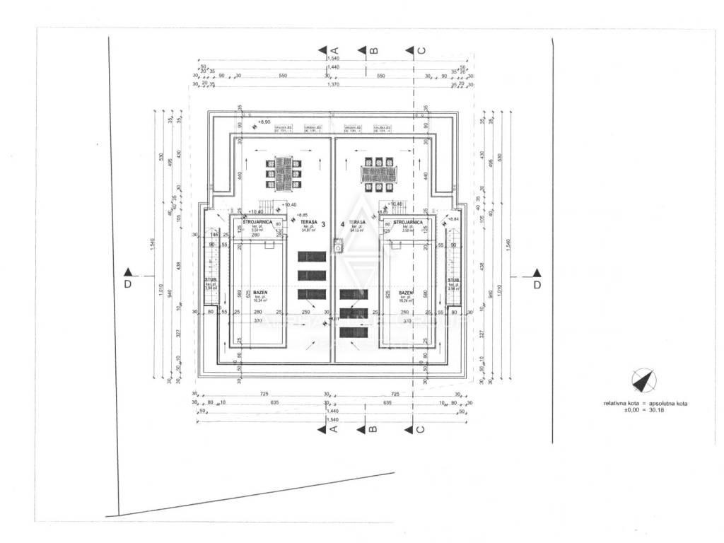
Terasa - 54,65 m2
Strojarnica - 3,50 m2
Bazen - 16,24 m2

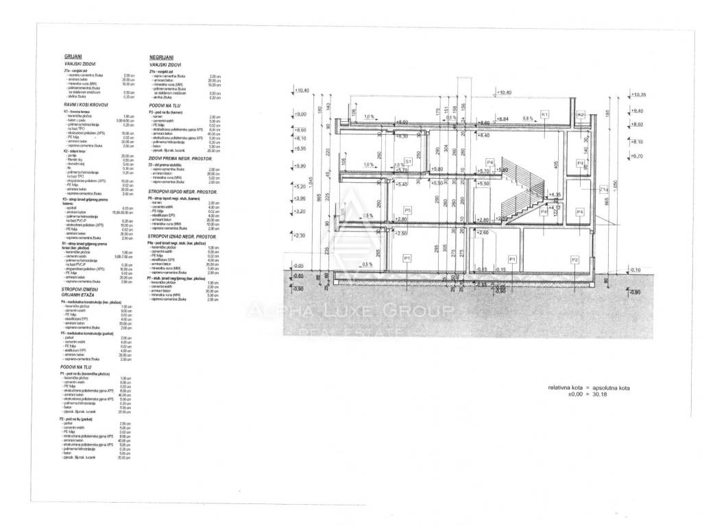
DETALJI O GRAĐEVINI
Grijani vanjski zidovi:
Vanjski zid
Vapneno-cementna žbuka
Mineralna vuna
Polimer cementna žbuka sa staklenom mrežicom
Akrilna žbuka

Ravni i kosi krovovi:
Krovna terasa
Keramičke pločice
Beton u padu
Polimerna hidroizolacija na bazi TPO
Ekstrudirani polistiren
PE folija
Armirani beton
Vapneno-cementna žbuka

Zeleni krov:
Zemlja
Filterski sloj
Drenažni sloj
Filc
Polimerna hidroizolacija na bazi TPO
Ekspandirani polistiren
PE folija
Armirani beton
Vapneno-cementna žbuka

Strop iznad grijanog prema bazenu:
Epoksil
Armirani beton
Polimerna hidroizolacija na bazi PVC-P
Ekstrudirani polistiren
PE folija
Armirani beton
Vapneno-cementna žbuka

Strop iznad grijanog prema terasi:
Keramičke pločice
Cementni estrih
Polimerna hidroizolacija na bazi PVC-P
Ekspandirani polistiren
PE folija
Armirani beton
Vapneno-cementna žbuka

Stropovi između grijanih etaža:
Međukatna konstrukcija:
Keramičke pločice
Cementni estrih
PE folija
Elastificirani EPS
Armirani beton
Vapneno-cementna žbuka

Međukatna konstrukcija:
Parket
Cementni estrih
PE folija
Elatificirani EPS
Armirani beton
Vapneno-cementna žbuka

Podovi na tlu:
Pod na tlu:
Keramičke pločice
Cementni estrih
PE folija
Ekstrudirana polistirenska pjena
Armirani beton
Ekstrudirana polistirenska pjena
Polimerna hidroizolacija
Beton
Pijesak, šljunak, tucanik

Pod na tlu:
Parket
Cementni estrih
Pe folija
Ekstrudirana polistirenska pjena
Armirani beton
Ekstrudirana polistirenska pjena
Polimerna hidroizolacija
Beton
Pijesak, šljunak, tucanik

Za sva pitanja kontakt telefon 098 / 915 - 5643 ( Ivan )

LORETA NEKRETNINE
Loreta Usluge Office: Tel: 01 / 3866 - 844
Zagrebačka avenija 100a, 10 000 Zagreb
www.loreta-nekretnine.com

A new building for sale on the island of Krk. The apartment has a total of 167 m2. The closed part is about 123 m2 + terrace and 2 parking spaces. The apartment consists of: 3 bedrooms, hallway, 2 bathrooms and 1 toilet, living room with kitchen and large terrace. The apartment is two-storey and has access to the upper floor, i.e. to the roof with a swimming pool. The building is finished and has two floors.
The location is in Mali Kartec on the island of Krk. Plav beach is 400 m away, and the town of Krk is 1 km away.

Floor plan of the apartment:
Room 1 – 15.55 m2
Room 2 – 10.85 m2
Room 3 – 12.21 m2
Hallway 1 – 5.71 m2
Stubište – 3,42 - 3,42 - 3,94 m2
Bathroom 1 – 9.06 m2
Bathroom 2 – 4.90
Toilet – 2.66 m2
Balcony – 29.09 m2
Living room, kitchen and dining room – 48.04 m2
Terrace – 12.96 m2
Balcony – 28.96 m2
Terrace - 54.65 m2
Engine room - 3.50 m2
Swimming pool - 16.24 m2

DETAILS ABOUT THE BUILDING
Heated exterior walls:
Exterior wall
Lime-cement plaster
Mineral vuna
Polymer cement plaster with fiberglass mesh
Acrylic plaster

Flat and pitched roofs:
Roof terrace
Ceramic tiles
Concrete in the fall
TPO-based polymer waterproofing
Extruded polystyrene
PE foil
Reinforced concrete
Lime-cement plaster

Green roof:
Earth
Filter layer
Drainage layer
Felt
TPO-based polymer waterproofing
Expanded polystyrene
PE foil
Reinforced concrete
Lime-cement plaster

Ceiling above the heated facing the pool:
Epoxy
Reinforced concrete
Polymer waterproofing based on PVC-P
Extruded polystyrene
PE foil
Reinforced concrete
Lime-cement plaster

Ceiling above the heated towards the terrace:
Ceramic tiles
Cement screed
Polymer waterproofing based on PVC-P
Expanded polystyrene
PE foil
Reinforced concrete
Lime-cement plaster

Ceilings between heated floors:
Interfloor construction:
Ceramic tiles
Cement screed
PE foil
Elastificirani EPS
Reinforced concrete
Lime-cement plaster

Interfloor construction:
Parquet
Cement screed
PE foil
Elatified EPS
Reinforced concrete
Lime-cement plaster

Flooring on the ground:
Floor on the background:
Ceramic tiles
Cement screed
PE foil
Extruded polystyrene foam
Reinforced concrete
Extruded polystyrene foam
Polymer waterproofing
Concrete
Sand, gravel, gravel

Floor on the background:
Parquet
Cement screed
On foil
Extruded polystyrene foam
Reinforced concrete
Extruded polystyrene foam
Polymer waterproofing
Concrete
Sand, gravel, gravel

For all questions contact phone 098 / 915 - 5643 ( Ivan )

LORETA REAL ESTATE
Loreta Services Office: Tel: 01 / 3866 - 844
Zagrebačka avenija 100a, 10 000 Zagreb
www.loreta-nekretnine.com

ID CODE: 323
Značajke
Vrsta
Stan
Ugovor
Prodaja
Kat
1 kat
Katovi zgrade
2
Dizalo
Ne
Površina
167 m²
Prostorije
3
Spavaće sobe
3
Kupaonice
2
Balkon
Da
Terasa
Da
Garažno mjesto, parkirna mjesta
2 na zajedničkom parkingu
Grijanje
Samostalno, zrak
Klimatizacija
Samostalno, hlađenje/grijanje
Ostale karakteristike
  • Alarmni sustav
Informacije o cijeni
Cijena
€ 780.000
Cijena po m²
4.671 €/m²
Energetska učinkovitost

Potrošnja energije

A+

Otkrijte svaki kutak nekretnine
+40
Dodatne mogućnosti

Obratite se oglašivaču

Ili