Dvosobni stan Krk, Centar, Krk

€ 390.000
2
92 m²
1
PR
Ne
Terasa

Bilješka

Oglas ažuriran 11. 03. 2026.
Opis

referenca: 321

Stan u novogradnji, otok Krk, 92 m2

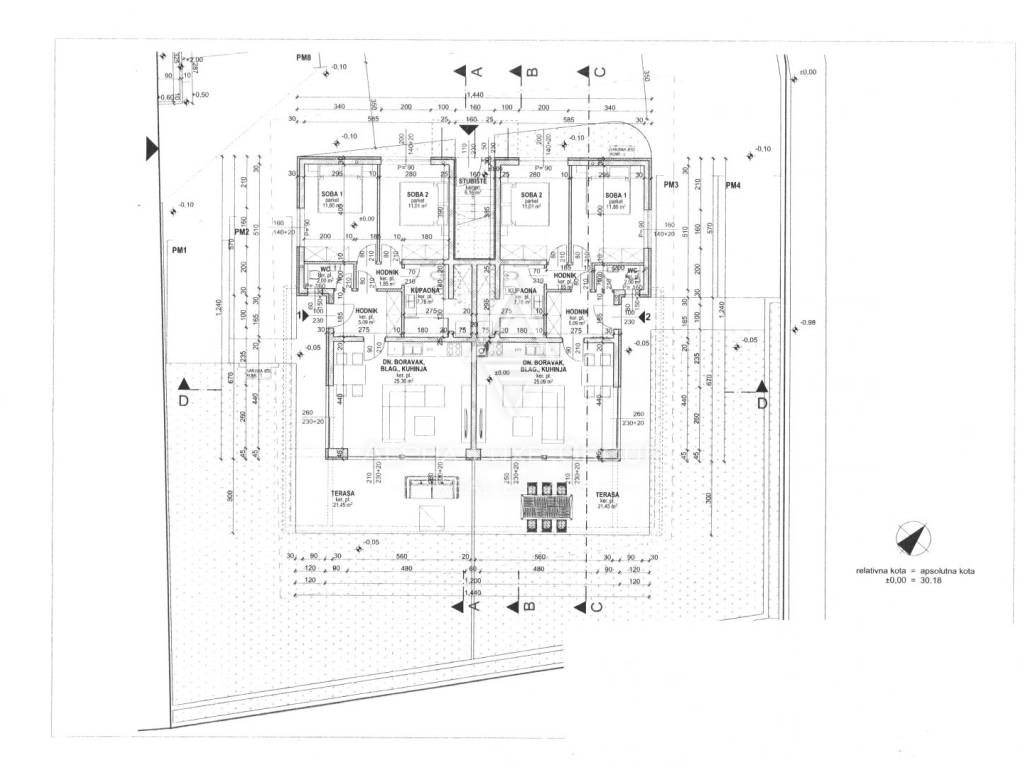
Prodaje se novogradnja na otoku Krku. Stan ima ukupno 92 m2. Zatvoreni dio iznosi oko 65 m2+dvorište i 2 parkirna mjesta. Stan se sastoji od: 2 sobe, hodnika, 1 kupaonice i 1 wc-a, te dnevnog boravka sa kuhinjom. Stan je u prizemlju i ima izlaz u dvorište, odnosno na terasu od 21,45 m2. Zgrada je gotova i ima dva kata.
Lokacija je u Malom Kartecu na otoku Krku. Plaža Plav je udaljena 400 m, a grad Krk 1km.

Tlocrt stana:
Soba 1 – 11,80 m2
Soba 2 – 11,01 m2
Hodnik 1 – 1,85 m2
Hodnik 2 – 5,09 m2
Kupaonica – 7,78 m2
WC – 2 m2
Dnevni boravak, kuhinja i blagovaonica – 25,36 m2
UKUPNO: 64,89 m2
Terasa – 21,45 m2

DETALJI O GRAĐEVINI
Grijani vanjski zidovi:
Vanjski zid
Vapneno-cementna žbuka
Mineralna vuna
Polimer cementna žbuka sa staklenom mrežicom
Akrilna žbuka

Ravni i kosi krovovi:
Krovna terasa
Keramičke pločice
Beton u padu
Polimerna hidroizolacija na bazi TPO
Ekstrudirani polistiren
PE folija
Armirani beton
Vapneno-cementna žbuka

Zeleni krov:
Zemlja
Filterski sloj
Drenažni sloj
Filc
Polimerna hidroizolacija na bazi TPO
Ekspandirani polistiren
PE folija
Armirani beton
Vapneno-cementna žbuka

Strop iznad grijanog prema terasi:
Keramičke pločice
Cementni estrih
Polimerna hidroizolacija na bazi PVC-P
Ekspandirani polistiren
PE folija
Armirani beton
Vapneno-cementna žbuka

Stropovi između grijanih etaža:
Međukatna konstrukcija:
Keramičke pločice
Cementni estrih
PE folija
Elastificirani EPS
Armirani beton
Vapneno-cementna žbuka

Međukatna konstrukcija:
Parket
Cementni estrih
PE folija
Elatificirani EPS
Armirani beton
Vapneno-cementna žbuka

Podovi na tlu:
Pod na tlu:
Keramičke pločice
Cementni estrih
PE folija
Ekstrudirana polistirenska pjena
Armirani beton
Ekstrudirana polistirenska pjena
Polimerna hidroizolacija
Beton
Pijesak, šljunak, tucanik

Pod na tlu:
Parket
Cementni estrih
Pe folija
Ekstrudirana polistirenska pjena
Armirani beton
Ekstrudirana polistirenska pjena
Polimerna hidroizolacija
Beton
Pijesak, šljunak, tucanik

Za sva pitanja kontakt telefon 098 / 915 - 5643 ( Ivan )

LORETA NEKRETNINE
Loreta Usluge Office: Tel: 01 / 3866 - 844
Zagrebačka avenija 100a, 10 000 Zagreb
www.loreta-nekretnine.com

New building for sale on the island of Krk. The apartment has a total of 92 m2. The closed part is about 65 m2 + yard and 2 parking spaces. The apartment consists of: 2 bedrooms, hallway, 1 bathroom and 1 toilet, and a living room with kitchen. The apartment is on the ground floor and has access to the yard, i.e. to the terrace of 21.45 m2. The building is finished and has two floors.
The location is in Mali Kartec on the island of Krk. Plav beach is 400 m away, and the town of Krk is 1 km away.

Floor plan of the apartment:
Room 1 – 11.80 m2
Room 2 – 11.01 m2
Hallway 1 – 1.85 m2
Hallway 2 – 5.09 m2
Bathroom – 7.78 m2
Toilet – 2 m2
Living room, kitchen and dining room – 25.36 m2
TOTAL SIZE: 64.89 m2
Terrace – 21.45 m2

BUILDING DETAILS
Heated exterior walls:
Exterior wall
Lime-cement plaster
Mineral wool
Polymer Cement Plaster With Glass Mesh
Acrylic plaster

Flat and pitched roofs:
Roof terrace
Ceramic tiles
Concrete in decline
TPO-based polymer waterproofing
Extruded polystyrene
PE foil
Reinforced concrete
Lime-cement plaster

Green roof:
Earth
Filter layer
Drainage layer
Felt
TPO-based polymer waterproofing
Expanded polystyrene
PE foil
Reinforced concrete
Lime-cement plaster
Ceiling above heated towards the terrace:
Ceramic tiles
Cement screed
Polymer waterproofing based on PVC-P
Expanded polystyrene
PE foil
Reinforced concrete
Lime-cement plaster

Ceilings between heated floors:
Interfloor construction:
Ceramic tiles
Cement screed
PE foil
Elastificirani EPS
Reinforced concrete
Lime-cement plaster

Interfloor construction:
Parquet
Cement screed
PE foil
Elalatified EPS
Reinforced concrete
Lime-cement plaster

Flooring on the ground:
Pod on the ground:
Ceramic tiles
Cement screed
PE foil
Extruded polystyrene foam
Reinforced concrete
Extruded polystyrene foam
Polymer waterproofing
Concrete
Sand, gravel, gravel

Pod on the ground:
Parquet
Cement screed
On the sheet
Extruded polystyrene foam
Reinforced concrete
Extruded polystyrene foam
Polymer waterproofing
Concrete
Sand, gravel, gravel

For all questions contact phone 098 / 915 - 5643 ( Ivan )

LORETA REAL ESTATE
Loreta Services Office: Tel: 01 / 3866 - 844
Zagrebačka avenija 100a, 10 000 Zagreb
www.loreta-nekretnine.com

ID CODE: 321
Značajke
Vrsta
Stan
Ugovor
Prodaja
Kat
Prizemlje
Katovi zgrade
2
Dizalo
Ne
Površina
92 m²
Prostorije
2
Spavaće sobe
2
Kupaonice
1
Balkon
Ne
Terasa
Da
Garažno mjesto, parkirna mjesta
2 na zajedničkom parkingu
Grijanje
Samostalno, zrak
Klimatizacija
Samostalno, hlađenje/grijanje
Ostale karakteristike
  • Alarmni sustav
Informacije o cijeni
Cijena
€ 390.000
Cijena po m²
4.239 €/m²
Energetska učinkovitost

Potrošnja energije

A+

Otkrijte svaki kutak nekretnine
+13
Dodatne mogućnosti

Obratite se oglašivaču

Ili