Obiteljska kuća 127 m², novo, Selnica

€ 241.300
4
127 m²
1
Terasa

Bilješka

Oglas ažuriran 12. 03. 2026.
Opis

referenca: VZ3508

Novoizgrađena desna montažna duplex kuća u Selnici

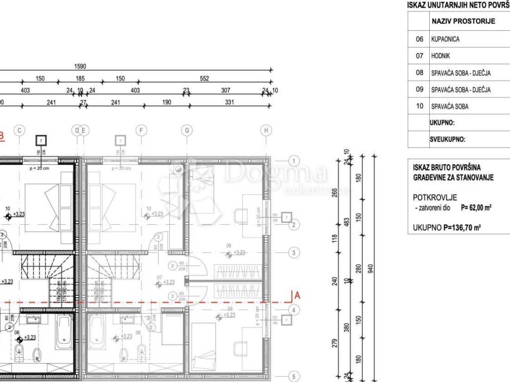
U atraktivnom i mirnom dijelu Selnice nudi se dvojna kuća - desna jedinica, novoizgrađena montažna kuća ukupne površine 127 m, koja spaja moderan izgled, praktičnost i energetsku učinkovitost, stvarajući idealan dom za obitelj. Kuća je pažljivo projektirana i pruža prostrano prizemlje s hodnikom, stepeništem, zasebnim sanitarnim čvorom te otvorenim dnevnim boravkom povezanom s kuhinjom i blagovaonicom, s izlazom na terasu. Dodatna prostorija predviđena za vešeraj omogućuje jednostavan pristup dvorištu i dodatni skladišni prostor, dok kat nudi tri spavaće sobe i kupaonicu, sve povezano hodnikom, osiguravajući ugodan i praktičan životni prostor za cijelu obitelj.

Posebna vrijednost ove kuće je priprema za buduće naselje, visoka kvaliteta gradnje te moderni standardi koji zadovoljavaju najviše kriterije stanovanja. Energetski razred A+ jamči niske troškove grijanja i ugodnu temperaturu tijekom cijele godine, dok podno grijanje na plin i klima uređaji u dnevnom boravku i hodniku na katu dodatno povećavaju komfor. PVC stolarija u antracit boji i termofasada debljine 15 cm osiguravaju izvrsnu izolaciju, a svaki kvadratni metar prostorija iskorišten je maksimalno kako bi život u kući bio funkcionalan i ugodan. Gradnja je započela u studenom 2025., a završetak je planiran za svibanj 2026., uz prodaju u fazi ključ u ruke, što znači da će kuća biti potpuno dovršena, uključujući uređeni okoliš i parkirna mjesta, spremna za useljenje bez dodatnih troškova.

Financijski aspekti dodatno ističu atraktivnost ove nekretnine - kuća je u sustavu PDV-a, što znači da kupac ne plaća porez na promet nekretnina od 3%, a postoji i mogućnost povrata dijela PDV-a prema važećim državnim mjerama. Ova moderno dizajnirana duplex kuća idealan je izbor za obitelji koje traže energetski učinkovit, funkcionalan i komforan dom u mirnom i perspektivnom naselju, gdje su svi detalji, od podnog grijanja, kvalitetne stolarije i termofasade do klimatizacije, pažljivo planirani radi maksimalne udobnosti svakodnevnog života.

ID KOD AGENCIJE: VZ3508

Simona Vlašić
Asistent u posredovanju
Mob: 098/987-6614
Tel: 042/562-017
E-mail: simona.vlasic@dogma-nekretnine.com
www.dogma-nekretnine.com
Ako želite znati više, možete razgovarati s Simona Vlašić.
Značajke
Vrsta
Obiteljska kuća
Ugovor
Prodaja
Površina
127 m²
Prostorije
4
Spavaće sobe
3
Kupaonice
1
Balkon
Ne
Terasa
Da
Informacije o cijeni
Cijena
€ 241.300
Cijena po m²
1.900 €/m²
Energetska učinkovitost

Potrošnja energije

A+

Otkrijte svaki kutak nekretnine
+5
Dodatne mogućnosti

Obratite se oglašivaču

Ili