Građevinsko zemljište za Prodaja

€ 85.000
500 m²

Bilješka

Oglas ažuriran 18. 03. 2026.
Opis

referenca: 269

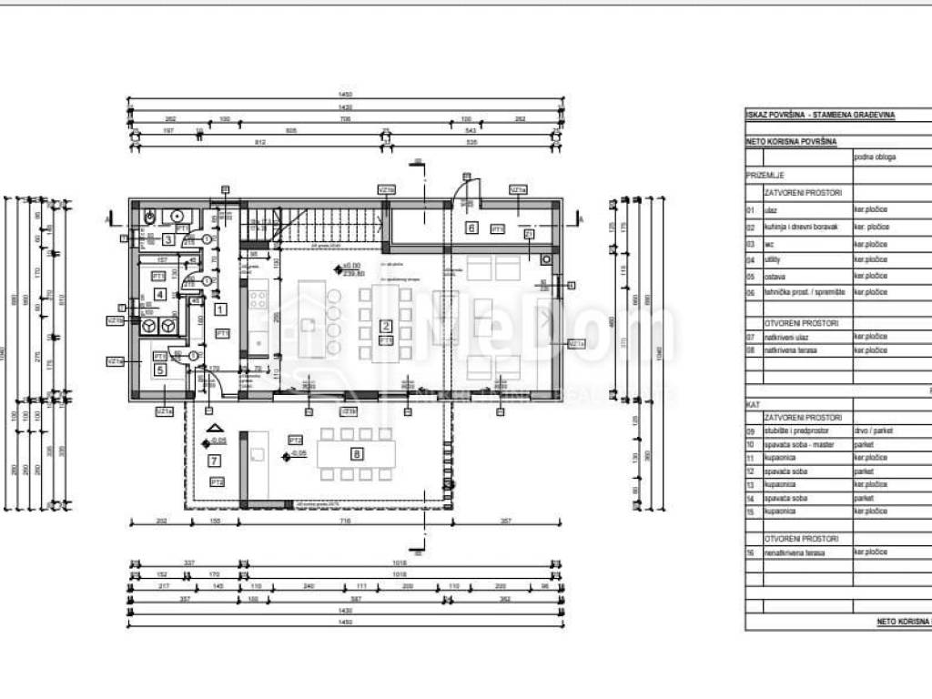
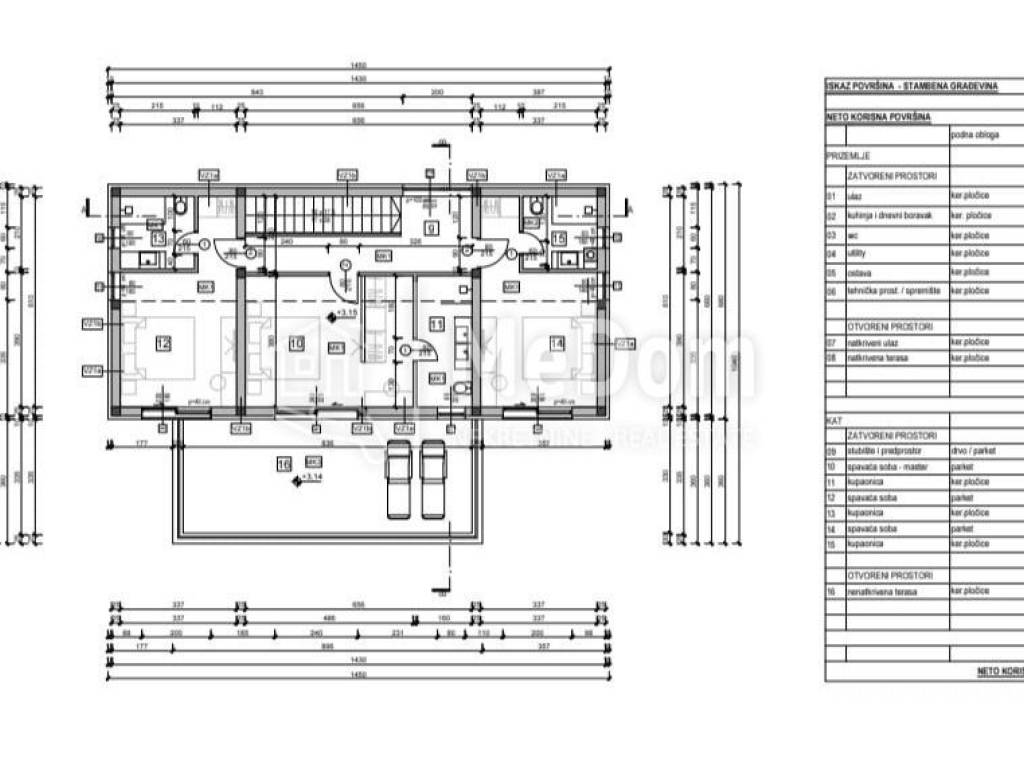
Građevinsko zemljište sa građevinskom dozvolom

Prodajemo građevinsko zemjište površine 500m2, sa važećom građevniskom dozvolom u južnom dijelu Istre. Zemljište je kvadratnog oblika, osunčano, okruženo drugim novim kućama sa bazenima. Sa prvog kata u daljini se visi more. Neto površina kuće je 180m2. Prizemlje se sastoji od hodnika, kuhinje, dnevnog boravka i blagovaonice, wc-a, ostave, tehničke sobe i natkrivene terase. Prvi kat sastoji se od hodnika, tri spavaće sobe, tri kupaonice i natkrivene terase. U vrtu kuće projektiran je bazen i spremište. Komunalni doprinos plaćen je u cijelosti. Vlasnik projekta ima elektro energetsku suglasnost za priključak struje i dozvolu za privremeni priključak vode. Prilika za one koji žele odmah početi sa izgradnjom kuće u Istri, za sebe ili iznajmljivanje, bez dogotrajnog prikupljanja potrebne dokumentacije za izgradnju. Udaljenost do mora samo 15 minuta vožnje a do autoceste pet minuta vožnje. Postoji opcija dogovora za izgradnju kuće, do useljenja ( ključ u ruke).

Kontakt:
Nevio
0989842659

ID CODE: 269

Nevio Meden
Agent s licencom
Mob: 00385989842659
E-mail: nevio@medom-nekretnine.com
www.medom-nekretnine.com
Značajke
Ugovor
Prodaja
Vrsta
Građevinsko zemljište
Površina
500 m²
Informacije o cijeni
Cijena
€ 85.000
Cijena po m²
170 €/m²
Otkrijte svaki kutak nekretnine
+22
Dodatne mogućnosti

Obratite se oglašivaču

Ili