Građevinsko zemljište za Prodaja

€ 89.000
495 m²

Bilješka

Oglas ažuriran 15. 03. 2026.
Opis

referenca: 392

ZADAR, VRSI - Građevinsko zemljište s glavnim projektom i pogledom na more

ZADAR, VRSI - Građevinsko zemljište s glavnim projektom i pogledom na more

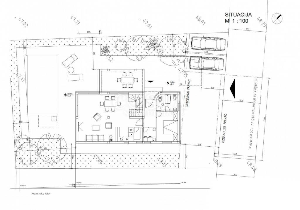
Prodaje se građevinsko zemljište s projektnom dokumentacijom za gradnju kuće s bazenom u mjestu Vrsi u okolici Zadra. Zemljište površine 495 m2 nalazi se u neizgrađenom dijelu građevinske zone. Pravilnog je oblika, dužine 29 m i širine 17 m. Ima pristupni put makadam širine 5 m koji ima pristup na asfaltiranu cestu udaljenu 270 m.

Prema glavnom projektu planirana je gradnja katnice bruto površine 188,35 m2. U prizemlju je dnevni boravak, kuhinja i blagovaona, spremište, kupaonica, dodatni wc i jedna spavaća soba, a na katu su dvije spavaće sobe, kupaonica i terasa. U dvorištu je planiran bazen, vrt i privatni parking. Podnesen je zahtjev za ishodovanje građevinske dozvole.

Objekt je smješten na izoliranoj lokaciji, s koje se pruža pogled na more već iz prizemlja. Udaljen je od mora i najbliže plaže Vrsi Mulo 1,5 km. Najbliža trgovina i ljekarna su udaljene 450 m. Vrsi su malo pomorsko mjesto u Zadarskoj županiji koje se odlikuju prekrasnim plažama i blizini sadržaja. Povijesni gradić Nin u kojem se nalazi najduža pješčana plaža pod nazivom Kraljičina plaža udaljen je 4 km. Urbano središte grad Zadar udaljen je 20 km, a najbliža zračna luka Zemunik udaljena je 31 km.

Poštovani klijenti, posrednička naknada naplaćuje se u skladu s Općim uvjetima poslovanja
https://costa-nekretnine.hr/o-nama/opci-uvjeti-poslovanja

ID CODE: 392

Sara Večeralo
Agent s licencom
Mob: +385 99 284 0404
Tel: +385 99 864 9125
E-mail: sara@costa-nekretnine.hr
www.costa-nekretnine.hr
Značajke
Ugovor
Prodaja
Vrsta
Građevinsko zemljište
Površina
495 m²
Informacije o cijeni
Cijena
€ 89.000
Cijena po m²
180 €/m²
Tlocrt
Otkrijte svaki kutak nekretnine
+3
Dodatne mogućnosti

Obratite se oglašivaču

Ili