Građevinsko zemljište za Prodaja

€ 130.000
863 m²

Bilješka

Oglas ažuriran 04. 05. 2026.
Opis

referenca: IS1520313

Građevinsko zemljište s projektom i građevinskom dozvolom za modernu kuću s bazenom Jurićev Kal

Jurićev Kal građevinsko zemljište s projektom i građevinskom dozvolom za elegantnu vilu s bazenom

U mirnom i ugodnom ambijentu Jurićevog Kala smješteno je građevinsko zemljište površine 863 m, s pripremljenom dokumentacijom za realizaciju moderne samostojeće vile s bazenom.

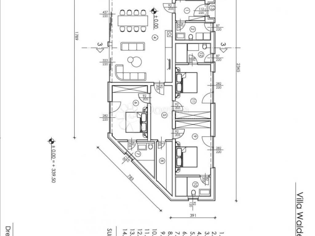
Projektirana kuća ukupne površine 168,13 m osmišljena je s naglaskom na funkcionalnost, privatnost i suvremeni stil života. Tlocrt obuhvaća ulazni prostor, gospodarsku prostoriju, strojarnicu / spremište, otvoreni dnevni dio s kuhinjom i blagovaonicom, hodnik, tri spavaće sobe, tri kupaonice, dodatno spremište i zimski vrt.

Ova nekretnina predstavlja odličnu priliku za kupce koji traže gotov koncept za izgradnju elegantne kuće za privatno korištenje, odmor ili turistički najam. Već pripremljena dokumentacija dodatna je prednost jer budućem vlasniku omogućuje jednostavniji nastavak realizacije projekta.

Ključne značajke:

Jurićev Kal

zemljište 863 m

projektirana kuća 168,13 m

samostojeća vila s bazenom

3 spavaće sobe

3 kupaonice

zimski vrt

projekt i građevinska dozvola!

Odlična prilika za kupce koji traže manju luksuznu kuću s bazenom na mirnoj lokaciji, uz već pripremljenu dokumentaciju i jasan koncept buduće gradnje.

Za sve upite stojim na raspolaganju!

Paula Bizjak,
asistent u posredovanju
097-601 8779
paula.bizjak@dogma-nekretnine.com

ID KOD AGENCIJE: IS1520313

Paula Bizjak
Asistent u posredovanju
Mob: 097/601-8779
Tel: 052 770 811
E-mail: paula.bizjak@dogma-nekretnine.com
www.dogma-istra.com
Ako želite znati više, možete razgovarati s Paula Bizjak.
Značajke
Ugovor
Prodaja
Vrsta
Građevinsko zemljište
Površina
863 m²
Informacije o cijeni
Cijena
€ 130.000
Cijena po m²
151 €/m²
Otkrijte svaki kutak nekretnine
+3
Dodatne mogućnosti

Obratite se oglašivaču

Ili