Skladište za Prodaja

€ 190.000
914 m²
3+
S

Bilješka

Oglas ažuriran 15. 04. 2026.
Opis

referenca: 474

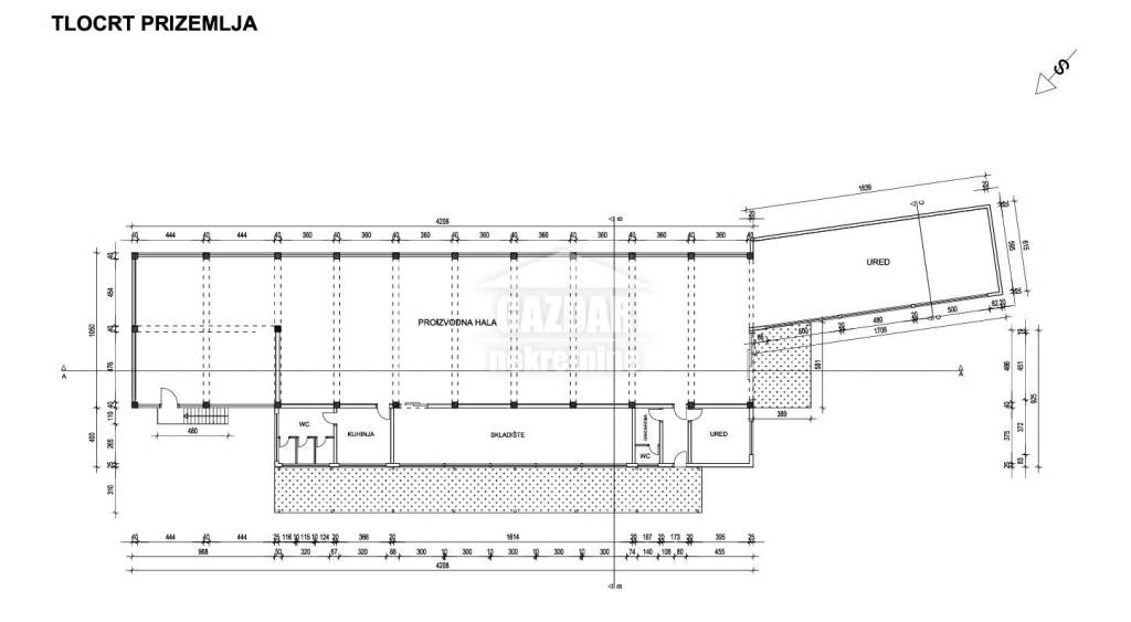
HRVATSKA KOSTAJNICA - PROIZVODNA HALA 914m2 na 7153m2

HRVATSKA KOSTAJNICA
Proizvodna hala 914 BRP s kompletnom linijom za PVC i ALU stolariju sa lakirnicom

Objekt se nalazi u neposrednoj blizini željezničke pruge – mogućnost transporta robe vlakom, što predstavlja značajnu logističku prednost.


Osnovne informacije:
- Ukupna bruto površina (BRP): 914 m² - (TLOCRTNO 814m2)
- Parcela uz halu: 1.503 m²
- Dodatna parcela: 5.650 m² u privatnom vlasništvu (uz halu)
- Vlasništvo: u vlasništvu d.o.o.-a
- Katnost: prizemlje + suteren
- Sva dokumentacija uredna


Oprema i sadržaj:
- Kompletna linija za proizvodnju PVC i ALU stolarije
- Lakirnica
- Organiziran proizvodni i skladišni prostor
- Spremno za nastavak poslovanja


Prednosti lokacije:
- Područje posebne državne skrbi
- Mogućnost prijave na natječaje za bespovratna sredstva (proizvodnja i infrastruktura)
- Neposredna blizina željezničke pruge – povoljan teretni transport
- Velika ukupna površina zemljišta – mogućnost proširenja kapaciteta


Idealna prilika za proizvodne tvrtke, investitore ili proširenje postojećeg poslovanja.
Za dodatne informacije i dogovor oko razgledavanja, slobodno se javite.

ID CODE: 474

Gazdar nekretnine
Mob: +385 99 4637 284
E-mail: info@gazdar.hr
www.gazdar.hr
Značajke
Ugovor
Prodaja
Vrsta
Skladište
Površina
914 m²
Prostorije
3+ kupaonica
Kat
Suteren, s pristupom za osobe s invaliditetom
Garažno mjesto, parkirna mjesta
20 na zajedničkom parkingu
Raspoloživost
Slobodno
Ostale karakteristike
  • Ograđeno
  • Pristupni put
Detalji površine

Radionica

Kat
Suteren
Površina
914,0 m²
Koeficijent
100%
Vrsta površine
Glavni
Komercijalna površina
914,0 m²
Informacije o cijeni
Cijena
€ 190.000
Cijena po m²
208 €/m²
Tlocrt
Otkrijte svaki kutak nekretnine
+12
Dodatne mogućnosti

Obratite se oglašivaču

Ili