Građevinsko zemljište za Prodaja

€ 410.000
965 m²

Bilješka

Oglas ažuriran 18. 04. 2026.
Opis

referenca: 1614

Vrbnik, zemljište s građevinskom dozvolom

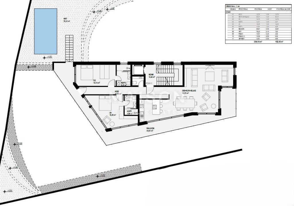
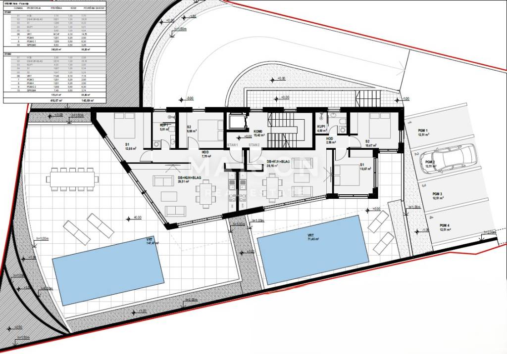
Na otoku Krku, u Vrbniku, u ponudi je građevinsko zemljište s pravomoćnom građevinskom dozvolom za izgradnju moderne stambene zgrade s garažom i četiri stana. Projekt ukupne bruto površine 622,92 m² osmišljen je s naglaskom na funkcionalnost i suvremeni stil stanovanja. U podrumu je predviđena garaža s četiri parkirna mjesta te četiri spremišta, dok lift povezuje sve etaže objekta i osigurava visoku razinu komfora budućim stanarima.

U prizemlju su planirana dva stana, dok je na prvom katu predviđen stan s pripadajućom okućnicom i bazenima, što pruža dodatnu dozu privatnosti i luksuza. Na drugom katu nalazi se stan s prostranom terasom, idealnom za uživanje u otvorenom pogledu i mediteranskom ambijentu. Zemljište je smješteno na mirnoj lokaciji s koje se pruža panoramski pogled na more, što ovu nekretninu čini izvrsnom prilikom za investiciju ili razvoj atraktivnog stambenog projekta.

Kontaktirajte nas za više informacija ili organizaciju ogleda.

ID CODE: 1614

Barbara Popović
Agent s licencom
Mob: +385 91 925 9816
Tel: +385 51 640 777
E-mail: barbara@maison-nekretnine.com
www.maison-nekretnine.com

Nika Galović
Agent s licencom
Mob: +385 98 191 9398
Tel: +385 51 640 777
E-mail: nika@maison-nekretnine.com
www.maison-nekretnine.com

Dario Oriović
CEO
Mob: +385 91 474 0205
Tel: +385 51 640 777
E-mail: dario@maison-nekretnine.com
www.maison-nekretnine.com
Značajke
Ugovor
Prodaja
Vrsta
Građevinsko zemljište
Površina
965 m²
Informacije o cijeni
Cijena
€ 410.000
Cijena po m²
425 €/m²
Tlocrt
Otkrijte svaki kutak nekretnine
+3
Dodatne mogućnosti

Obratite se oglašivaču

Ili