Građevinsko zemljište za Prodaja

€ 380.000
1.284 m²

Bilješka

Oglas ažuriran 20. 03. 2026.
Opis

referenca: 5841

Građevinsko zemljište s dozvolom - Ražanac, Rtina

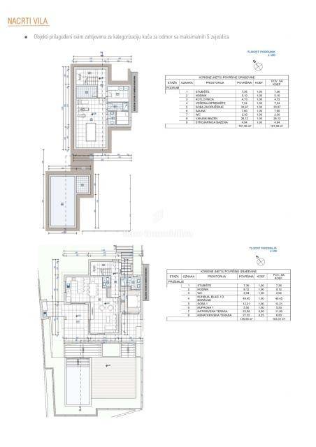
Prodaje se građevinsko zemljište s pogledom na more na atraktivnoj lokaciji u općini Ražanac u mjestu Rtina. Napravljen je razvojni projekt s dozvolom za dvije ville za odmor s bazenima i dodatnim sadržajem. Obje ville se protežu na podrum, prizemlje i kat i imaju 3-4 parkirna mjesta. Predviđena je konstrukcijska gradnja - ISOSPAN blokovima. Postoji mogućnost dogovora s prodavateljem za izvođenje kompletnog projekta, kao i opremanje nekretnina.

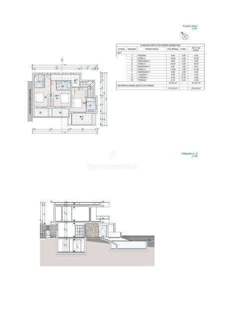
VILA B - brutto površine 275 m2 - četiri spavaće sobe s vlastitim kupaonicama, open-space dnevni boravak s kuhinjom s izlazom na bazen, dva toaleta, spremište, bazen, sunčalište sa saunom, fitness i roštilj.

VILA C - brutto površine 290 m2 - četiri spavaće sobe s vlastitim kupaonicama, open-space dnevni boravak s kuhinjom s izlazom na bazen, dva toaleta, spremište, bazen, sunčalište sa saunom, fitness i roštilj.

Mirna i tiha lokacija, svi potrebni sadržaji su u blizini. Plaža je udaljena 250 m šetnje.

Provizija agencije za kupca iznosi 3% + PDV i plaća se u slučaju kupovine nekretnine kod zaključenja kupoprodajnog Ugovora.

ID CODE: 5841

Euro Immobilien d.o.o.
Mob: 00385 (0)99 444 0500
Tel: +385 51 220 024
E-mail: info@euro-immobilien.hr
www.euro-immobilien.hr
Značajke
Ugovor
Prodaja
Vrsta
Građevinsko zemljište
Površina
1.284 m²
Informacije o cijeni
Cijena
€ 380.000
Cijena po m²
296 €/m²
Tlocrt
Otkrijte svaki kutak nekretnine
+6
Dodatne mogućnosti

Obratite se oglašivaču

Ili