Građevinsko zemljište za Prodaja

€ 145.000
759 m²

Bilješka

Oglas ažuriran 26. 03. 2026.
Opis

referenca: ID06168

Pula okolica, parcela s građ. dozvolom + plaćeni doprinosi

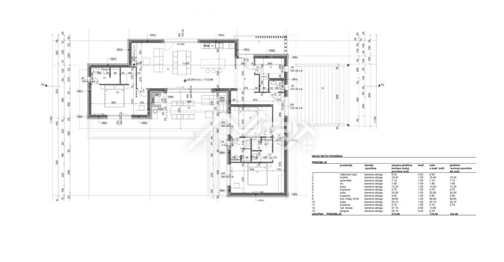
U mirnijem dijelu naselja Galižana, u široj okolici Pule, prodaje se građevinska parcela površine 759 m², pravilnog i vrlo iskoristivog oblika. Posebna prednost je ishođena građevinska dozvola za gradnju prizemnice neto površine 143 m², pomoćne građevine od 11 m² te bazena od 20 m², što značajno skraćuje vrijeme do početka gradnje i olakšava realizaciju projekta. Komunalni doprinosi su plaćeni, a priključci za struju i vodu nalaze se u neposrednoj blizini parcele, pa kupac dobiva spremnu i jasnu polaznu točku za brzu izgradnju.
Kuća je projektirana kao moderan prizemni objekt L-tlocrta, s jasno odvojenim dnevnim i noćnim dijelom. Središnji dio čini prostrani open-space dnevni prostor koji objedinjuje kuhinju, blagovaonicu i dnevni boravak, s izlazom na natkrivenu terasu koja prirodno povezuje interijer s vanjskim dijelom i podiže funkcionalnost prostora. U lijevom krilu smještena je jedna spavaća soba s pripadajućom kupaonicom, idealna kao gostinjska soba ili zaseban privatni kutak. Desno krilo čini noćna zona s dvije spavaće sobe, svaka sa svojom kupaonicom, uz dodatni odvojeni WC i spremište. Ulaz u kuću vodi u hodnik koji logično i praktično povezuje sve prostorije.
Lokacija je praktična i tražena jer spaja mirniji rezidencijalni ugođaj s odličnom povezanošću: Pula, Fažana i okolne plaže dostupne su u kratkom vremenu, kao i glavne prometnice i sadržaji za svakodnevni život. Ova nekretnina odličan je izbor za obiteljsku kuću s bazenom ili kao investicija za kvalitetan turistički najam u južnoj Istri.

ID CODE: ID06168

Ivana Mohorović
Suradnik u procesu obuke
Mob: +385 95 370 44 46
Tel: +385 52 417 779
E-mail: ivana@matrixrealestate.hr
https://matrixrealestate.hr/

Matrix Real Estate
Voditelj ureda
Mob: +385 52 417 779
Tel: +385 52 417 779
E-mail: info@matrixrealestate.hr
https://matrixrealestate.hr/
Značajke
Ugovor
Prodaja
Vrsta
Građevinsko zemljište
Površina
759 m²
Informacije o cijeni
Cijena
€ 145.000
Cijena po m²
191 €/m²
Tlocrt
Otkrijte svaki kutak nekretnine
+15
Dodatne mogućnosti

Obratite se oglašivaču

Ili