Trosobni stan novo, prvi kat, Mušalež - Varvari, Poreč

€ 590.000
3
157 m²
3+
1
Podrum

Bilješka

Oglas ažuriran 30. 03. 2026.
Opis

referenca: 1396

Istra, Poreč okolica

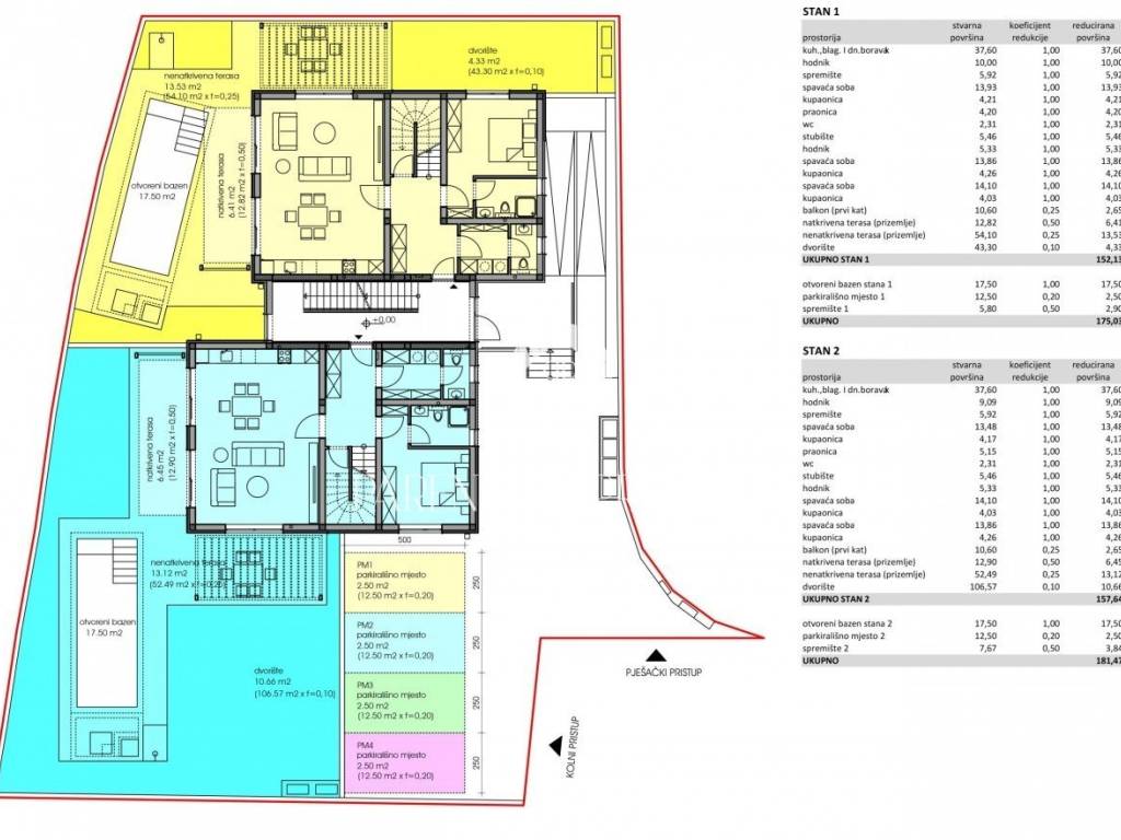
U okolici grada Poreča nedaleko od uređenih plaža u manjem turističkom mjestu smjestio se ovaj luksuzni stan na dvije etaže ukupne površine od 157,64m2 sa bazenom u dvorištu.
STAN 2 (TLOCRT PLAVE BOJE)
Stan se proteže se na dvije etaže: prizemlje i prvi kat.
U prizemlju su smješteni hodnik, prostrani dnevni boravak s kuhinjom i blagovaonicom otvorenog tipa, jedna spavaća soba, kupaonica i WC.
Iz dnevnog boravka direktno se izlazi na lijepu natkrivenu terasu površine 12,90 m2 i na nenatkrivenu terasu od 53 m2 te bazen u dvorištu površine 17,50 m2.
Prvom katu pristupa se unutrašnjim stepenicama.
Tamo su smještene još dvije spavaće sobe, svaka s vlastitom kupaonicom i izlaskom na balkon površine 10,60 m2 sa kojeg se pruža pogled na more i grad Poreč te otok Sv. Nikola.
Stanu također pripadaju parkirno mjesto i spremište u podrumu.
Stambena zgrada opskrbljena je svom komunalnom infrastrukturom (cestom, gradskom kanalizacijom, električnom strujom i vodovodom).
Kupac je oslobođen plaćanja poreza na promet nekretninama.
Zgrada je smještena u mirnom naselju u blizini svih važnih sadržaja (ugostiteljskih objekata, ljekarne, pekarnice, trgovine i sl.), a okružena je prirodom i zelenilom te je idealna prilika za sve one koji traže atraktivnu nekretninu u blizini mora pogodnu za stanovanje, odmor i iznajmljivanje u turističke svrhe.

Razgled nekretnine moguć je uz potpisan ugovor o posredovanju koji je temelj za daljnje postupanje u vezi s kupoprodajom i naplatom provizije sukladno Zakonu o posredovanju u prometu nekretnina. U slučaju kupoprodaje agencijska provizija iznosi 3% + PDV i naplaćuje se prilikom sklapanja predugovora/ugovora o kupoprodaji.
Ako želite znati više, možete razgovarati s Manuela Udovičić.
Značajke
Vrsta
Stan
Ugovor
Prodaja
Kat
1
Katovi zgrade
2
Površina
157 m² | poslovni prostor 316 m²
Prostorije
3
Spavaće sobe
3
Kupaonice
3+
Namješteno
Ne
Garažno mjesto, parkirna mjesta
1 na zajedničkom parkingu
Grijanje
Centralno, podno grijanje, napajanje električnom energijom
Klimatizacija
Hlađenje/grijanje
Ostale karakteristike
  • Bazen
Detalji površine

Stambeni prostor

Kat
1
Površina
157,0 m²
Koeficijent
100%
Vrsta površine
Glavni
Komercijalna površina
157,0 m²

Zemljište

Kat
Prizemlje
Površina
159,0 m²
Koeficijent
100%
Vrsta površine
Dodatno
Komercijalna površina
159,0 m²
Informacije o cijeni
Cijena
€ 590.000
Cijena po m²
1.867 €/m²
Energetska učinkovitost
  • Godina izgradnje

    2024
  • Stanje

    Novo / U izgradnji
  • Grijanje

    Centralno, podno grijanje, napajanje električnom energijom
  • Klima uređaj

    Hlađenje/grijanje
Otkrijte svaki kutak nekretnine
+8
Dodatne mogućnosti

Obratite se oglašivaču

Ili