Građevinsko zemljište za Prodaja

€ 450.000
587 m²

Bilješka

Oglas ažuriran 03. 04. 2026.
Opis

referenca: EUROVILLA-821015

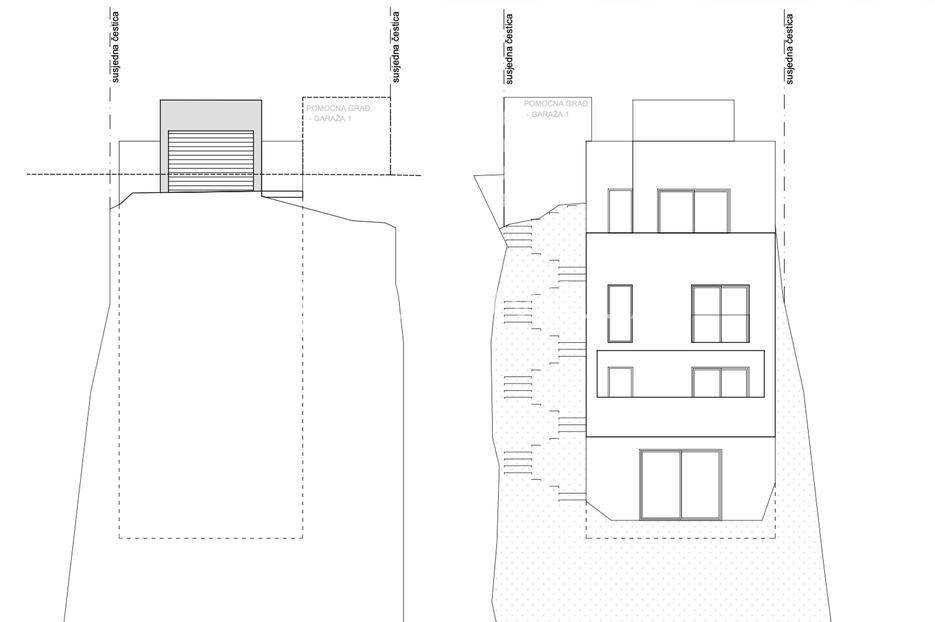
Zagreb, Vinogradska cesta, građevinsko zemljište 587 m² s idejnim projektom

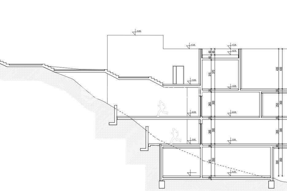
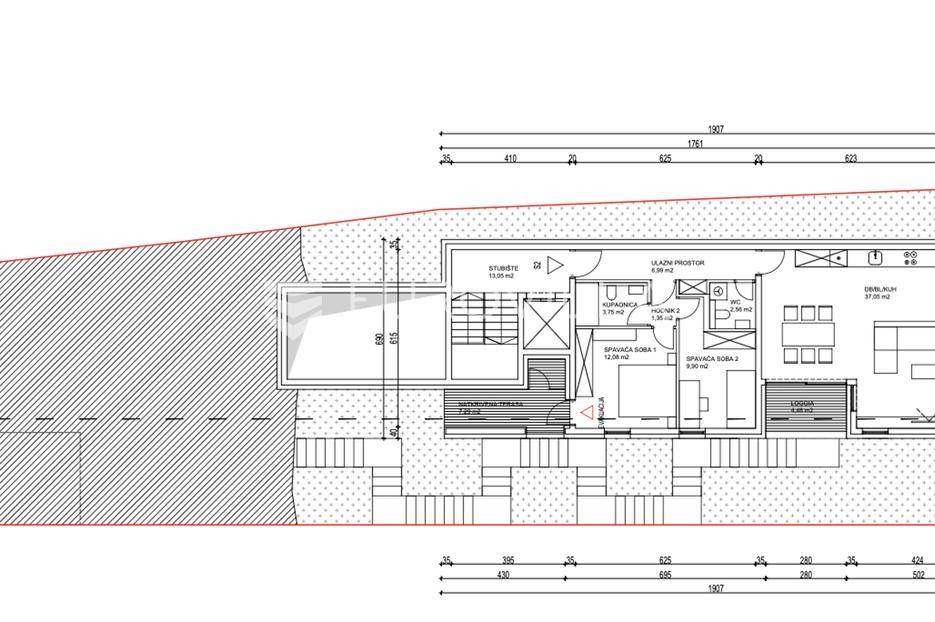
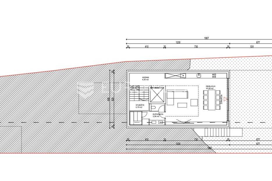
Zagreb - Vinogradska cesta, građevinsko zemljište 587 m2 s idejnim projektom i lokacijskom dozvolom u ishođenju.Ukupna površina zemljišta je 587 m2, građevinski dio zemljišta 431 m2, zelena površina 151 m2 na istočnoj strani.Koeficijent izgrađenosti: 0,39Koeficijent iskoristivosti: 1,0Građevinska bruto površina: 430,88 m2Planirana katnost: Po + S + P + UkIdejni projekt za izgradnju stambene zgrade sa 3 stambene jedinice. Ulaz u stambenu zgradu zbog konfiguracije terena nalazi se na najvišoj etaži – uvučenom katu te se unutarnjim stubištem pristupa u sve etaže.Planirana stambena zgrada sastoji se od:- tri nadzemne etaže: Na uvučenom katu nalazi se stan S1 (84,87 m2), u prizemlju se nalazi stambena jedinica S2 (107,24 m2), a u suterenu i podrumskoj etaži nalazi se dvetažna jedinica S3 (220,03 m2).- pomoćne građevine (garaže): 18,74 mParcela je po parametrima maksimalno iskorištena, geometrijski i matematički, što omogućuje investitoru najveću iskoristivost površine.Sve dodatne informacije i dokumentacija dostupni su na upit.... Više na eurovilla.hr, ID: 821015
Ako želite znati više, možete razgovarati s Tin Gregurić.
Značajke
Ugovor
Prodaja
Vrsta
Građevinsko zemljište
Površina
587 m²
Informacije o cijeni
Cijena
€ 450.000
Cijena po m²
767 €/m²
Otkrijte svaki kutak nekretnine
+10
Dodatne mogućnosti

Obratite se oglašivaču

Ili