Dvosobni stan novo, prizemlje, Primošten

€ 280.000
2
69 m²
1
PR
Da

Bilješka

Oglas ažuriran 29. 04. 2026.
Opis

referenca: I35354

U mjestu Primošten u izgradnji je moderna stambena zgrada koja spaja suvremeni dizajn s visokom kvalitetom izvedbe.
Zgrada se sastoji od ukupno 14 stambenih jedinica raspoređenih na prizemlje i 3 kata.

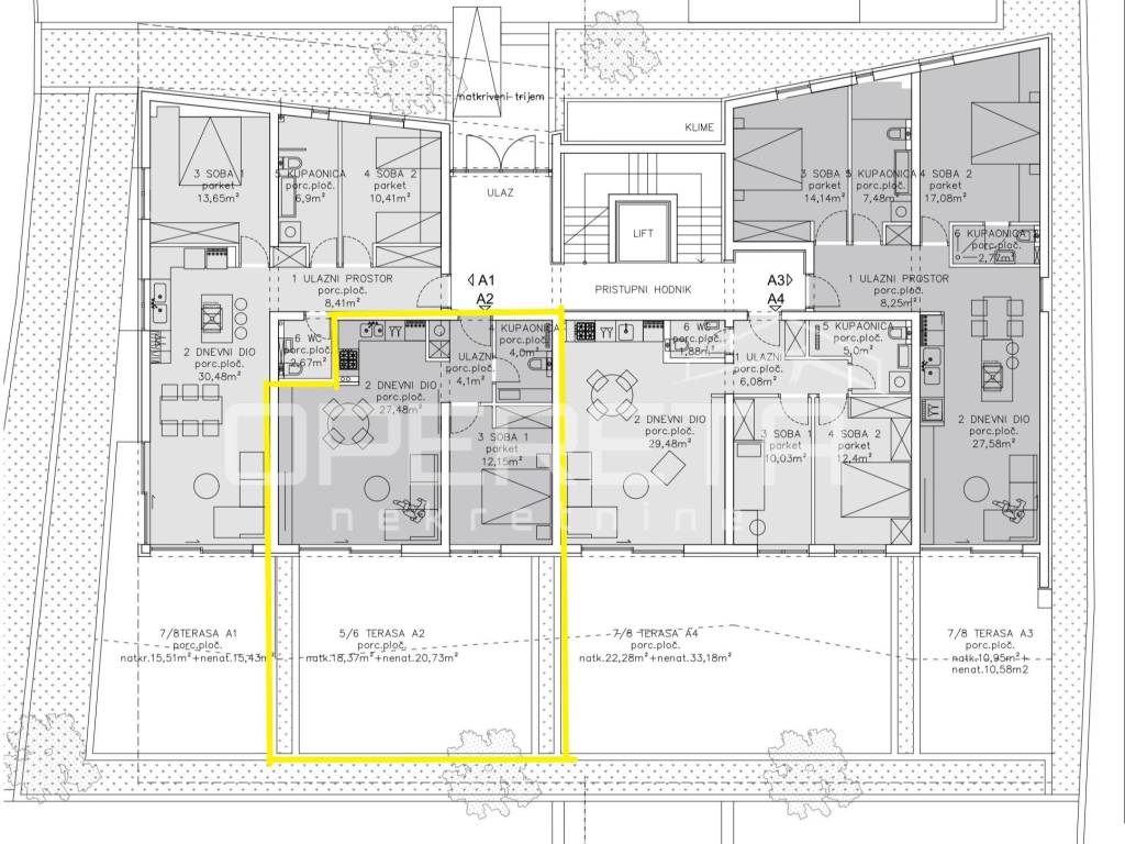
Stan A2 nalazi se u prizemlju i sastoji se od ulaznog prostora, spavaće sobe, kupaonice te "open space" dnevnog boravka, kuhinje i blagovaonice.

Poseban naglasak stavljen je na vanjski prostor, pa stanu pripada natkrivena terasa površine 18 m te dodatna nenatkrivena terasa od 20 m. Uz stan dolazi i vlastito parkirno mjesto u garaži zgrade te praktično spremište površine 4 m.

Beskompromisnu kvalitetu gradnje prati i vrhunska oprema, od ALU stolarije s električnim podizačima roleta i komarnicima do podnog grijanja u kupaonicama opremljenih kvalitetnim sanitarijama i premium keramikom.

Grijanje i hlađenje svih prostorija riješeno je sa Samsung multi-split inverter klima sustavom s unutarnjim jedinicama integriranim u spušteni strop za diskretan dizajn.

Estetski dojam upotpunjuju staklene ograde na terasama, moderna LED rasvjeta i protuprovalna i protupožarna vrata.

Dovršetak radova i useljenje u planirani su za 15. srpnja 2026. godine.

Objekt je smješten na izvrsnoj lokaciji, na manje od kilometar udaljenosti od starog dijela Primoštena i čuvenih plaža koje ovo mjesto čine jednom od najpoželjnijih jadranskih destinacija.

Dostupna su samo 3 stana u prizemlju.

Značajke
Vrsta
Stan
Ugovor
Prodaja
Kat
Prizemlje
Dizalo
Da
Površina
69 m²
Prostorije
2
Spavaće sobe
1
Kupaonice
1
Namješteno
Ne
Garažno mjesto, parkirna mjesta
1 na zajedničkom parkingu
Grijanje
Samostalno, napajanje električnom energijom
Klimatizacija
Hlađenje/grijanje
Informacije o cijeni
Cijena
€ 280.000
Cijena po m²
4.058 €/m²
Energetska učinkovitost
  • Godina izgradnje

    2026
  • Stanje

    Novo / U izgradnji
  • Grijanje

    Samostalno, napajanje električnom energijom
  • Klima uređaj

    Hlađenje/grijanje
Otkrijte svaki kutak nekretnine
+10
Dodatne mogućnosti

Obratite se oglašivaču

Ili