Trosobni stan Jezera, Tisno, Tisno

€ 230.650
3
65 m²
1
PR
Ne
Terasa

Bilješka

Oglas ažuriran 28. 04. 2026.
Opis

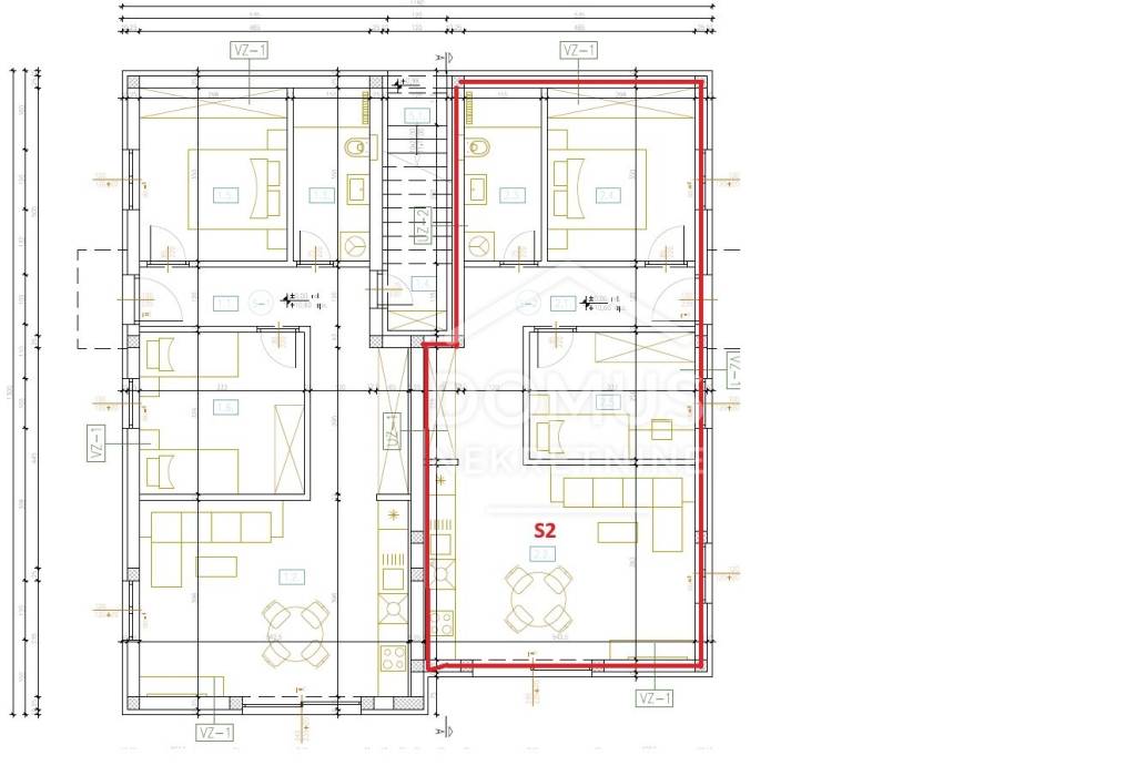
referenca: 7340-Z2-S2

Jezera, novogradnja, dvosobni apartman od 65,90 m² s vrtom

Jezera, mirna lokacija, novogradnja – u manjoj stambenoj zgradi s ukupno 4 stambene jedinice, na 2 etaže: prizemlje + 1. kat.
Zgrada je modernog izgleda, s podnim grijanjem u kupaonicama i dnevnim boravcima, klimatizirana u svim prostorijama, s električnim podizačima roleta i visokokvalitetnom keramikom.

Stambena jedinica S2 je dvosobni apartman koji se nalazi u prizemlju i ima 65,90 m² korisne površine te vlastiti, zaseban ulaz. Apartman se sastoji od hodnika, kupaonice, 2 spavaće sobe, dnevnog boravka s kuhinjom te izlazom na prostranu terasu i vrt od 70 m².

Apartmanu pripada jedno parkirno mjesto. Zgrada se nalazi samo 500 m od mora, kao i od centra i svih bitnijih sadržaja.

Predviđeni termin useljenja je proljeće 2027. godine.

ID CODE: 7340-Z2-S2

Katarina Marasović
Mob: 00 385 98 392 954
Tel: +385 22 444 620
E-mail: catherine@domus-nekretnine.hr
http://domus-nekretnine.hr

Diana Knežević
Mob: 00 385 95 289 4518
Tel: +385 22 444 620
E-mail: knezevic@domus-nekretnine.hr
http://domus-nekretnine.hr

Martina Silov
Mob: 00385 95 587 8860
Tel: +385 22 444 620
E-mail: martina@domus-nekretnine.hr
http://domus-nekretnine.hr
Značajke
Vrsta
Stan
Ugovor
Prodaja
Kat
Prizemlje
Dizalo
Ne
Površina
65 m²
Prostorije
3
Spavaće sobe
2
Kupaonice
1
Balkon
Ne
Terasa
Da
Garažno mjesto, parkirna mjesta
1 na zajedničkom parkingu
Grijanje
Samostalno, zrak
Ostale karakteristike
  • Protuprovalna vrata
Informacije o cijeni
Cijena
€ 230.650
Cijena po m²
3.548 €/m²
Energetska učinkovitost
  • Grijanje

    Samostalno, zrak
  • Energetski certifikat

    Neklasificirano
Tlocrt
Otkrijte svaki kutak nekretnine
+8
Dodatne mogućnosti

Obratite se oglašivaču

Ili