Trosobni stan novo, prvi kat, Vodice

€ 346.536
3
96 m²
2
1
Terasa

Bilješka

Oglas ažuriran 25. 04. 2026.
Opis

referenca: 47242

ŠIBENIK, VODICE 500 m od mora, 2 parkirna mjesta, terasa, pogled

ŠIBENIK, VODICE 500 m od mora, 2 parkirna mjesta, terasa

Stanovi s 2 parkirna mjesta na ovoj udaljenosti od mora u Vodicama pojavljuju se rijetko posebno u novijoj gradnji i u ovakvom okruženju.

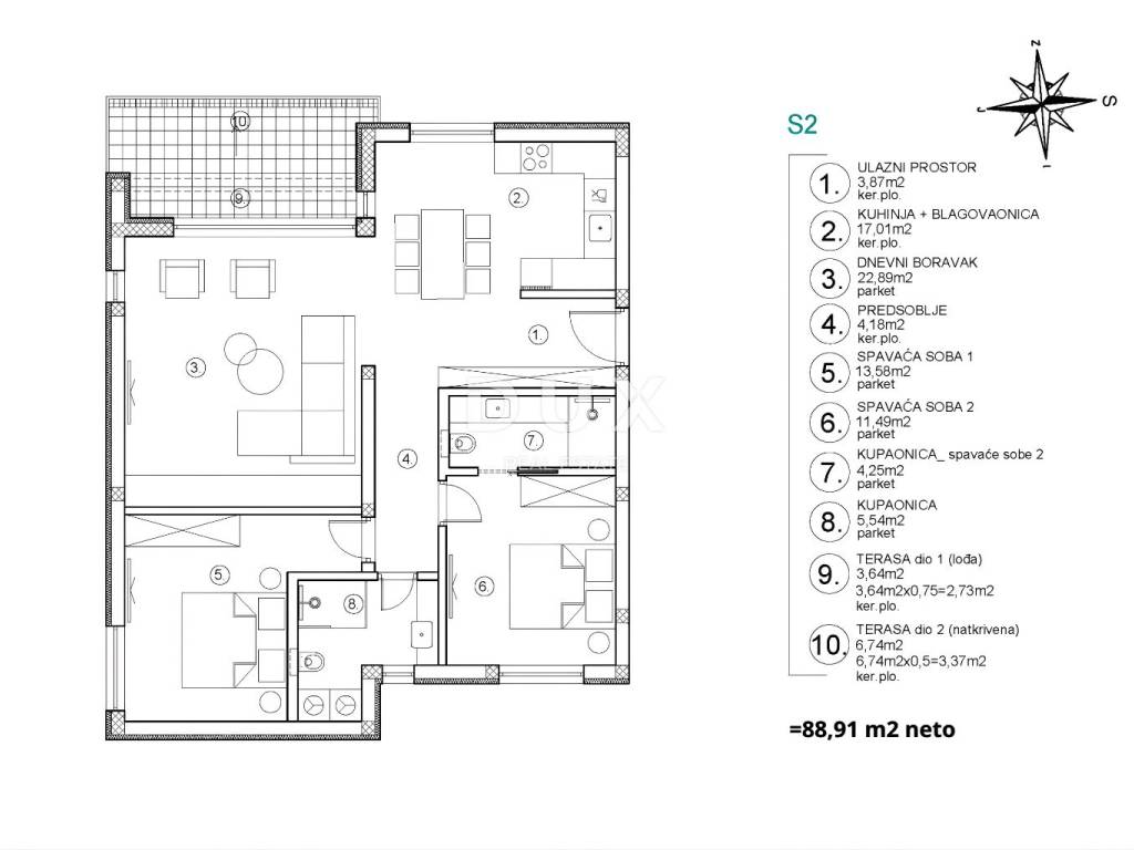
Stan S2 nalazi se na 1. katu manje stambene zgrade s ukupno 5 stanova, ima 82,81 m unutarnje stambene površine (96,26 m obračunske površine). Južna orijentacija osigurava cjelodnevnu osvijetljenost i ugodan boravak tijekom svih godišnjih doba.

Pri ulazu u stan dolazi se u dnevni prostor otvorenog koncepta s kuhinjom i blagovaonicom, koji se nastavlja na natkrivenu terasu površine 10,38 m. U ostatku stana do kojeg vodi hodnik, nalaze se 2 spavaće sobe, od kojih master soba s vlastitom kupaonicom en suite, te dodatna kupaonica.

Ovakav raspored s jasno odvojenom dnevnom i spavaćom zonom posebno je tražen kod kupaca koji traže kombinaciju osobnog korištenja i turističkog najma.

Stanu pripadaju 2 vanjska parkirna mjesta te spremište u prizemlju građevine.

RASPORED
Sastoji se od:
open space dnevnog boravka s kuhinjom i blagovaonicom
natkrivene terase (10,38 m)
2 spavaće sobe (master spavaća soba s vlastitom kupaonicom)
2 kupaonice (jedna en suite)
ulaznog hodnika
spremišta u prizemlju građevine
2 vanjska parkirna mjesta

Oprema i kvaliteta:
Stan je građen s fokusom na dugoročnu udobnost i energetsku učinkovitost:
podno grijanje u dnevnom dijelu i kupaonicama ugodan boravak tijekom cijele godine
klima uređaji u svim prostorijama potpuna kontrola temperature
PVC stolarija (Gealan) s troslojnim staklom mir, izolacija i niži troškovi
električne rolete i komarnici dodatni komfor
klizne stijene više svjetla i bolja povezanost s terasom
priprema za ljetnu kuhinju i tuš u dvorištu (struja, voda, odvod)

Kombinacija ovih karakteristika znači manju potrebu za dodatnim ulaganjima i veću spremnost stana za useljenje ili iznajmljivanje.

LOKACIJA
Blizina mora i noviji dio Vodica stvaraju balans između opuštenog života i dostupnosti svih sadržaja. Lokacija omogućuje brzu povezanost s centrom, dok zadržava mir izvan glavnih turističkih tokova. Ovaj dio Vodica posebno je tražen zbog kombinacije blizine mora i mirnijeg okruženja, bez intenzivnog turističkog prometa.
UDALJENOSTI:
more: 500 m
centar: cca 1 km (15 min hoda)
trgovina: 900 m
škola / vrtić: 1,2 km
Mikrolokacija okružena novijim objektima dodatno osigurava ujednačen standard i uredno okruženje.

ZA KOGA JE NEKRETNINA IDEALNA
kupce koji žele stan blizu mora bez kompromisa po pitanju parkinga
obitelji koje traže funkcionalan raspored s 2 kupaonice
investitore koji traže sigurnu nekretninu za turistički najam

Stanovi ove konfiguracije (novogradnja + 2 parkirna mjesta + blizina mora) u ovom dijelu Vodica izlaze s tržišta brzo upravo zbog ograničene ponude.

Javite se za više informacija i razgledavanje ovakve nekretnine na ovoj lokaciji rijetko ostaju dugo dostupne.

Poštovani klijenti, agencijska provizija naplaćuje se u skladu s Općim uvjetima poslovanja:
www.dux-nekretnine.hr/opci-uvjeti-poslovanja

ID KOD AGENCIJE: 47242

Ivan Bego
Agent pripravnik
Mob: +385 91 312 1121
Tel: +385 91 480 8808
E-mail: ivan@dux-dalmacija.com
www.dux-nekretnine.hr
Ako želite znati više, možete razgovarati s Ivan Bego.
Značajke
Vrsta
Stan
Ugovor
Prodaja
Kat
1 kat
Površina
96 m²
Prostorije
3
Spavaće sobe
2
Kupaonice
2
Balkon
Ne
Terasa
Da
Garažno mjesto, parkirna mjesta
1 u garaži
Klimatizacija
Samostalno, hlađenje/grijanje
Informacije o cijeni
Cijena
€ 346.536
Cijena po m²
3.610 €/m²
Energetska učinkovitost
  • Godina izgradnje

    2026
  • Stanje

    Novo / U izgradnji
  • Klima uređaj

    Samostalno, hlađenje/grijanje
  • Energetski certifikat

    Oslobođeno
Otkrijte svaki kutak nekretnine
+13
Dodatne mogućnosti

Obratite se oglašivaču

Ili