Trosobni stan Banjol, Rab, Rab

€ 239.000
3
65 m²
PR
Ne

Bilješka

Oglas ažuriran 27. 04. 2026.
Opis

referenca: 3080

Otok Rab, Banjol, stan u novogradnji

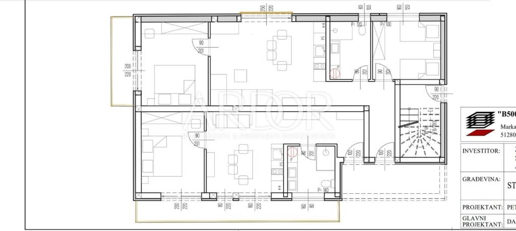
Na prodaju je moderan stan u novogradnji smješten u mirnom dijelu naselja Banjol na otoku Rabu. Stan ima ukupnu površinu od 65 m² i sastoji se od dvije spavaće sobe, dnevnog boravka s kuhinjom i blagovaonicom, kupaonice te balkona s prekrasnim pogledom na stari grad Rab.
Nekretnina se nalazi na atraktivnoj lokaciji, svega 400 metara od mora i starog grada, što omogućuje brz i lagan pristup plažama, restoranima, trgovinama i svim potrebnim sadržajima. Zahvaljujući svojoj poziciji i kvalitetnoj novogradnji, stan je idealan kako za ugodan život, tako i kao investicija za turistički najam.

Poštovani kupci, u skladu sa Zakonom o posredovanju u prometu nekretnina, razgledavanje nekretnine moguće je isključivo uz potpis Ugovora o posredovanju. Kupac je u slučaju realizacije kupnje obvezan platiti agencijsku proviziju.

ID CODE: 3080

Sendi Vinski
Agent s licencom
Mob: 0038598443289
Tel: 0038551222673
E-mail: prodaja@ardor-realestate.com
www.ardor-realestate.com
Značajke
Vrsta
Stan
Ugovor
Prodaja
Kat
Prizemlje
Katovi zgrade
1
Dizalo
Ne
Površina
65 m²
Prostorije
3
Spavaće sobe
2
Balkon
Ne
Terasa
Ne
Grijanje
Samostalno, zrak
Klimatizacija
Samostalno, hlađenje/grijanje
Informacije o cijeni
Cijena
€ 239.000
Cijena po m²
3.677 €/m²
Energetska učinkovitost
  • Grijanje

    Samostalno, zrak
  • Klima uređaj

    Samostalno, hlađenje/grijanje
  • Energetski certifikat

    Neklasificirano
Tlocrt
Otkrijte svaki kutak nekretnine
+12
Dodatne mogućnosti

Obratite se oglašivaču

Ili