Obiteljska kuća Šilo, Dobrinj, Dobrinj

€ 1.499.000
5
232 m²
3+
Ne
Balkon
Terasa

Bilješka

Oglas ažuriran 29. 04. 2026.
Opis

referenca: 103654

Šilo, nova prostrana luksuzna vila s okućnicom blizu mora!

U ponudi naše agencije na Kvarneru nalazi se iznimno vrijedna i kvalitetno građena kuća za odmor, smještena na poznatom i atraktivnom jadranskom turističkom području , otoku Krku, u mjestu Šilo. Ova elegantna nekretnina predstavlja odličan izbor za turistički najam, luksuzan odmor ili ugodan cjelogodišnji boravak uz more.

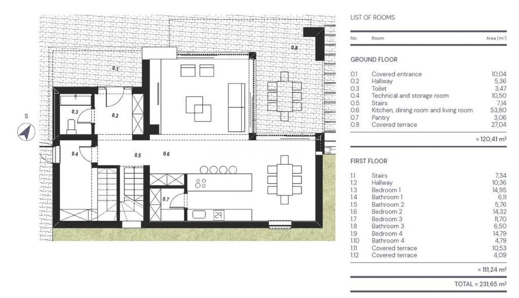
Kuća se prostire na dvije etaže ukupne stambene površine 232 m², na parceli površine 820 m2, a osmišljena je i izvedena prema visokim standardima udobnosti, kvalitete i suvremenog stanovanja. Unutrašnjost nekretnine obuhvaća prostrani otvoreni dnevni boravak povezan s kuhinjom i blagovaonicom, četiri komforne spavaće sobe, četiri moderno uređene kupaonice, dodatni toalet, terasu te dva balkona. Raspored prostorija pažljivo je planiran kako bi se postigla maksimalna funkcionalnost i ugodan osjećaj prozračnosti.

Posebna vrijednost ove nekretnine ogleda se u njezinu premium standardu izvedbe, budući da je projektirana i realizirana prema standardima vila s pet zvjezdica. Kuća se prodaje potpuno namještena dizajnerskim namještajem, a opremljena je i svim potrebnim uređajima te kompletnim inventarom, uključujući posteljinu, ručnike, posuđe i pribor, što budućem vlasniku omogućuje trenutno useljenje ili nastavak turističkog najma bez dodatnih ulaganja. Za cjelogodišnji komfor dodatno su ugrađeni podno grijanje i moderan HVAC sustav.

Okućnica ove luksuzne kuće pažljivo je uređena i osmišljena kao privatna oaza za odmor i uživanje. U središtu vanjskog prostora nalazi se bazen sa sunčalištem, uz prostor predviđen za roštilj i opuštanje na otvorenom. Poseban ugođaj cijelom ambijentu daje impresivno hortikulturno uređenje, koje uključuje čak 24 masline stare oko 150 godina, više od 700 pažljivo odabranih biljaka te profesionalno uređene mediteranske vrtove. Na okućnici su osigurana i parkirna mjesta za dva automobila.

Osim vrhunske lokacije i atraktivnog vanjskog prostora, ovu nekretninu dodatno izdvaja i vrlo lijep otvoreni pogled na more, koji savršeno upotpunjuje mediteranski karakter cijelog imanja.

Velika pažnja posvećena je i samoj kvaliteti gradnje, pri čemu su korišteni vrhunski materijali i oprema. Gradnja je izvedena od strane iskusnih stručnjaka uz stalni stručni nadzor, dok je u svim fazama realizacije posebna pažnja usmjerena na detalje, završnu obradu i dugoročnu kvalitetu.

Nekretnina je u sustavu PDV-a, a vlasnik jamči urednu vlasničku dokumentaciju i mogućnost brzog prijenosa vlasništva na kupca.

Agencija STAN GRAD Immobilien pruža potpunu podršku tijekom cijelog procesa kupnje. Uz profesionalan obilazak i prezentaciju nekretnine te provjeru njezina pravnog statusa, naš stručni i srdačan tim kupcu stoji na raspolaganju i pri prijenosu vlasničkih prava, kao i prijenosu komunalnih računa na njegovo ime.

ID CODE: 103654

Ivan Radman
Direktor, agent
Mob: +385 91 605 1497
Tel: +385 51 677 809
Fax: +385 51 677 809
E-mail: ivan.radman@stangrad.hr
www.stangrad.hr
Značajke
Vrsta
Obiteljska kuća
Ugovor
Prodaja
Dizalo
Ne
Površina
232 m²
Prostorije
5
Spavaće sobe
4
Kupaonice
3+
Balkon
Da
Terasa
Da
Garažno mjesto, parkirna mjesta
2 na zajedničkom parkingu
Informacije o cijeni
Cijena
€ 1.499.000
Cijena po m²
6.461 €/m²
Energetska učinkovitost
  • Godina izgradnje

    2025
  • Energetski certifikat

    Neklasificirano
Tlocrt
Otkrijte svaki kutak nekretnine
+10
Dodatne mogućnosti

Obratite se oglašivaču

Ili