Građevinsko zemljište za Prodaja

€ 92.000
2.122 m²

Bilješka

Oglas ažuriran 03. 03. 2026.
Opis

referenca: EUROVILLA-985340

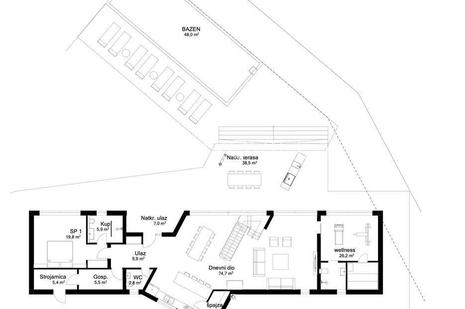
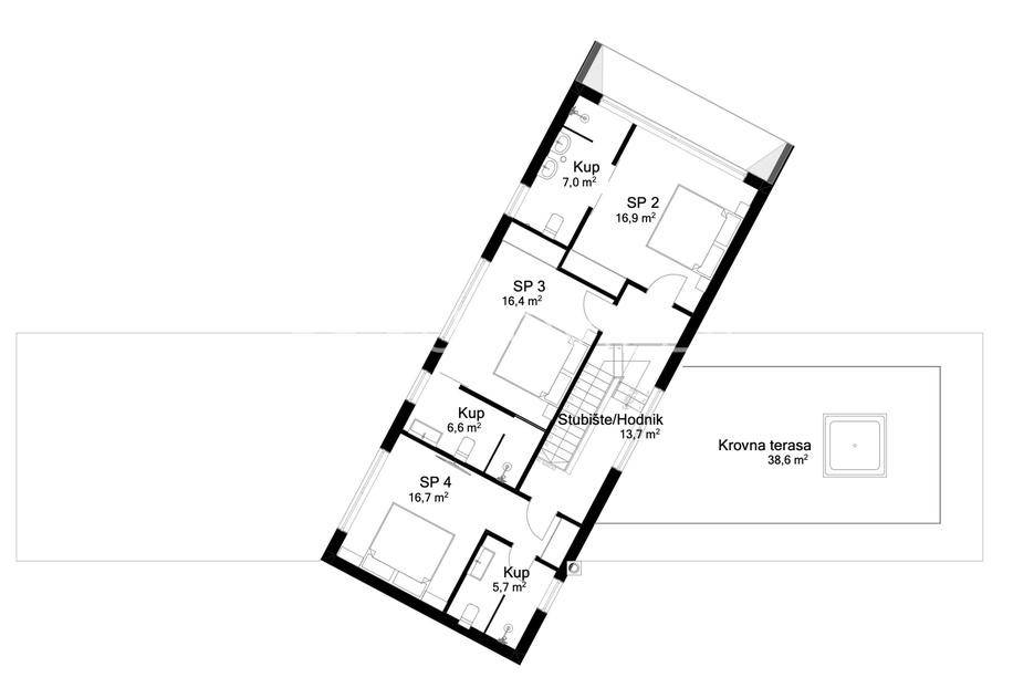
Istra, Buzet, građevinsko zemljište s idejnim projektom

Na izuzetnoj lokaciji u mirnom okruženju mjesta Buzet prodaje se građevinsko zemljište površine 2.122 m², idealno za izgradnju moderne vile s brojnim sadržajima za luksuzan život ili turistički najam.Zemljište dolazi s gotovim idejnim projektom ekskluzivne kuće površine cca 250 m² koja se proteže na dvije etaže, uz bazen i teniski teren.Predviđeni raspored kuće:Prizemlje:Natkriveni ulazProstrani open space dnevni boravak s kuhinjom, ostavom i blagovaonicomIzlaz na natkrivenu terasu s vanjskom kuhinjom i prostorom za druženjeGostinjski WCSpavaća soba s vlastitom kupaonicomTeretana s saunom i vlastitom kupaonicomStrojarnica i dodatna ostavaKat:Tri prostrane spavaće sobe, svaka s vlastitom kupaonicomVelika terasa s jacuzzijem i pogledom na okolnu priroduDodatni sadržaji:Privatni bazenTeniski terenModerna arhitektura i vrhunski rasporedMogućnost prilagodbe projekta po želji kupcaOva nekretnina predstavlja savršenu priliku za one koji traže mir, luksuz i privatnost, bilo za vlastiti odmor, život ili kao investiciju u turizam.Za više informacije stojimo vam na raspolaganju.... Više na eurovilla.hr, ID: 985340
Ako želite znati više, možete razgovarati s Natalija Ramljak.
Značajke
Ugovor
Prodaja
Vrsta
Građevinsko zemljište
Površina
2.122 m²
Informacije o cijeni
Cijena
€ 92.000
Cijena po m²
43 €/m²
Otkrijte svaki kutak nekretnine
+9
Dodatne mogućnosti

Obratite se oglašivaču

Ili