Stan Vendita, Stari Medulin, Medulin

€ 245.000
5

Bilješka

Oglas ažuriran 14. 10. 2025.
Opis

referenca: EK-679105

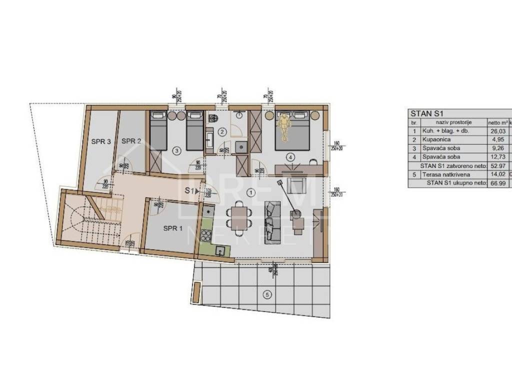
Stan s vrtom od 160m2 u novom projektu, Medulin

Stan u novom projektu smješten u samom centru prekrasnog Medulina.

Medulin je poznato turističko središte i jedno od najposjećenijih mjesta na Jadranu. Blaga mediteranska klima, čisto more i razvedena obala samo su neke od njegovih posebnosti.

Novi projekt nalazi se na top lokaciji, svega 400 metara od prekrasne šetnice. Zgrada će se graditi prema najvišim standardima, a imat će ukupno 3 stana.

Prodaje se stan u prizemlju s prekrasnim vrtom površine 160 m². Stan se sastoji od prostranog open spacea, dvije spavaće sobe i kupaonice. Jedno parkirno mjesto uključeno je u cijenu.

DODATNE INFORMACIJE:

• klima uređaji

• spremište

• vrt 160 m²

• parkirno mjesto

• velike staklene stijene

• vlasništvo 1/1

Očekivani početak gradnje je na proljeće 2024. godine.

Zgrada se nalazi na izvrsnoj lokaciji, a svi sadržaji potrebni za svakodnevni život nalaze se na nekoliko minuta hoda.

Uvjet prodavatelja je da kupac plati dio agencijske provizije u visini od 3% + PDV.

Ako ste zainteresirani za kupnju, nazovite ili pošaljite poruku na: Matea Blažević, mobilni broj +385 99 529 85 41 (Whatsapp i Viber) ili e-mail: matea@premiumnekretnine.com

 
Značajke
Vrsta
Stan
Ugovor
Prodaja
Prostorije
5
Spavaće sobe
2
Informacije o cijeni
Cijena
€ 245.000
Energetska učinkovitost
  • Energetski certifikat

    Oslobođeno
Otkrijte svaki kutak nekretnine
+4
Dodatne mogućnosti

Obratite se oglašivaču

Ili