Dvosobni stan Okrug Gornji, Okrug

€ 231.390
2
72 m²
2
Terasa

Bilješka

Oglas ažuriran 17. 03. 2026.
Opis

referenca: EUROVILLA-855597

Čiovo, Okrug Gornji, moderan dvosoban stan s pogledom na more

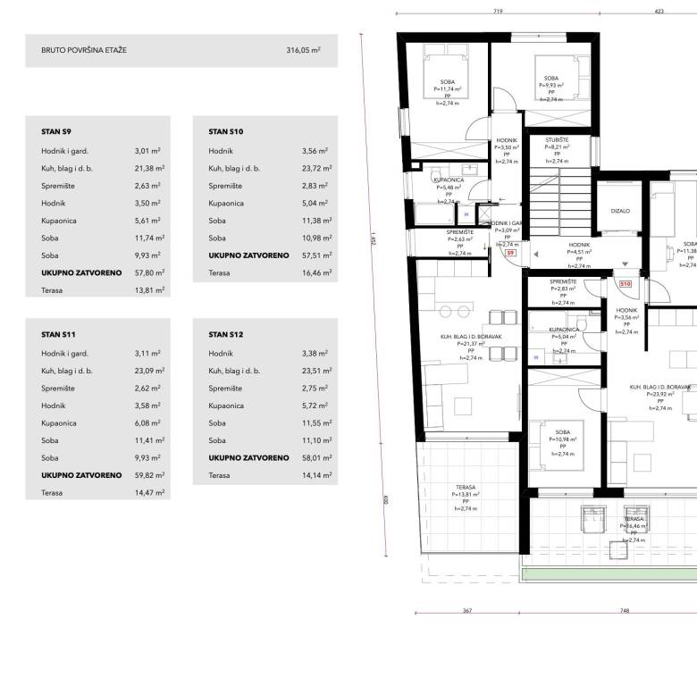
Čiovo, Okrug Gornji - projekt moderne stambene novogradnje zgrade s 15 stanova povezanih liftom s garažnim mjestom.STAN S9Smješten na drugom katu zgrade zatvorene površine 58 m2 sastoji se od hodnika i garderobe, spremišta, dvije spavaće sobe, kupaonice, zajedničkog prostora kuhinje, blagovaonice i dnevnog boravka s izlazom na prostrani balkon površine 13 m2. Stanu pripada i jedno garažno parkirno mjesto te je ukupna neto korisna površina nekretnine 72 m2.U opremanju stana koriste se kvalitetni materijali i oprema te kupac ovisno o fazi izgradnje može utjecati na interijer stana.Mirna lokacija samo 400 metara zračne linije do plaže i svih sadržaja.Useljenje je planirano krajem 2026. godine.Više informacija na upit.... Više na eurovilla.hr, ID: 855597
Ako želite znati više, možete razgovarati s Josipa Glavota.
Značajke
Vrsta
Stan
Ugovor
Prodaja
Kat
2
Površina
72 m²
Prostorije
2
Spavaće sobe
2
Terasa
Da
Detalji površine

Stambeni prostor

Kat
2
Površina
72,0 m²
Koeficijent
100%
Vrsta površine
Glavni
Komercijalna površina
72,0 m²
Informacije o cijeni
Cijena
€ 231.390
Cijena po m²
3.214 €/m²
Energetska učinkovitost
  • Stanje

    Novo / U izgradnji
  • Energetski certifikat

    Oslobođeno
Tlocrt
Otkrijte svaki kutak nekretnine
+7
Dodatne mogućnosti

Obratite se oglašivaču

Ili