Trosobni stan prvi kat, Krapinske Toplice

€ 216.475
3
77 m²
1
1

Bilješka

Oglas ažuriran 16. 02. 2026.
Opis

referenca: 115

PRODAJA, KRAPINSKE TOPLICE, ZGRADA S 32 STANA, USELJENJE KRAJEM 2026

PRODAJA, KRAPINSKE TOPLICE, ZGRADA S 32 STANA, USELJENJE KRAJEM 2026
Prodaju se stanovi u stambenoj zgradi s 32 stana, projekt je u fazi ishođenja građevinske dozvole te se trenutno primaju rezervacije za stanove.
Uz svaki stan je obavezna kupnja parkirnog mjesta po cijeni od 10.000 eura.
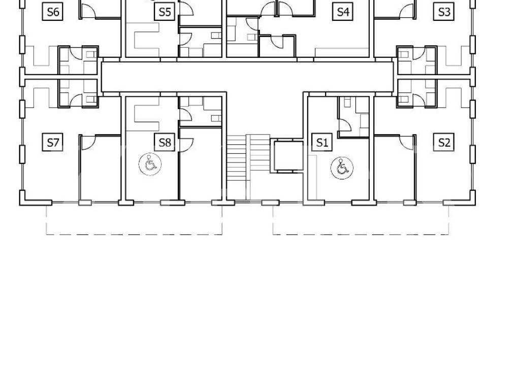
PRIZEMLJE
S1 - 27,81 m2 = 83.430 Eur
S2 - PRODANO
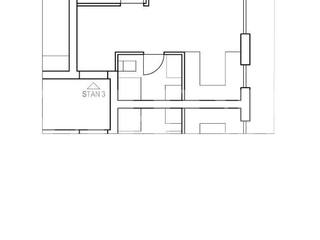
S3 - 48,47 m2 = 135.716 Eur
S4 - 63,49 m2 = 177.772 Eur
S5 - 43,13 m2 = 129.390 Eur
S6 - 48,47 m2 = 135.716 Eur
S7 - 48,47 m2 = 135.716 Eur
S8 - 43,13 m2 = 129.390 Eur
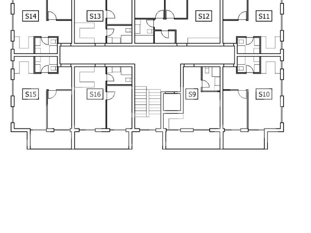
PRVI KAT
S9 - 40,36 m2 = 121.088 Eur
S10 - PRODANO
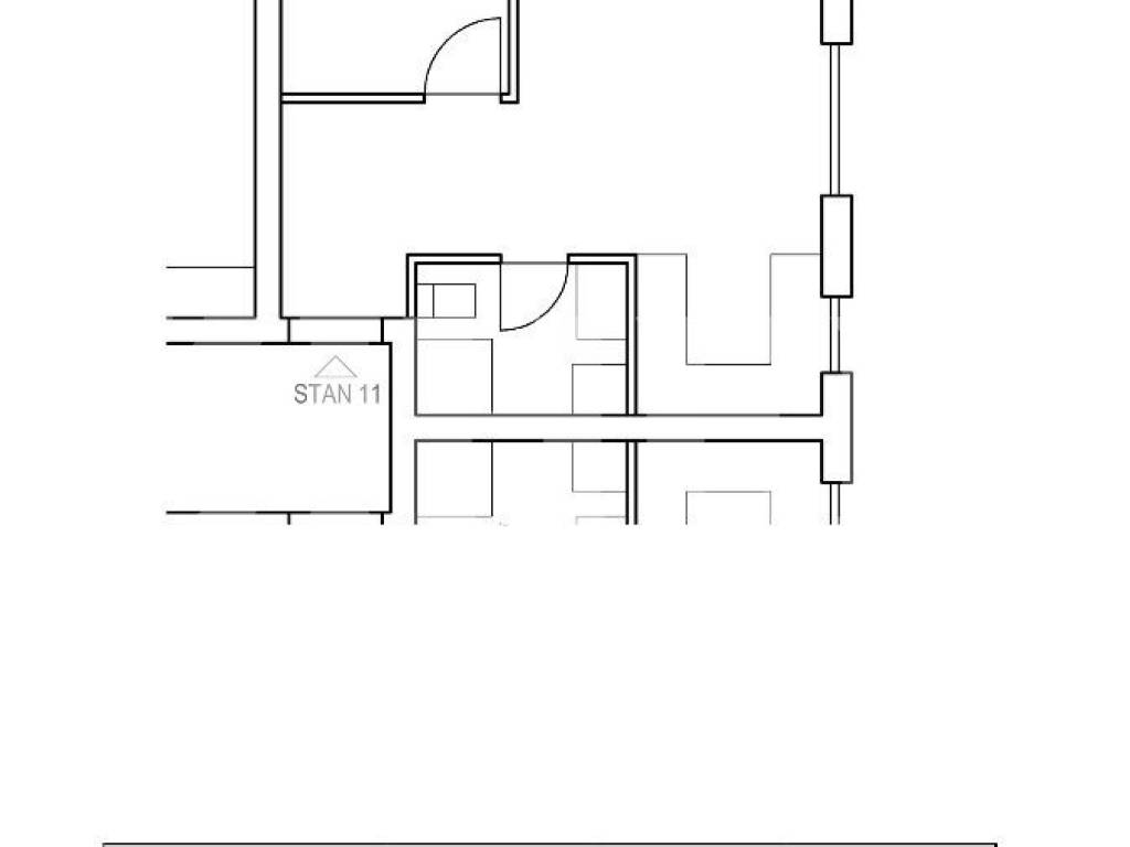
S11 - 55,18 m2 = 154.511 Eur
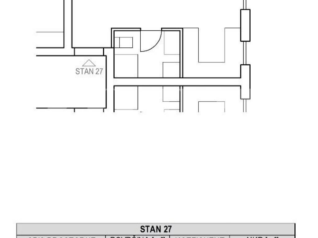
S12 - 77,31 m2 = 216.475 Eur
S13 - PRODANO
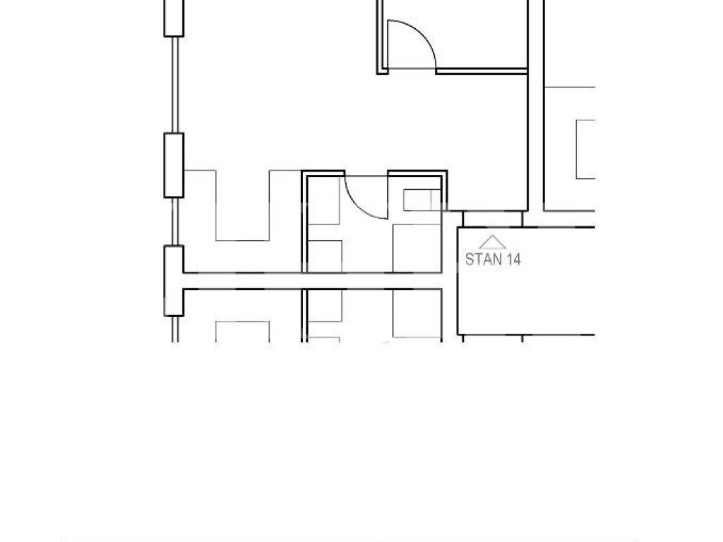
S14 - 55,18 m2 = 154.511 Eur
S15 - 55,18 m2 = 154.511 Eur
S16 - 51,94 m2 = 145.439 Eur
DRUGI KAT
S17 - 40,36 m2 = 121.088 Eur
S18 - 55,18 m2 = 154.511 Eur
S19 - 55,18 m2 = 154.511 Eur
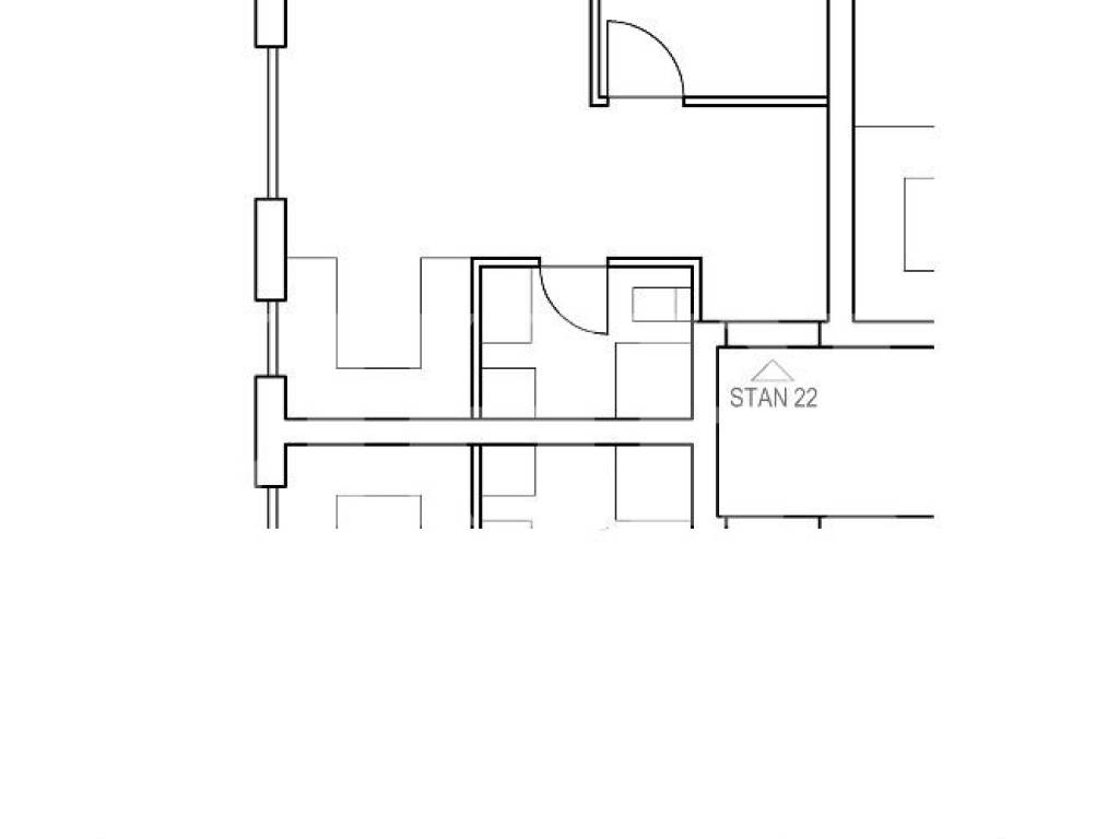
S20 - 77,31 m2 = 216.475 Eur
S21 - 52,42 m2 = 146.762 Eur
S22 - 55,18 m2 = 154.511 Eur
S23 - 55,18 m2 = 154.511 Eur
S24 - 51,94 m2 = 145.439 Eur
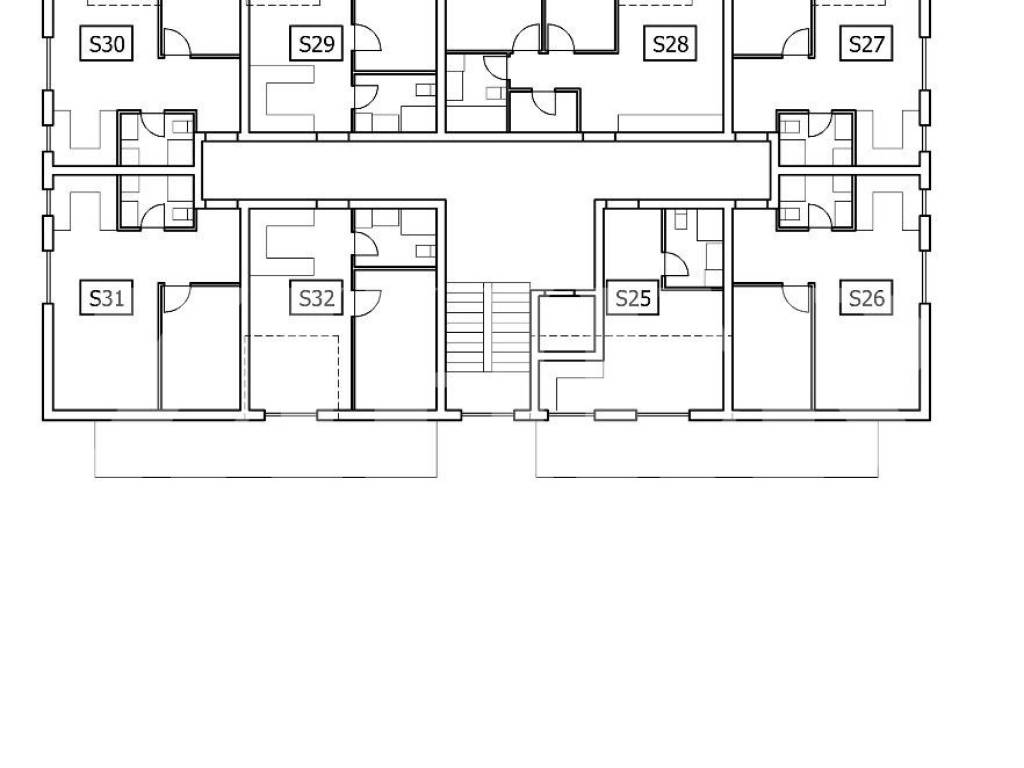
POTKROVLJE
S25 - 31,55 m2 = 94.650 Eur
S26 - 39,64 m2 = 118.920 Eur
S27 - 41,52 m2 = 124.560 Eur
S28 - 52,43 m2 = 146.804 Eur
S29 - 36,25 m2 = 108.750 Eur
S30 - 41,52 m2 = 124.560 Eur
S31 - 39,64 m2 = 118.920 Eur
S32 - 36,25 m2 = 108.750 Eur
Za sve informacije nazovite 098/359876
FOR SALE, KRAPINSKE TOPLICE, BUILDING WITH 32 APARTMENTS, MOVE-IN ON END OF 2026.
Apartments for sale in a residential building with 32 apartments, the project is in the process of obtaining a building permit and reservations for the apartments are currently under accepting.
Each apartment requires the purchase of a parking space for 10.000,00 EUR.
For more additional information, feel free to call on phone number 098/359876.

ZIHER
Agencija za posredovanje u prometu nekretninama
Značajke
Vrsta
Stan
Ugovor
Prodaja
Kat
1 kat
Katovi zgrade
3
Površina
77 m²
Prostorije
3
Spavaće sobe
2
Kupaonice
1
Informacije o cijeni
Cijena
€ 216.475
Cijena po m²
2.811 €/m²
Pojedinosti o troškovima
Troškovi etažiranja
Bez naknada za etažno vlasništvo
Energetska učinkovitost
  • Godina izgradnje

    2025
  • Energetski certifikat

    Neklasificirano
Otkrijte svaki kutak nekretnine
+38
Dodatne mogućnosti

Obratite se oglašivaču

Ili