map icon

Dvosobni stan novo, drugi kat, Okrug

Okrug
€ 650.000
2
114 m²
2
2
Da

Bilješka

Oglas ažuriran 28. 01. 2026.
Opis

referenca: 3345-1

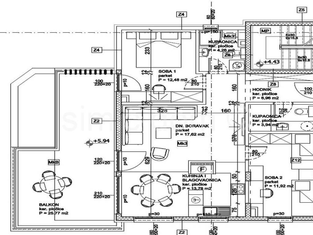
Na prodaju je vrhunski apartman u novoj zgradi izrazito visoke kvalitete i opremljenosti, i na odličnoj lokaciji svega 160m od plaže. Apartman S5 nalazi se na drugom katu zgrade koja ima lift. Apartman ima ukupnu neto površinu od oko 114 m2 sa svim pripatcima i uračunatim koeficijentima. Unutarnja površina apartmana je 73,50 m2, dok su tu još dvije velike terase, jedna u razini apartmana podne površine 25,77 m2 i krovna terasa podne površine preko 40 m2, bazen od 24,68 m2 i strojarnica, a pripada mu i garažno mjesto, te sprema, sve uračunato u cijenu. Apartman se sastoji od hodnika, dvije kupaonice, dvije spavaće sobe, kuhinje otvorenog koncepta s blagovaonicom i dnevnim boravkom koji ima izlaz na terasu. Iz apartmana se proteže prekrasan panoramski pogled na more i okolinu. Apartmani su opremljeni vrhunskom stolarijom te keramikom i spremni su za useljenje kroz ljeto 2025. godine. Lokacija zgrade odlična je zakupce koji se žele baviti najmom, ali i za one koji žele uživati u vlastitoj nekretnini, pogledu i blizini plaže.

Standardna poslovna politika naše agencije za nekretnine je organiziranje razgledavanja nekretnine nakon što je klijent potpisao naš standardni agencijski ugovor. Potpisivanje ovog ugovora osnovni je uvjet na koji se nastavljaju daljnje aktivnosti povezane s kupnjom nekretnine, a to sve je utemeljeno na Zakonu o posredovanju u prometu nekretnina i Zakonu o zaštiti podataka.
Značajke
Vrsta
Stan
Ugovor
Prodaja
Kat
2 kat
Dizalo
Da
Površina
114 m²
Prostorije
2
Kupaonice
2
Ostale karakteristike
  • Bazen
Informacije o cijeni
Cijena
€ 650.000
Cijena po m²
5.702 €/m²
Energetska učinkovitost
  • Stanje

    Novo / U izgradnji
  • Energetski certifikat

    Neklasificirano
Otkrijte svaki kutak nekretnine
+12
Dodatne mogućnosti

Obratite se oglašivaču

Ili