map icon

Dvosobni stan novo, prizemlje, Vodice

Vodice
€ 345.000
2
78 m²
1
PR

Bilješka

Oglas ažuriran 28. 01. 2026.
Opis

referenca: 2843-1

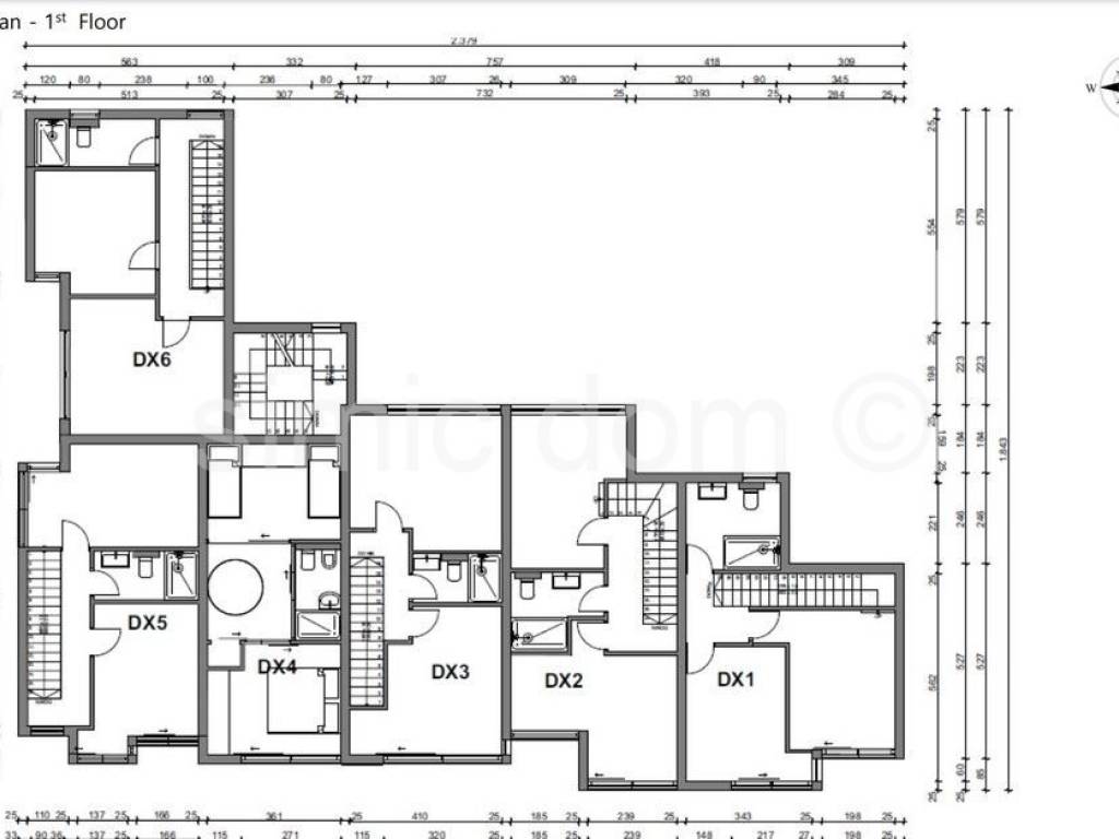
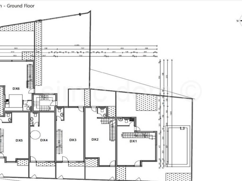
Prodaje se apartman u novogradnji na odličnoj lokaciji u Vodicama, na svega 120m od predivne plaže i 800m od centra Vodica. Apartman oznake DX6 je dvoetažni te se proteže preko etaža prizemlja i prvoga kata koje su povezan tzv. plutajućim stepenicama. Ulaz u apartman je na etaži prizemlja i ima jugozapadnu orijentaciju. Ukupna unutarnja površina nekretnine iznosi 78.26m2, uz još 25m2 terase te vrt od 8,37m2 (podna površina). U cijenu je uključeno jedno vanjsko parking mjesto, uz mogućnost nadoplate za još jedno parkirno mjesto. Donja etaža apartmana ima dnevni boravak, kuhinju s blagovaonicom i jedan toalet. Gornja etaža se sastoji od hodnika, jedne kupaonice i dvije spavaće sobe. U dogovoru sa investitorom moguće je u vrtu dogovoriti ugradnju pergole i jacuzzija. Zgrada će imati lijep i moderan dizajn koji uključuje bijelu fasadu i staklene površine u antracit boji. Velike klizne stijene postavljene kroz apartman omogućuju predivan pogled na more i komunikacija s vrtom. U ovoj fazi radova kupac može u dogovoru sa investitorom odabrati materijale. Zgrada će imati vrhunsku toplinsku i hidro izolaciju kao i podove s kvalitetnim protukliznim podnim keramičkim pločicama sa minimalnom širinom fuge. Dnevni boravak i obje spavaće sobe će imati kvalitetne klima uređaje marke Hyundai. Ova nekretnina predstavlja odličnu investiciju za kupce koji traže kvalitetnu novogradnju u blizini plaže i sadržaja.

Standardna poslovna politika naše agencije za nekretnine je organiziranje razgledavanja nekretnine nakon što je klijent potpisao naš standardni agencijski ugovor. Potpisivanje ovog ugovora osnovni je uvjet na koji se nastavljaju daljnje aktivnosti povezane s kupnjom nekretnine, a to sve je utemeljeno na Zakonu o posredovanju u prometu nekretnina i Zakonu o zaštiti podataka.
Značajke
Vrsta
Stan
Ugovor
Prodaja
Kat
Prizemlje
Površina
78 m²
Prostorije
2
Kupaonice
1
Informacije o cijeni
Cijena
€ 345.000
Cijena po m²
4.423 €/m²
Energetska učinkovitost
  • Stanje

    Novo / U izgradnji
  • Energetski certifikat

    Neklasificirano
Otkrijte svaki kutak nekretnine
+4
Dodatne mogućnosti

Obratite se oglašivaču

Ili